Aménager
Aménager

Maison Aribert _extension neuve _ restaurant gastronomique

38410 saint martin d'uriage - Isère - Auvergne-Rhône-Alpes

AMÉNAGEMENT INTÉRIEUR

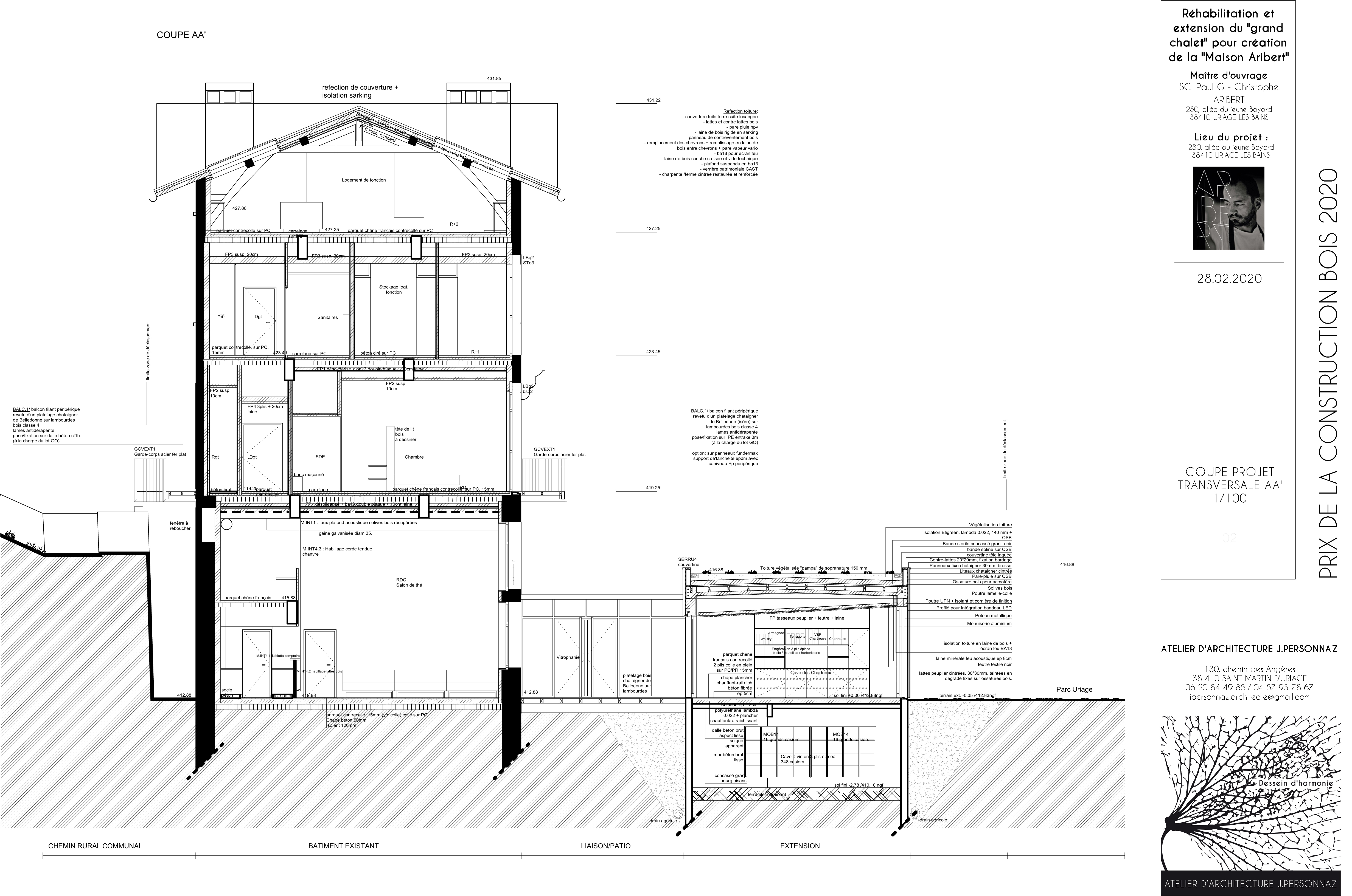
L'aménagement intérieur s'inspire de la cuisine du chef Aribert. Le Lieu est un écrin à l'image de sa cuisine, de la sobriété, de la générosité, de la magie empreint de nature et de matière brute. La salle est une expérience d’intériorité, d’ancrage à la terre. Le travail du plafond en tasseaux de peuplier du Jura cintrés évoque le réseau racinaire du sous-sol (extension semi-enterrée dans le parc d’Uriage). L'effet est accentué par le jeu de lumière crée par les volets aux percements organiques de la salle et par les deux patios moussus. Le tout nous transporte vers un univers hors du temps.

Bâtiment / logement

Extension dédiée à la salle du restaurant gastronomique, installée sur une fine franche constructible du parc d'Uriage, joue avec la pente du parc et s'encastre afin d'offrir une continuité visuelle du parc sur sa toiture végétalisée (le potager en permaculture du chef). Déguster juste en dessous, ce qui pousse juste en dessus... S’inspirant de la Belle Epoque Uriageoise, l’extension est traitée comme un pavillon bois aux décors organiques, décollé de l'existant pour que chacun dialogue avec l'autre, qu'une respiration s'installe entre ancien et nouveau, pour créer un lieu hors du temps.

Catégorie aménagement intérieur, Bâtiment / logement
Numéro de projet4389
Adresse du projet 280 allée du Jeune Bayard
Uriage-les-Bains
38410 saint martin d'uriage
Date de candidature21/02/2020

aménagement intérieur

Année de réalisation : 2019
Coût total Aménagement Intérieur en € HT : 420000
Coût lots bois en € HT : 168051
Volume bois m³ : 19
Surface aménagée en m² : 212

Liste des produits :

ProduitEssenceProvenances (lieu de croissance du bois)Marque et certification produitFinition
Panneau acoustiquePeuplierBourgogne-Franche-ComtéAutres
ParquetChêneGrand-EstHuile pigmentée
MobilierÉpicéa communFranceJe n'ai pas l'information
MobilierNoyerAucuneHuile
Bois Français : oui

Approche environnementale : Conception de l’extension bioclimatique : rafraîchissement par l’humidité des patios moussus avec ruisseau et le toit végétalisé. Volonté de low tech : choix affirmé d’un restaurant sans climatisation, avec une harmonisation en géobiologie (gaine blindée pour bio électricité). Le projet met en avant des ressources de bois locales ainsi que la valorisation d’artisans locaux et de leur précieux savoir-faire. L’Aménagement intérieur est tout en bois (sol, mur, plafond, mobilier, tables sur mesure). Les platanes abattus pour le projet sont transformés en sculptures par l’artiste T. Martenon.

Descriptif technique de l'aménagement : Le niveau d’exigence en termes de finition et de complexité pour les ouvrages bois a demandé un investissement et un savoir faire des entreprises admirables. A titre d’exemple, il aura fallu près de 3km de tasseaux de peuplier du Jura pour la réalisation du plafond acoustique de l’extension. Réalisé de manière expérimentale et artisanale, tasseaux cintrés en étuve et aboutés finition brou de noix, fixé contre des panneau bois découpé avec 50% de vide avec une toile acoustique noir, le tout supporté par une structure bois secondaire suspendue à la charpente bois LC de l’extension.

Bâtiment / logement

Détail projet

Typologie de bâtiment : Extension / surélévation
Type de bâtiment : Restauration
Année de livraison : 2019
Surface totale du bâtiment en m² : 257
Coût total en € HT (hors foncier, hors VRD, hors honoraires) : 615846
Lot bois n°1 concerné : Charpente bois
Volume lot bois n°1 - m³ : 10
Coût du lot bois n°1 - € HT : 93910
Lot bois n°2 concerné : Bardage bois
Volume lot bois n°2 - m³ : 9
Coût du lot bois n°2 - € HT : 71909
Bois Français : oui
Isolations biosourcées (préciser dans le descriptif technique) : oui
Finitions intéreures biosourcées ou géosourcées (préciser dans le descriptif technique) : oui

Structure bois du bâtiment

Structure verticale :

ProduitEssenceProvenances (lieu de croissance du bois)Traitements de préservationMarque et certification produit
Panneau ossature boisChâtaignierAuvergne-Rhône-AlpesAucun traitement

Structure horizontale :

ProduitEssenceProvenances (lieu de croissance du bois)Traitements de préservationMarque et certification produit
Solivage traditionnelÉpicéa communEuropeTraitement Classe 2 (trempage)

Charpente :

ProduitEssenceProvenances (lieu de croissance du bois)Traitements de préservationMarque et certification produit
Charpente traditionnelleÉpicéa communAuvergne-Rhône-AlpesJe n'ai pas l'information

Revêtement bois extérieur

Revêtement bois ou dérivés :

ProduitEssenceProvenances (lieu de croissance du bois)Marque et certification produitFinitionTraitements de préservation
Panneau bois massif contrecolléChâtaignierAuvergne-Rhône-AlpesAucune finitionAucun traitement
Lame bois massifChâtaignierAuvergne-Rhône-AlpesAucune finitionAucun traitement

Menuiserie intérieure et extérieure

Menuiserie extérieure :

ProduitEssenceProvenances (lieu de croissance du bois)Marque et certification produitFinition
Volet boisChâtaignierAuvergne-Rhône-AlpesAucune finition

Isolation des murs

Isolation intérieure des murs :

Produit
Laine de bois souple
Epaisseur (mm) Isolation intérieure des murs : 180

Isolation de la toiture

Epaisseur (mm) Isolation intérieure de la toiture : 120
Epaisseur (mm) Isolation entre-montant de la toiture : 120
Epaisseur (mm) Isolation extérieure de la toiture : 60

Approche environnementale : Le projet incarne les valeurs que défend l'agence depuis sa création : des choix respectueux de l'environnement et de l'usager, un travail de proximité avec un chantier en hyperlocal, des entreprises et des matériaux locaux. Le projet est conçu en bioclimatique avec résille pare-soleil, toiture végétalisée. Il met en avant des matériaux bio sourcés avec une place du bois toute particulière dans ce projet (structure, charpente, bardage, isolation, parquet, plafond, mobilier sur mesure).

Descriptif technique : L'extension est réalisée en structure métal-bois (charpente LC, solivage bois massif, panneau d'OSB support d'étanchéité et de la toiture végétalisée). L'ensemble est bardé de panneaux de châtaigner massif de Belledonne (Isère), avec découpes organiques et revêtus de tasseaux de châtaigner cintrés en étuve et fixés par visserie en inox bruni. Le bardage s’anime suivant les heures par un jeu de grands volets bois s’intégrant parfaitement dans la continuité du calepinage. Ensemble des isolants laine de bois (mur et toiture), chauffage/production d'eau chaude chaudière à granulé Okofen. PEFC (Gestion forestière durable)

Chauffage au Bois : oui
Appareil de chauffage au bois : Chaudière
Certifications, labels et marques bâtiment : Bois de France
Données déclaratives

Acteurs du projet

Maître d'ouvrage (1)

Maître d'ouvrage - Particuliers

particulier (x)

Etudes et ingénieries (8)

Maître d'œuvre - Architecte mandataire

JOËLLE PERSONNAZ ARCHITECTE (38)

Bureau d'études acoustique

THERMIBEL (38)

Bureau d'études structure bois

SORAETEC (38) *

Bureau d'études thermique

ENERCOBAT (74)

Economiste

JOËLLE PERSONNAZ ARCHITECTE (38)

Designer / architecte d'intérieur

JOËLLE PERSONNAZ ARCHITECTE (38)

Paysagiste

GIORDANO PAYSAGISTE (38)

Architecte / paysagiste concepteur

JOËLLE PERSONNAZ ARCHITECTE (38)

Entreprises des lots bois (6)

Charpentier

CRISTAL CHARPENTE (38) *

Menuisier

SARL ATELIER A (38) *

Autre lot de la construction (en lien avec le bois)

BRUN-BUISSON (38)
Loellmann Valentin (NL)
MARTENON THIERRY GERARD (73)
MARTENON THIERRY GERARD (73)

Fournisseurs du bois (3)

Scierie

SCIERIE BOTTAREL (38) *
SCIERIE SILLAT (38)

Industriel

D.M.B.P DISPANO CHAMBERY (73)




* : L'entreprise n'est plus active
Retour à la liste