Réhabiliter un logement
Réhabiliter un logement

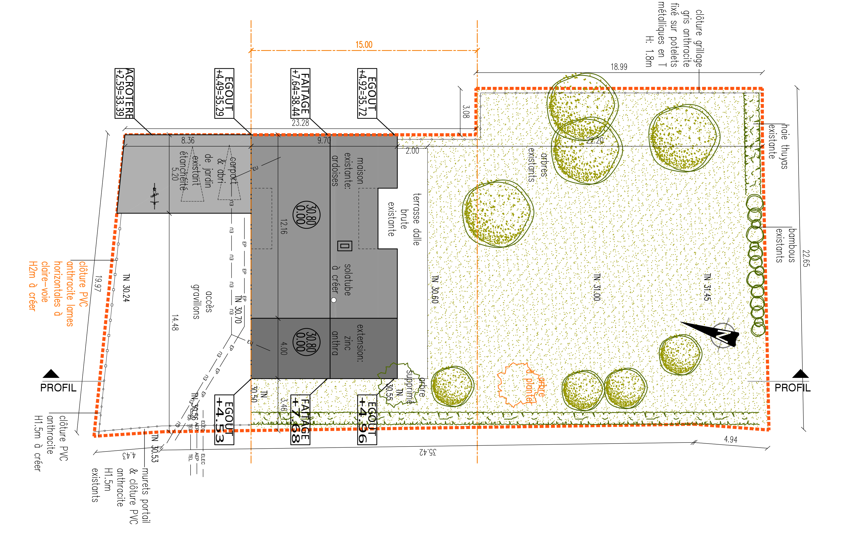
EXTENSION EN PROLONGEMENT

35230 ST ERBLON - Ille et Vilaine - Bretagne

BÂTIMENT / LOGEMENT

Extension d’une maison des années 2000. Pour assurer l’harmonie sans tomber dans le pastiche, l’esprit longère a été revisité. La volumétrie s’inscrit harmonieusement en prolongement. L’extension est affirmée par l’emploi de matériaux distincts & intemporels, mis en œuvre de façon contemporaine. Le zinc anthracite est utilisé comme un manteau sur l’ossature bois qui vient couvrir le pignon habillé de bardage Trespa en lames verticales de largeurs irrégulières. Chaque élément est mis en valeur par contraste.

Catégorie Bâtiment / logement
Numéro de projet4307
Date de candidature18/02/2020

Bâtiment / logement

Détail projet

Typologie de bâtiment : Extension / surélévation
Type de bâtiment : Logement individuel supérieur à 120 m²
Année de livraison : 2019
Surface totale du bâtiment en m² : 58
Coût total en € HT (hors foncier, hors VRD, hors honoraires) : 160000
Bois Français : non
Isolations biosourcées (préciser dans le descriptif technique) : oui
Finitions intéreures biosourcées ou géosourcées (préciser dans le descriptif technique) : non

Structure bois du bâtiment

Structure verticale :

ProduitEssenceProvenances (lieu de croissance du bois)Traitements de préservationMarque et certification produit
Panneau ossature boisTempéré

Structure horizontale :

ProduitEssenceProvenances (lieu de croissance du bois)Traitements de préservationMarque et certification produit
Solivage traditionnelTempéré

Charpente :

ProduitEssenceProvenances (lieu de croissance du bois)Traitements de préservationMarque et certification produit
Charpente traditionnelleTempéré

Revêtement bois extérieur

Revêtement minéral :

Produit
Autres

Autre revêtement métallique :

Produit
Zinc

Menuiserie intérieure et extérieure

Isolation des murs

Isolation intérieure des murs :

Produit
Epaisseur (mm) Isolation intérieure des murs : 5
Epaisseur (mm) Isolation entre-montant des murs : 150

Isolation de la toiture

Epaisseur (mm) Isolation entre-montant de la toiture : 300

Approche environnementale : Le bon matériaux au bon endroit et en bonne quantité: - fondation et dalle béton existante + plancher chauffant isolé ajouté - ossature, plancher et charpente bois avec isolation en ouate de cellulose insufflée - des bardage dont l'aspect n'évoluent pas avec le temps - raccordement sur la double-flux existante de la maison

Chauffage au Bois : non
Données déclaratives

Acteurs du projet

Maître d'ouvrage (1)

Maître d'ouvrage - Particuliers

particulier (x)

Etudes et ingénieries (1)

Maître d'œuvre - Architecte mandataire

ROCHER TYPHAINE ARCHITECTE (35)

Entreprises des lots bois (2)

Charpentier

ESSENTIELLEMENT BOIS (35)

Menuisier

ESSENTIELLEMENT BOIS (35)




* : L'entreprise n'est plus active
Retour à la liste