Réhabiliter un logement
Réhabiliter un logement

Rénovation d'une maison bois d'après guerre

67000 STRASBOURG - Bas Rhin - Grand Est

BÂTIMENT / LOGEMENT

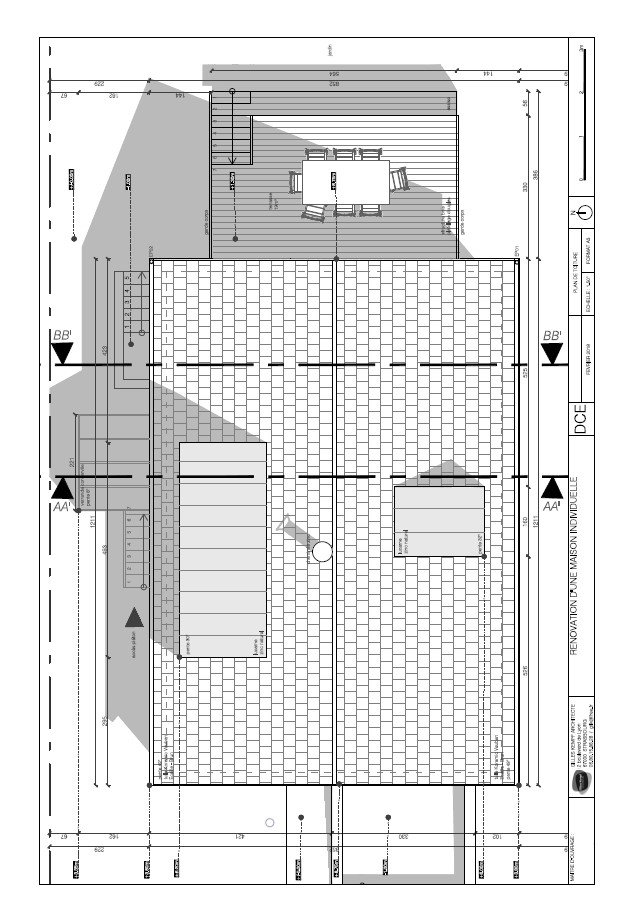
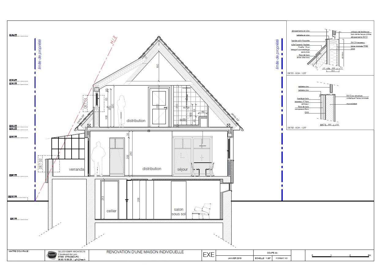
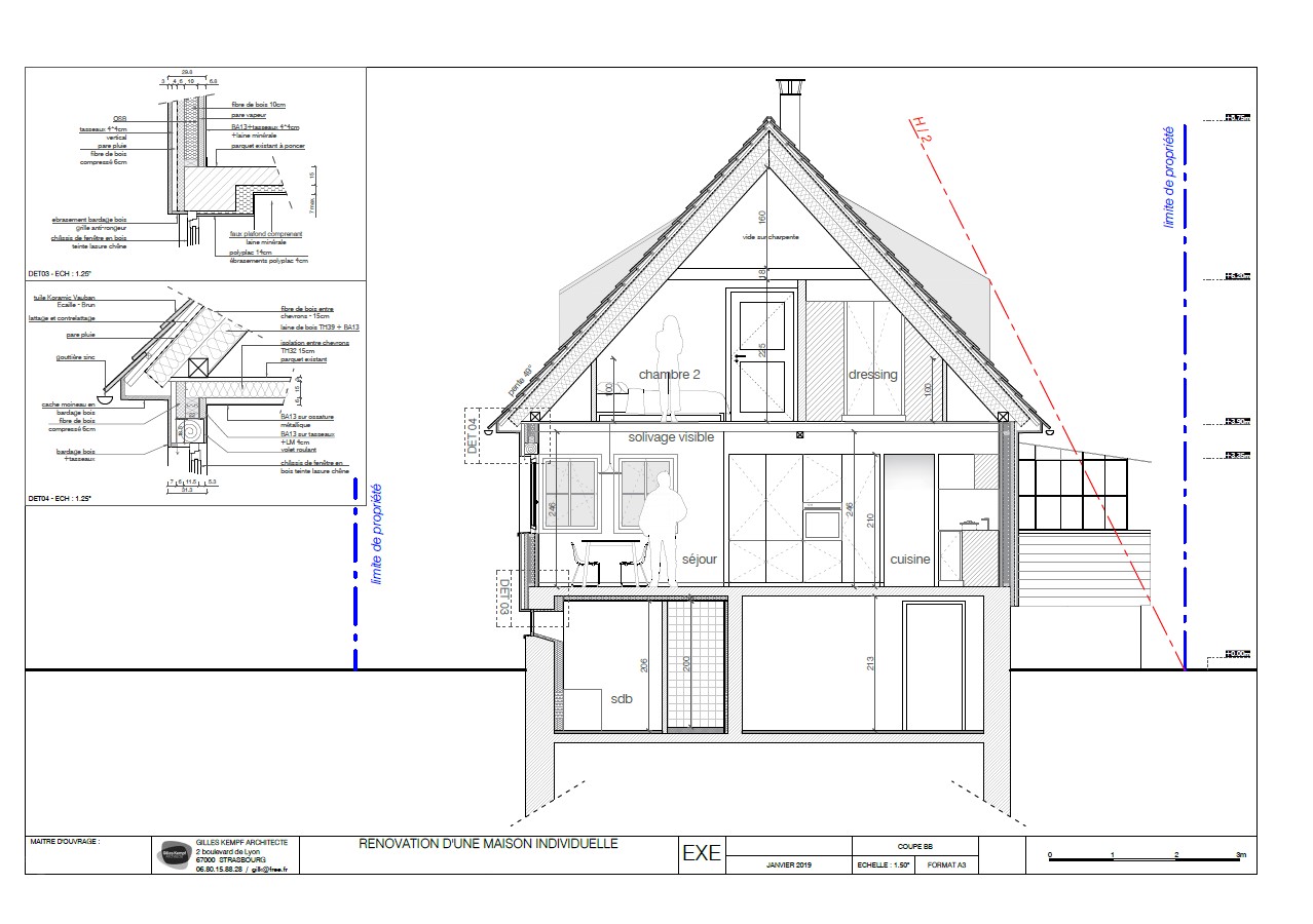
Rénovation et restructuration complète (intérieur + extérieur) d’une maison de l'année 1947, construite très économiquement. La répartition des espaces intérieurs et leurs rapports à l’environnement extérieur (jardin) a été modifiée, la maison retraitée et revisitée dans le respect de son apparence initiale. Une terrasse, une longue lucarne ainsi qu’une petite cour anglaise ont été ajoutées.

Catégorie Bâtiment / logement
Numéro de projet4290
Date de candidature18/02/2020

Bâtiment / logement

Détail projet

Typologie de bâtiment : Rénovation / Réhabilitation
Type de bâtiment : Logement individuel supérieur à 120 m²
Année de livraison : maison de 1947, restructurée en 2019
Surface totale du bâtiment en m² : 130
Coût total en € HT (hors foncier, hors VRD, hors honoraires) : 240000
Lot bois n°1 concerné : ossature bois
Volume lot bois n°1 - m³ : 5
Coût du lot bois n°1 - € HT : 49137
Lot bois n°2 concerné : Bardage bois
Volume lot bois n°2 - m³ : 3
Coût du lot bois n°2 - € HT : 9910
Bois Français : non
Isolations biosourcées (préciser dans le descriptif technique) : oui
Finitions intéreures biosourcées ou géosourcées (préciser dans le descriptif technique) : non

Structure bois du bâtiment

Structure verticale :

ProduitEssenceProvenances (lieu de croissance du bois)Traitements de préservationMarque et certification produit
Panneau ossature boisÉpicéa communEuropeTraitement Classe 2 (trempage)

Structure horizontale :

ProduitEssenceProvenances (lieu de croissance du bois)Traitements de préservationMarque et certification produit
Solivage traditionnelÉpicéa communEuropeTraitement Classe 2 (trempage)

Charpente :

ProduitEssenceProvenances (lieu de croissance du bois)Traitements de préservationMarque et certification produit
Charpente traditionnelleÉpicéa communEuropeTraitement Classe 2 (trempage)

Revêtement bois extérieur

Revêtement bois ou dérivés :

ProduitEssenceProvenances (lieu de croissance du bois)Marque et certification produitFinitionTraitements de préservation
Lame bois massifSapin pectinéEuropeSaturateurTraitement Classe 3b (autoclave)

Menuiserie intérieure et extérieure

Isolation des murs

Isolation entre-montant des murs :

Produit
Laine de bois souple
Epaisseur (mm) Isolation entre-montant des murs : 100

Isolation extérieure des murs :

Produit
Fibre de bois (Panneaux)
Epaisseur (mm) Isolation extérieure des murs : 60

Isolation de la toiture

Epaisseur (mm) Isolation extérieure de la toiture : 60

Approche environnementale : Utilisation maximisée de matériaux bio-sourcés, utilisation du bois et préservation optimale de tous les éléments bois déjà présents. Les finitions (peintures/huiles) ont des labels écologiques.

Descriptif technique : La maison construite très économiquement après-guerre a fait l’objet d’un déshabillage complet et d’un renforcement conséquent de ses éléments de structure (contreventements, façades, charpente). Ceci a permis de lui faire supporter l’ajout d’une isolation performante et de créer des espaces plus ouverts à l’intérieur ainsi que sur l’extérieur.

Chauffage au Bois : oui
Appareil de chauffage au bois : Poële/insert
Données déclaratives

Acteurs du projet

Maître d'ouvrage (1)

Maître d'ouvrage - Particuliers

particulier (x)

Etudes et ingénieries (1)

Maître d'œuvre - Architecte mandataire

Gilles Kempf Architecte (67)

Entreprises des lots bois (1)

Charpentier

BOIS2BOO (67)




* : L'entreprise n'est plus active
Retour à la liste