Réhabiliter un logement
Réhabiliter un logement

LES MAISONS SUR LE TOIT

92130 ISSY LES MOULINEAUX - Hauts de Seine - Ile de France

BÂTIMENT / LOGEMENT

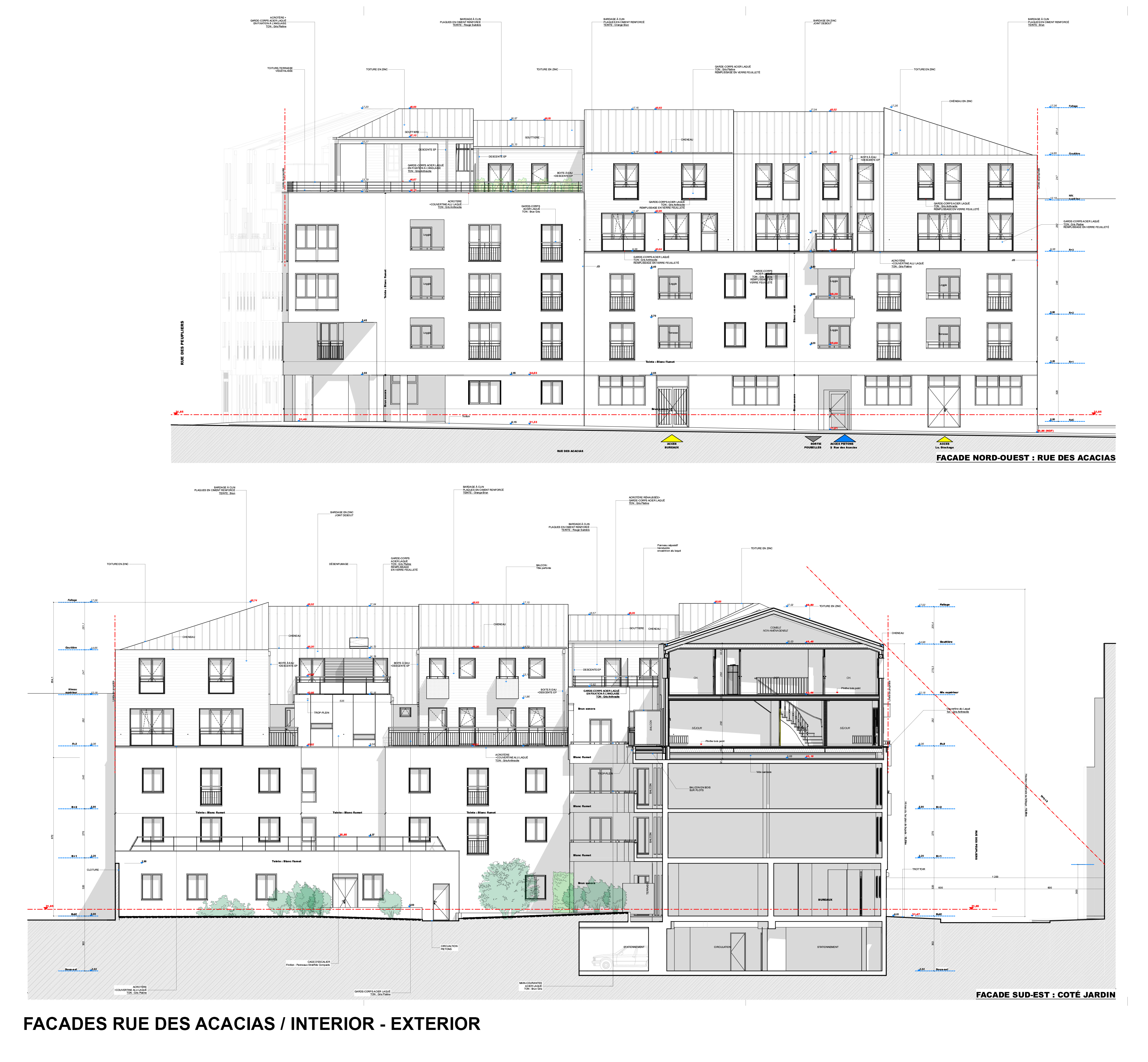
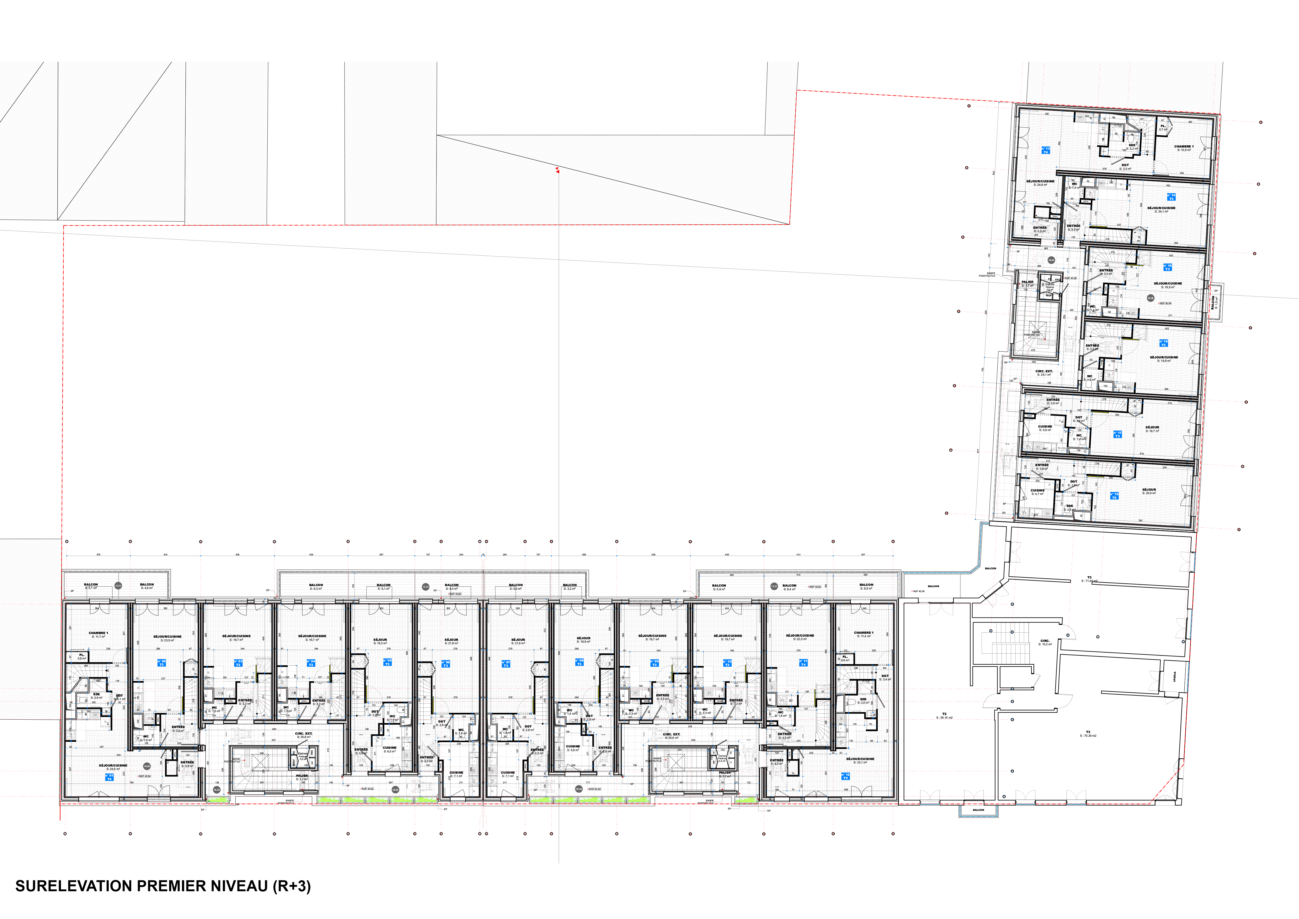
L’Immeuble existant L’immeuble développe un grand linéaire de façade sur les deux rues et comporte 4 cages d’escalier, trois de R+2 et une, à l’angle de R+3 sur un niveau de parking en sous-sol. La structure bois est choisie dès le départ pour minimiser la surcharge, ce qui n’empêchera pas le renforcement de la structure existante de l’immeuble. La surélévation Après le renforcement de la structure et le désamiantage de la terrasse du bâtiment, au final, 18 maisons sont réalisées, de type T3, T4 et T5. Toutes ont un prolongement sur l’extérieur (terrasse, balcon ou loggia).

Catégorie Bâtiment / logement
Numéro de projet4239
Date de candidature14/02/2020

Bâtiment / logement

Détail projet

Typologie de bâtiment : Extension / surélévation,Rénovation / Réhabilitation
Type de bâtiment : Logement collectif
Année de livraison : 2019
Surface totale du bâtiment en m² : 1240
Coût total en € HT (hors foncier, hors VRD, hors honoraires) : 3870000
Bois Français : non
Isolations biosourcées (préciser dans le descriptif technique) : non
Finitions intéreures biosourcées ou géosourcées (préciser dans le descriptif technique) : non

Structure bois du bâtiment

Structure verticale :

ProduitEssenceProvenances (lieu de croissance du bois)Traitements de préservationMarque et certification produit
Poteau poutre

Structure horizontale :

ProduitEssenceProvenances (lieu de croissance du bois)Traitements de préservationMarque et certification produit
Dalle bois

Charpente :

ProduitEssenceProvenances (lieu de croissance du bois)Traitements de préservationMarque et certification produit
Non précisé

Revêtement bois extérieur

Revêtement minéral :

Produit
Autres

Autre revêtement métallique :

Produit
Zinc

Menuiserie intérieure et extérieure

Menuiserie extérieure :

ProduitEssenceProvenances (lieu de croissance du bois)Marque et certification produitFinition
Menuiserie bois

Isolation des murs

Epaisseur (mm) Isolation intérieure des murs : 25
Epaisseur (mm) Isolation extérieure des murs : 30

Isolation de la toiture

Epaisseur (mm) Isolation intérieure de la toiture : 35

Approche environnementale : Essence(s) de bois :Epicéa Efficacité énergétique : RT 2012 Remarques : Le chantier a été très long (23 mois) de par : -la nécessité d’études spécifiques de structures et de renforts structurels et de reprises en sous œuvre des fondations préalablement à la construction, -Le désamiantage des étanchéités de la toiture terrasse existante, -Le déroulement du chantier sur un immeuble d’habitation occupé, nécessitant un process de chantier plus long -Plus de deux mois d’intempéries

Descriptif technique : Première étape: -La reconnaissance structurelle de l’immeuble et de la portance du sol -Le renforcement de la structure de l’immeuble -Le désamiantage et la réfection de l’étanchéité de la toiture terrasse Deuxième étape: -La mise en place des supports de la surélévation sur les façades et refends existants -La prolongation des trois escaliers -Le montage de la structure de la surélévation Troisième étape: -La réalisation des façades en bardage de clins fibrociment, en zinc et en stratifié compact -L’aménagement des logements -Le ravalement et la réfection des parties communes de l’existant

Chauffage au Bois : non
Données déclaratives

Acteurs du projet

Maître d'ouvrage (1)

Maître d'ouvrage - Bailleur social public

In'li logement intermédiaire (92)

Etudes et ingénieries (2)

Maître d'œuvre - Architecte mandataire

CUADRA Architectes (92)

Bureau d'études structure bois

BET LIGOT (95)

Entreprises des lots bois (1)

Charpentier

SOCOPA (88)




* : L'entreprise n'est plus active
Retour à la liste