Habiter ensemble
Habiter ensemble

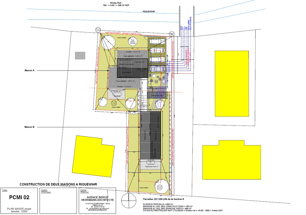
Un terrain, deux habitations à Riquewihr

68340 Riquewihr - Haut Rhin - Grand Est

BÂTIMENT / LOGEMENT

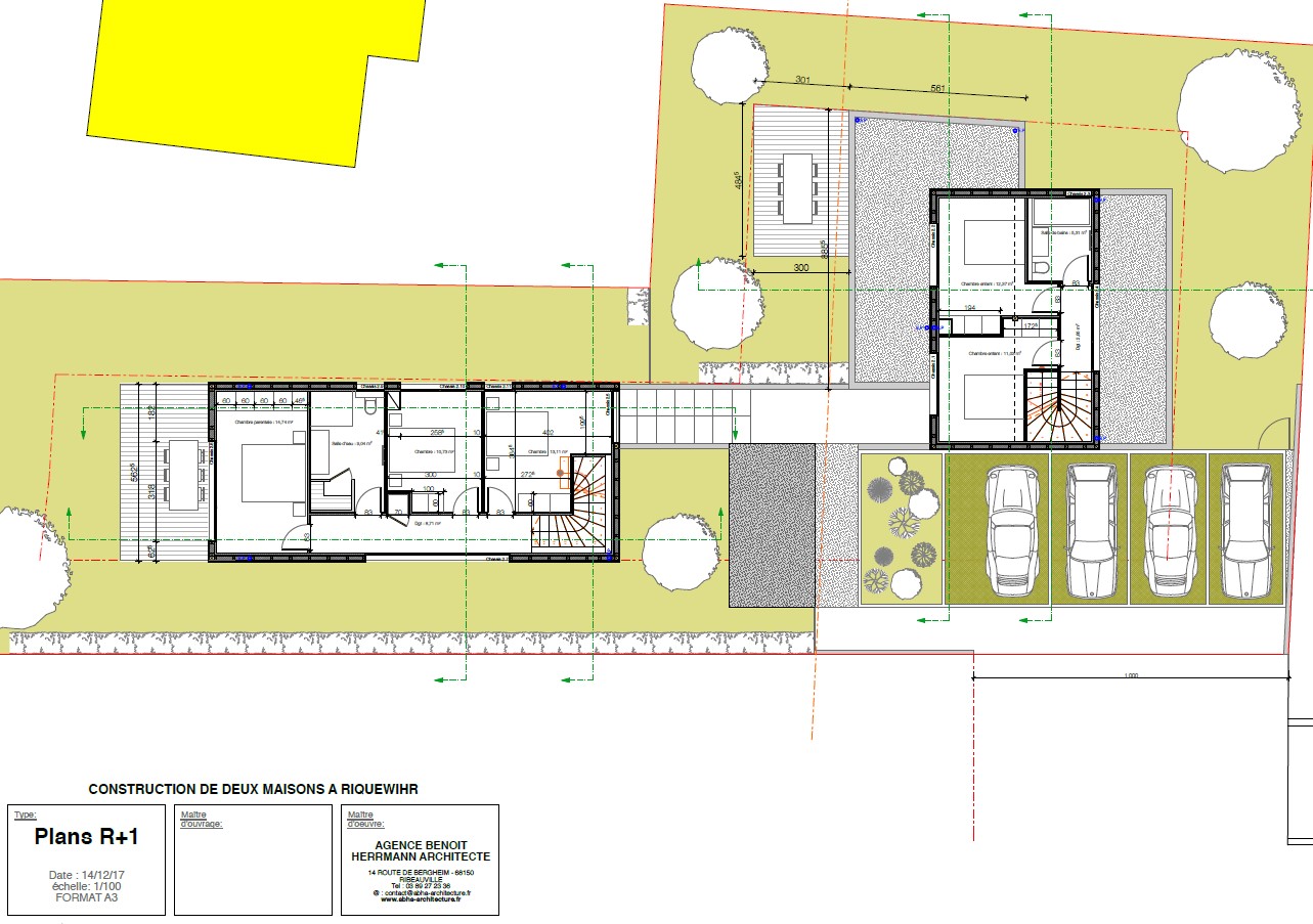
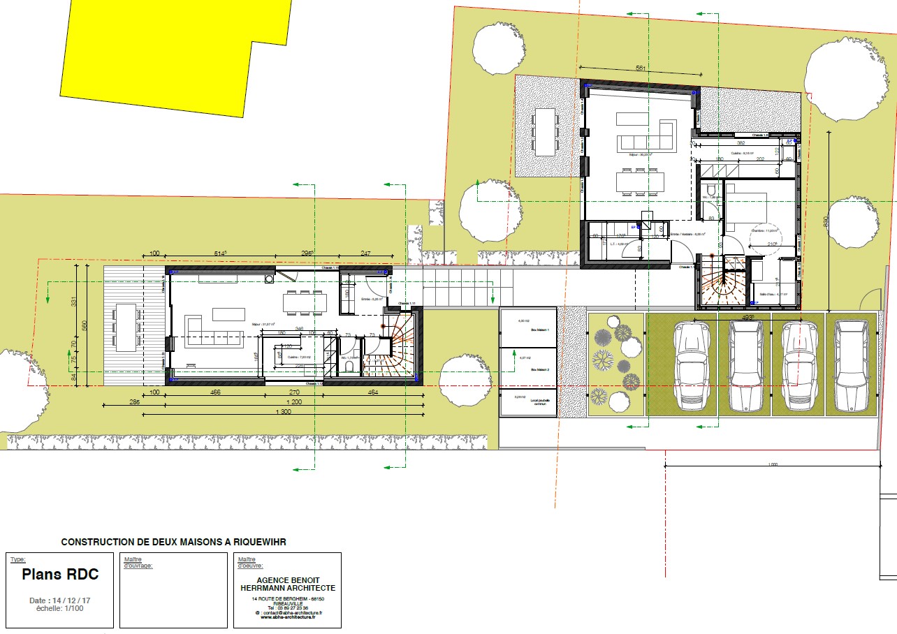
Lors de notre première rencontre avec les maîtres d'ouvrages, ces derniers souhaitaient construire deux maisons jumelées. Nous les avons alors orientés sur l'idée de construire deux pavillons indépendants l'un de l'autre. En effet, la forme du terrain justifie cette utilisation de l'espace, il offre l'avantage de créer deux entités proches l'une de l'autre, avec un stationnement commun et des circulations d'accès communes, mais permet surtout à chaque construction d'avoir ses propres espaces extérieurs et son entière intimité.

Catégorie Bâtiment / logement
Numéro de projet4235
Adresse du projet 68340 Riquewihr
Date de candidature14/02/2020

Bâtiment / logement

Détail projet

Typologie de bâtiment : Neuf
Type de bâtiment : Logement groupé
Année de livraison : 2019
Surface totale du bâtiment en m² : 210
Coût total en € HT (hors foncier, hors VRD, hors honoraires) : 380000
Lot bois n°1 concerné : ossature bois
Volume lot bois n°1 - m³ : 21
Coût du lot bois n°1 - € HT : 27000
Lot bois n°2 concerné : Bardage bois
Volume lot bois n°2 - m³ : 13
Coût du lot bois n°2 - € HT : 29000
Bois Français : oui
Isolations biosourcées (préciser dans le descriptif technique) : oui
Finitions intéreures biosourcées ou géosourcées (préciser dans le descriptif technique) : non

Structure bois du bâtiment

Structure verticale :

ProduitEssenceProvenances (lieu de croissance du bois)Traitements de préservationMarque et certification produit
Panneau ossature boisGrand-EstTraitement Classe 2 (trempage)

Structure horizontale :

ProduitEssenceProvenances (lieu de croissance du bois)Traitements de préservationMarque et certification produit
Solivage traditionnelÉpicéa communGrand-EstTraitement Classe 2 (trempage)

Charpente :

ProduitEssenceProvenances (lieu de croissance du bois)Traitements de préservationMarque et certification produit
Charpente traditionnelleÉpicéa communGrand-EstTraitement Classe 2 (trempage)

Revêtement bois extérieur

Revêtement bois ou dérivés :

ProduitEssenceProvenances (lieu de croissance du bois)Marque et certification produitFinitionTraitements de préservation
Lame bois massifMélèzeEuropeAucune finitionAucun traitement

Menuiserie intérieure et extérieure

Isolation des murs

Isolation intérieure des murs :

Produit
Laine de bois souple
Epaisseur (mm) Isolation intérieure des murs : 100

Isolation entre-montant des murs :

Produit
Laine de bois souple
Epaisseur (mm) Isolation entre-montant des murs : 140

Isolation extérieure des murs :

Produit
Fibre de bois (Panneaux)
Epaisseur (mm) Isolation extérieure des murs : 60

Isolation de la toiture

Epaisseur (mm) Isolation intérieure de la toiture : 200
Epaisseur (mm) Isolation entre-montant de la toiture : 200

Approche environnementale : Nous avons un fil conducteur dans la manière de concevoir nos projets. Ces 2 maisons les représentent bien. Nous proposons des constructions pérennes et demandant très peu d'entretien. La solution : la brutalité des matériaux tel le béton de site et les bardages non traités qui vieilliront naturellement. Les constructions sont très bien isolées avec un excellent confort tant en hiver qu'en été, grâce au principe de construction hybride avec un rez-de-chaussée en béton et un étage en ossature bois. L'isolation des constructions est intégralement réalisé avec de la laine de bois souple.

Descriptif technique : L'isolation est commune sur les 2 bâtiments. Les rez-de-chaussée béton sont isolés par l'intérieur avec de la laine de bois de 200mm. Les étages sont revêtus d'un bardage en mélèze non traité et de murs composés de 60mm de fibre de bois rigide devant l'ossature bois de 140mm et d'une isolation en laine de bois entre montants, doublée à l'intérieur de 100mm en laine de bois.` Les toitures sont de type zinc à joint debout posé sur des chevrons de 200mm et d'une laine de bois entre chevrons et d'une couche croisée de 200mm sous les chevrons. Les deux maisons sont équipées de poêles à bois. PEFC (Gestion forestière durable) FSC (Gestion forestière responsable) Maison Haute Performance Energétique

Chauffage au Bois : oui
Appareil de chauffage au bois : Poële/insert
Certifications, labels et marques bâtiment : Bois de France
Données déclaratives

Acteurs du projet

Maître d'ouvrage (1)

Maître d'ouvrage - Particuliers

particulier (x)

Etudes et ingénieries (1)

Maître d'œuvre - Architecte mandataire

Agence Benoît Herrmann Architecte (68)

Entreprises des lots bois (2)

Charpentier

CRÉACHARPENTE (68)

Menuisier

LCM Design (68)




* : L'entreprise n'est plus active
Retour à la liste