Réhabiliter un logement
Réhabiliter un logement

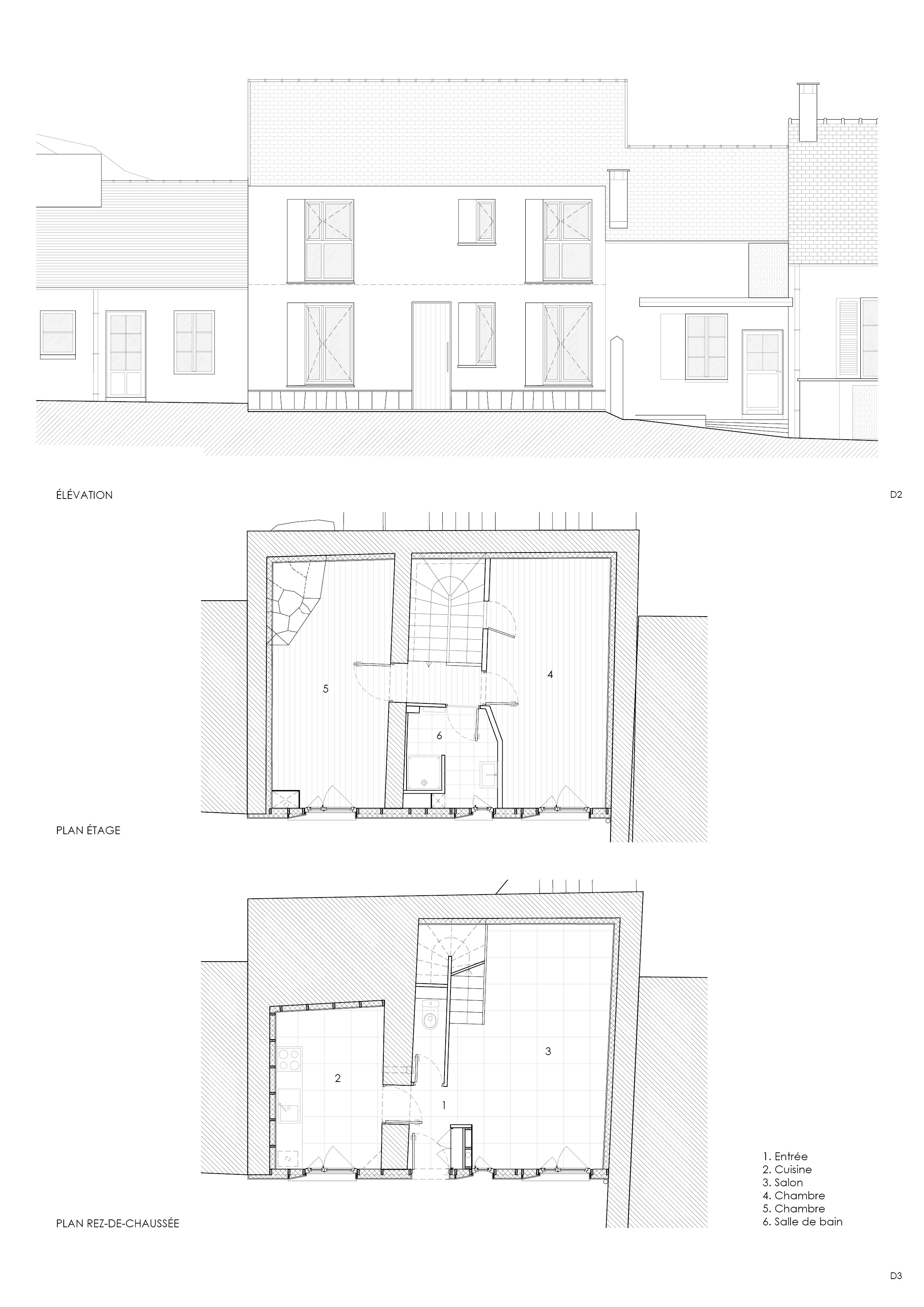
Transformation d'une remise agricole en logement à Boigneville

91720 Boigneville - Essonne - Ile de France

BÂTIMENT / LOGEMENT

Primé au PRCB Île-de-France 2020. L’opération s’inscrit dans une démarche de préservation d’un cadre bâti typique des villages du sud de l’Île-de-France et dans une intervention architecturale bas-carbone. Le projet conserve le volume de la remise existante et réinterprète les caractéristiques de l'architecture rurale afin d'aménager un logement de trois pièces. La façade principale, les planchers et la charpente sont construits en ossature bois avec un remplissage en béton de chanvre. L’usage de matériaux bio-sourcés et le réemploi permettent de promouvoir les savoir faire locaux et les filières courtes du Gâtinais français.

Catégorie Bâtiment / logement
Numéro de projet4215
Date de candidature12/02/2020

Bâtiment / logement

Détail projet

Typologie de bâtiment : Rénovation / Réhabilitation
Type de bâtiment : Logement individuel inférieur 120 m²
Année de livraison : 2018
Surface totale du bâtiment en m² : 70
Coût total en € HT (hors foncier, hors VRD, hors honoraires) : 152000
Lot bois n°1 concerné : ossature bois
Volume lot bois n°1 - m³ : 8
Coût du lot bois n°1 - € HT : 38445
Bois Français : oui
Isolations biosourcées (préciser dans le descriptif technique) : oui
Finitions intéreures biosourcées ou géosourcées (préciser dans le descriptif technique) : oui

Structure bois du bâtiment

Structure verticale :

ProduitEssenceProvenances (lieu de croissance du bois)Traitements de préservationMarque et certification produit
Panneau ossature boisPin sylvestre

Structure horizontale :

ProduitEssenceProvenances (lieu de croissance du bois)Traitements de préservationMarque et certification produit
Solivage traditionnelPin sylvestre

Charpente :

ProduitEssenceProvenances (lieu de croissance du bois)Traitements de préservationMarque et certification produit
Charpente traditionnelle

Revêtement bois extérieur

Menuiserie intérieure et extérieure

Menuiserie extérieure :

ProduitEssenceProvenances (lieu de croissance du bois)Marque et certification produitFinition
Menuiserie boisEurope

Isolation des murs

Isolation intérieure des murs :

Produit
Béton de chanvre
Epaisseur (mm) Isolation intérieure des murs : 120

Isolation entre-montant des murs :

Produit
Béton de chanvre
Epaisseur (mm) Isolation entre-montant des murs : 200

Isolation de la toiture

Epaisseur (mm) Isolation entre-montant de la toiture : 230

Approche environnementale : L’opération propose des dispositifs durables à différentes échelles : Amélioration des performances thermiques du bâti ancien avec l’objectif énergétique du Label BBC-Effinergie rénovation 2009 afin de créer un logement sobre et économe. Optimisation des niveaux de confort été/hiver en maintenant une partie des maçonneries existantes à forte inertie à l’intérieur de la maison. Préservation de la biodiversité locale en intégrant des gîtes et nichoirs à chyroptères dans la structure des murs existants.

Descriptif technique : Cette réhabilitation est exemplaire tant sur le plan patrimonial qu’environnemental. Les structures maçonnées à la chaux sont conservées, les boutisses de grès déposées sont réemployées en sous-bassement. Les structures bois de l'ossature, du solivage et de la charpente sont en bois massif et lamellé collé pour les pièces spécifiques. Les cloisonnements sont en fermacell, le garde corps de l'escalier en contreplaqué bouleau. Les isolants associent plaques de liège sous chape, laine de bois pour le plancher intermédiaire et béton de chanvre projeté sur les parois verticales et charpentes.

Chauffage au Bois : non
Données déclaratives

Acteurs du projet

Maître d'ouvrage (1)

Maître d'ouvrage - État ou collectivité (locale et territ)

Commune de Boigneville (91)

Etudes et ingénieries (3)

Maître d'œuvre - Architecte mandataire

ABDPA (75)

Bureau d'études structure bois

LM Ingénieur (75)

Bureau d'études thermique

LM Ingénieur (75)

Entreprises des lots bois (2)

Charpentier

Grenet SAS (91)

Autre lot de la construction (en lien avec le bois)

DESTAS ET CREIB (91)




* : L'entreprise n'est plus active
Retour à la liste