Réhabiliter un équipement
Réhabiliter un équipement

Musée du Château de Dourdan

91410 Dourdan - Essonne - Ile de France

BÂTIMENT / LOGEMENT

Le Château du 13e siècle est classé au titre des Monuments Historiques. Notre projet consiste en la construction la refonte de salles du musée existant et une extension. Elle comprend notamment un accueil, deux salles muséographiques et pédagogiques modulables. Dans la cour, le bâtiment est à la fois signal et révélateur du patrimoine qui l’environne. Nous avons opté pour une architecture ouverte sur le paysage et légère en bois, qui dialogue avec le contexte et fait référence au bâti médiéval. Ainsi nous redonnons à lire les différentes strates de l’histoire à travers l’architecture.

Catégorie Bâtiment / logement
Numéro de projet4207
Adresse du projet Place du Général de Gaulle
91410 Dourdan
Date de candidature12/02/2020

Bâtiment / logement

Détail projet

Typologie de bâtiment : Extension / surélévation
Type de bâtiment : Culture
Année de livraison : 2019
Surface totale du bâtiment en m² : 132
Coût total en € HT (hors foncier, hors VRD, hors honoraires) : 657972
Lot bois n°1 concerné : ossature bois
Volume lot bois n°1 - m³ : 30
Lot bois n°2 concerné : Bardage bois
Volume lot bois n°2 - m³ : 10
Bois Français : non
Isolations biosourcées (préciser dans le descriptif technique) : non
Finitions intéreures biosourcées ou géosourcées (préciser dans le descriptif technique) : oui

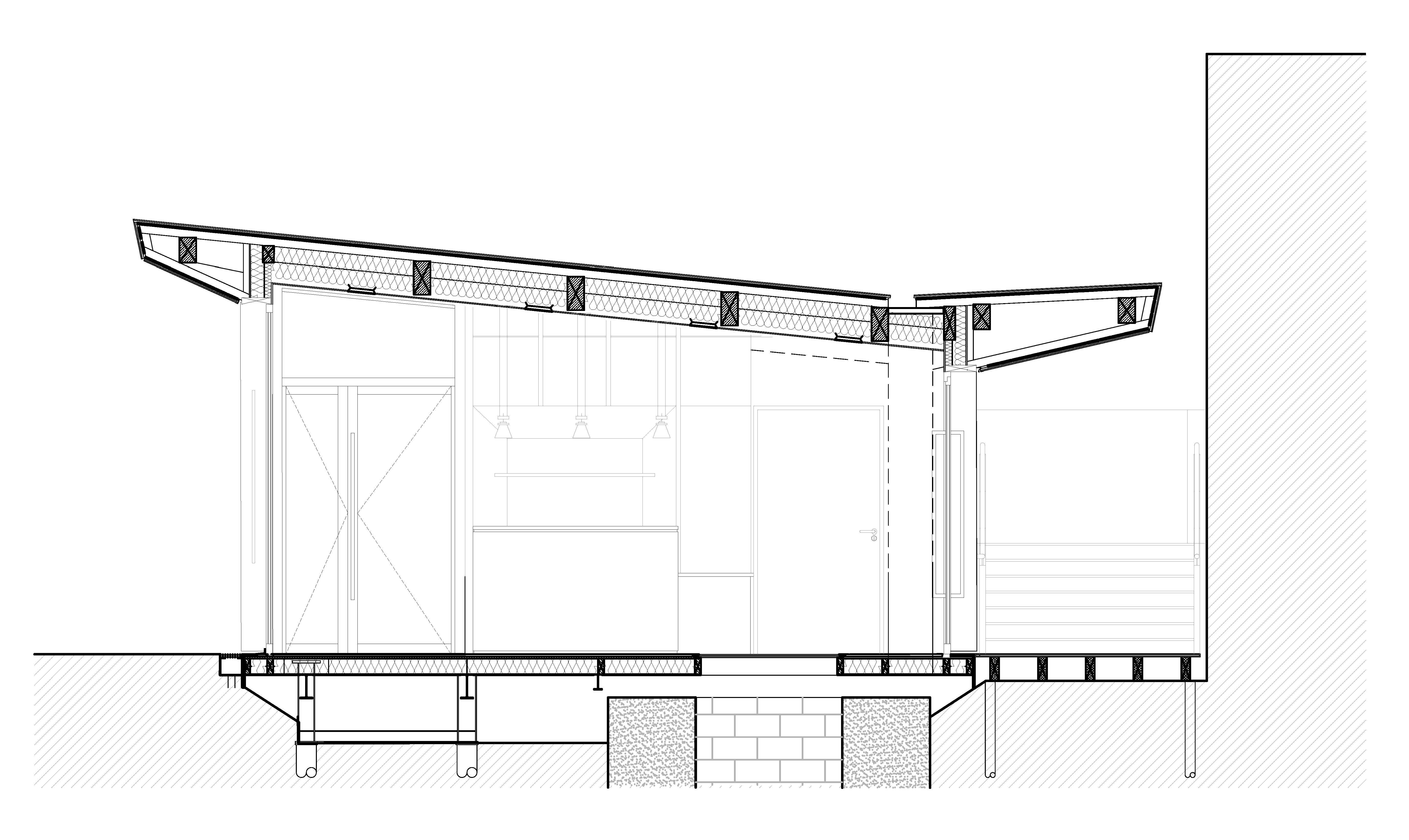
Structure bois du bâtiment

Structure verticale :

ProduitEssenceProvenances (lieu de croissance du bois)Traitements de préservationMarque et certification produit
Poteau poutreEuropeTraitement Classe 2 (trempage)

Structure horizontale :

ProduitEssenceProvenances (lieu de croissance du bois)Traitements de préservationMarque et certification produit
Plancher mixte bois-acier Épicéa communEuropeTraitement Classe 2 (trempage)

Charpente :

ProduitEssenceProvenances (lieu de croissance du bois)Traitements de préservationMarque et certification produit
Charpente bois lamellé-colléÉpicéa communEuropeTraitement Classe 2 (trempage)

Revêtement bois extérieur

Revêtement bois ou dérivés :

ProduitEssenceProvenances (lieu de croissance du bois)Marque et certification produitFinitionTraitements de préservation
Lame bois massifMélèzeEuropeTropicalSaturateurJe n'ai pas l'information

Menuiserie intérieure et extérieure

Menuiserie extérieure :

ProduitEssenceProvenances (lieu de croissance du bois)Marque et certification produitFinition
Menuiserie boisChêneEuropeTropicalPeinture

Isolation des murs

Isolation intérieure des murs :

Produit
Laine de verre
Epaisseur (mm) Isolation intérieure des murs : 60
Epaisseur (mm) Isolation entre-montant des murs : 120

Isolation de la toiture

Epaisseur (mm) Isolation intérieure de la toiture : 140
Epaisseur (mm) Isolation entre-montant de la toiture : 140

Approche environnementale : Le projet d'extension s'intègre dans les critères de développement durable du Département de l’Essonne selon le projet européen CLIMATE. Les objectifs opérationnels et de performance environnementale de basent sur un référentiel chiffré cohérents. - l’intégration à l’environnement du château, - l'utilisation du bois, matériau bio-sourcé à faible emprunte carbone : structure, menuiserie, bardage / parquet, mobilier / platelage et clôture. - le profilage du bâtiment pour favoriser le rafraîchissement naturel, - une conception bioclimatique et une consommation énergétique réduite.

Descriptif technique : La construction dans la cour permet de repenser complètement l’espace public. Il nous a semblé important d’accorder une unité et une qualité matérielle à l’intervention. Nous avons choisi une ossature bois avec bardage en mélèze pré-grisé et couverture en zinc couleur cuivrée. Le bois permet : • une construction légère et réversible sur pieux vissés à 80cm pour la préservation du sous-sol archéologique, • Une matérialité sobre et naturelle pour laisser primer à la maçonnerie médiévale. • Une réinterprétation d’un matériau traditionnel, souvent utilisé au Moyen-Âge en relation avec la pierre

Chauffage au Bois : non
Appareil de chauffage au bois : Autres
Données déclaratives

Acteurs du projet

Maître d'ouvrage (1)

Maître d'ouvrage - État ou collectivité (locale et territ)

Commune de Dourdan (91)

Etudes et ingénieries (6)

Maître d'œuvre - Architecte mandataire

SOJA ARCHITECTURE (75)

Bureau d'études structure bois

IN4 (75)

Bureau d'études thermique

Espace Temps (75)

Economiste

IN4 (75)

Designer / architecte d'intérieur

DESIGNERS UNIT (75)

Paysagiste

Omnibus (75)

Entreprises des lots bois (2)

Charpentier

AUX CHARPENTIERS DE FRANCE (91)

Constructeur bois

AUX CHARPENTIERS DE FRANCE (91)




* : L'entreprise n'est plus active
Retour à la liste