Habiter une maison
Habiter une maison

Maison passive à Bréançon

95640 BREANCON - Val d'Oise - Ile de France

BÂTIMENT / LOGEMENT

La commune de Bréançon étant située dans le périmètre du PNR de Vexin, l’architecture durable de cette maison devait répondre aux objectifs de la charte du Parc. L’architecte conseil du Parc a contribué à ce projet. Situé dans un village protégé par les architectes des bâtiments de France (ABF), le projet résolument contemporain se compose de deux volumes simples: un volume principal reprenant la volumétrie des maisons traditionnelles (RDC + étage sous combles à 2 pans) associé à un volume de plain-pied en toiture terrasse. Le projet s'inscrit dans le prolongement des constructions existantes de manière à conserver le front bâti sur la rue. Sa forme en «L» permet de maîtriser et d’augmenter les apports solaires. Une résille bois ajouré en bardage et en couverture et un double-mur en pierres du Vexin habillent respectivement chaque volumétrie.

Catégorie Bâtiment / logement
Numéro de projet4189
Date de candidature10/02/2020

Bâtiment / logement

Détail projet

Typologie de bâtiment : Neuf
Type de bâtiment : Logement individuel supérieur à 120 m²
Année de livraison : 2016
Surface totale du bâtiment en m² : 258.24
Coût total en € HT (hors foncier, hors VRD, hors honoraires) : 530000
Bois Français : non
Isolations biosourcées (préciser dans le descriptif technique) : non
Finitions intéreures biosourcées ou géosourcées (préciser dans le descriptif technique) : non

Structure bois du bâtiment

Structure verticale :

ProduitEssenceProvenances (lieu de croissance du bois)Traitements de préservationMarque et certification produit
Panneau ossature boisÉpicéa communFranceJe n'ai pas l'information

Structure horizontale :

ProduitEssenceProvenances (lieu de croissance du bois)Traitements de préservationMarque et certification produit
Solivage traditionnelÉpicéa communFranceJe n'ai pas l'information

Charpente :

ProduitEssenceProvenances (lieu de croissance du bois)Traitements de préservationMarque et certification produit
Charpente traditionnelleÉpicéa communFranceJe n'ai pas l'information

Revêtement bois extérieur

Revêtement bois ou dérivés :

ProduitEssenceProvenances (lieu de croissance du bois)Marque et certification produitFinitionTraitements de préservation
Lame bois massifWestern red cedar (Thuya géant)AmériqueAucune finitionAucun traitement

Revêtement minéral :

Produit
Pierre collée

Menuiserie intérieure et extérieure

Menuiserie extérieure :

ProduitEssenceProvenances (lieu de croissance du bois)Marque et certification produitFinition
Menuiserie mixteTempéréJe n'ai pas l'information

Isolation des murs

Isolation intérieure des murs :

Produit
Epaisseur (mm) Isolation intérieure des murs : 80

Isolation entre-montant des murs :

Produit
Laine de roche
Epaisseur (mm) Isolation entre-montant des murs : 300

Isolation extérieure des murs :

Produit

Isolation de la toiture

Epaisseur (mm) Isolation intérieure de la toiture : 360
Epaisseur (mm) Isolation entre-montant de la toiture : 80

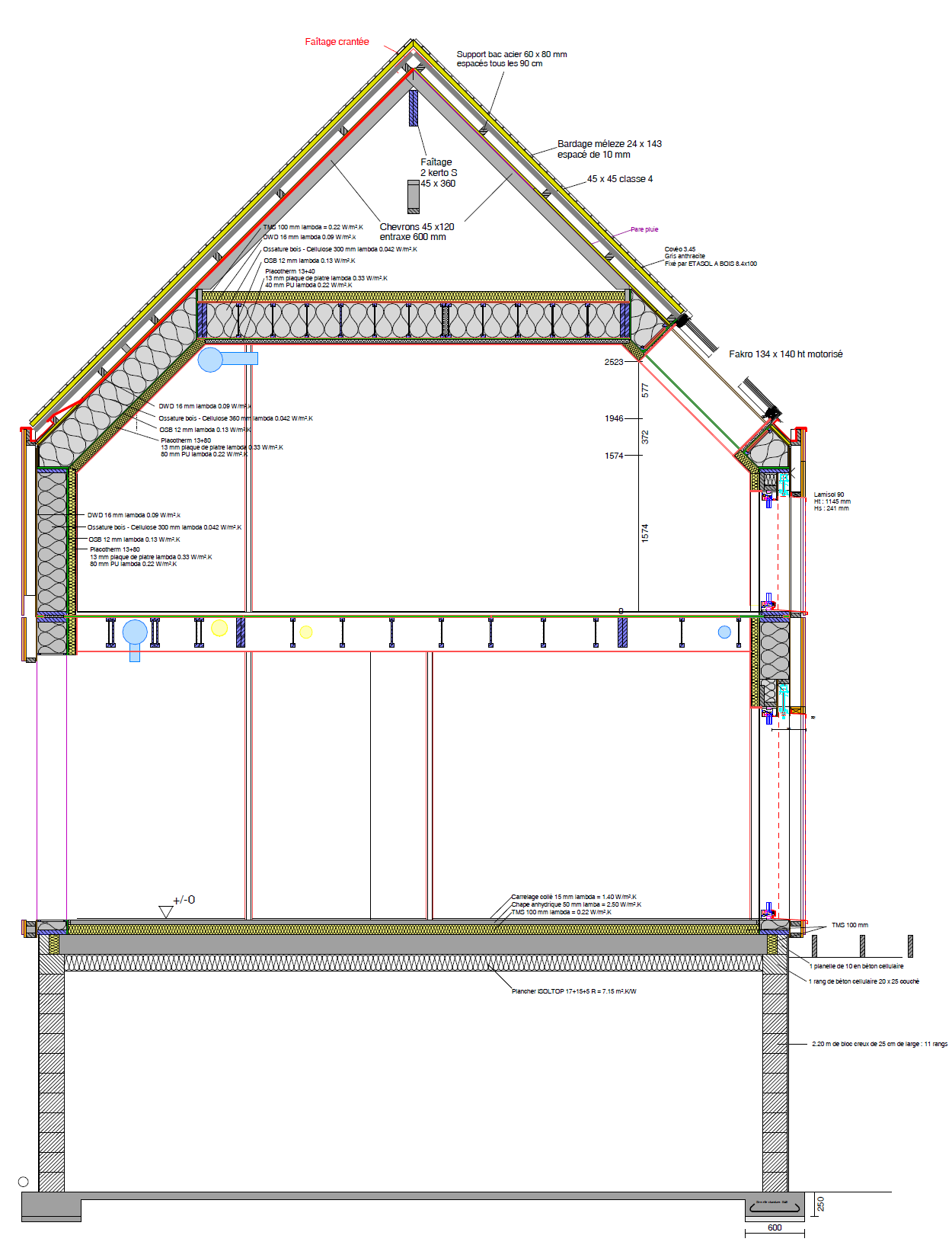
Approche environnementale : Le choix du bois s'est imposé par son bilan environnemental aussi bien pour le propriétaire, l'architecte que pour le constructeur. D'autre part la structure ossature bois fortement isolée avec de la ouate de cellulose a permis d'atteindre les objectifs du label Passif. La Pierre du Vexin a été mise en œuvre via un système de double-mur sur semelle de fondation devant l'ossature bois.

Descriptif technique : L’isolation de la dalle de plancher bas a été effectuée avec des panneaux en mousse de polyuréthane 100 mm (TMS), λ = 0,022 W/(m.K) sur un plancher ISOLTOP, R=7.5 m².K/W. La composition de la paroi extérieure depuis l'intérieur vers l'extérieur : Doublage 13+80 PU, OSB, ossature bois avec ouate de cellulose 36 cm, fibre de bois 1,6 cm, bardage ajouré ou double-mur en pierre. Une membrane « nid d’abeille » permet la fixation des pierres aux murs bois, en assurant une ventilation entre la maçonnerie et le mur bois. La sur-toiture en bois est posée sur un bac acier via des pattes de fixations destinées initialement aux panneaux solaires. Les menuiseries en triple vitrage sont équipées de stores automatisés afin de réguler les apports solaires et d’éviter les surchauffes. Les fenêtres de toit sont en quadruple vitrage. La consommation finale de la maison pour le chauffage et la fourniture d’ECS est de 3 347 kWh par an, soit environ 400 €. 58 % de la consommation d’énergie est relative au chauffage et 42 % à la fourniture d’eau chaude sanitaire (ECS). La consommation d’énergie primaire pour les deux usages est estimée à 7 829 kWhep. Une VMC double-flux couplée à un puits canadien a été installée. La ventilation est assurée par une VMC double flux Paul dont le rendement est de 92 % avec une consommation électrique de 0,26 Wh par m3. Un appoint de chauffage est fourni par des radiateurs électriques et un poêle à bois Une pompe à chaleur assure la fourniture d’eau chaude sanitaire.

Chauffage au Bois : oui
Appareil de chauffage au bois : Poële/insert
Certifications, labels et marques bâtiment : Passivhaus
Données déclaratives

Acteurs du projet

Maître d'ouvrage (1)

Maître d'ouvrage - Particuliers

particulier (x)

Etudes et ingénieries (1)

Maître d'œuvre - Architecte mandataire

Atelier 970 (76)

Entreprises des lots bois (1)

Constructeur bois

LES AIRELLES (76)




* : L'entreprise n'est plus active
Retour à la liste