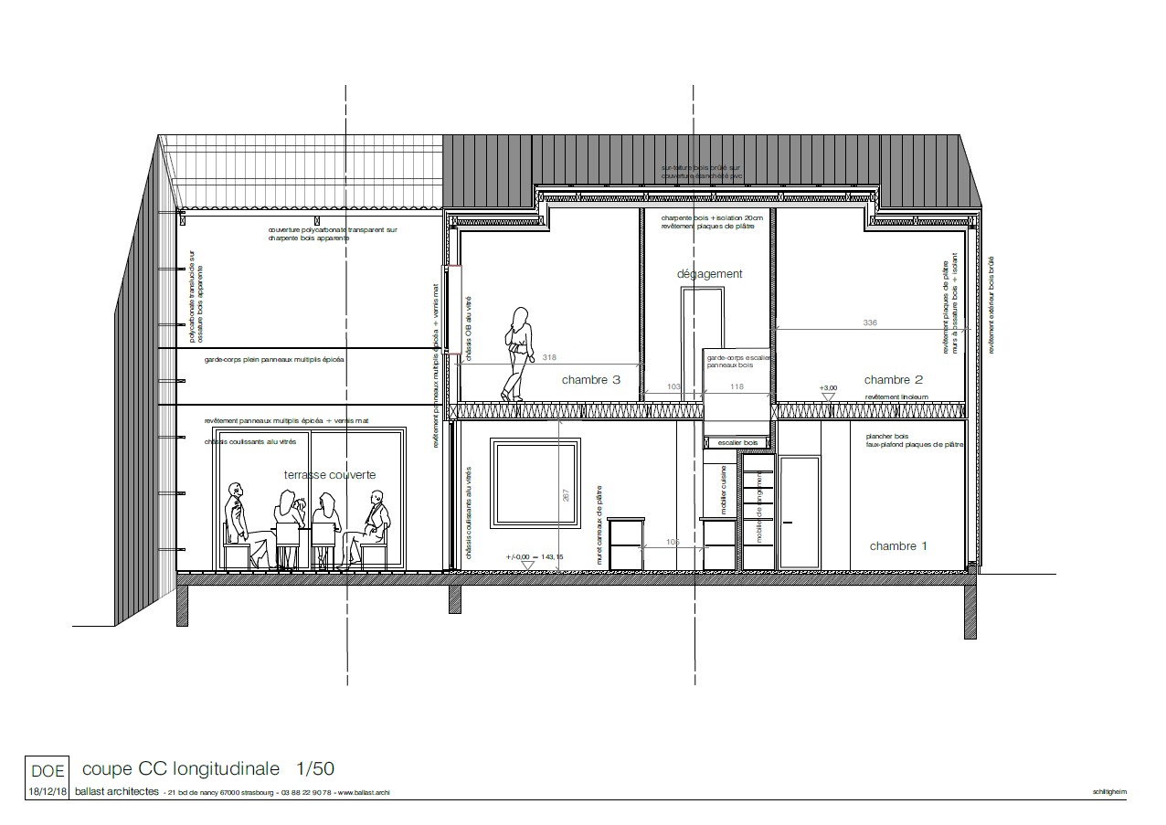
Le projet prend place dans un quartier dense d'anciennes maisons alsaciennes. Il vient remplacer une ancienne grange très dégradée, dont il reprend l'implantation. Constituée d'un unique corps de bâti, la maison présente une façade pleine vers la cour et la rue et protège le jardin en cœur d'îlot, au Sud-Est. Le volume est habillé de lames de bois brûlé, en façade et en toiture, et il comporte un angle pleinement transparent et lumineux. La serre laisse apparaître la structure en bois naturel, et se développe sur 2 niveaux, créant un volume chaleureux, tant intérieur qu'ouvert sur le ciel.
Catégorie | Bâtiment / logement |
---|---|
Numéro de projet | 4184 |
Date de candidature | 10/02/2020 |
Structure verticale :
Produit | Essence | Provenances (lieu de croissance du bois) | Traitements de préservation | Marque et certification produit | |
---|---|---|---|---|---|
Madrier empilé | Épicéa commun | Grand-Est | Aucun traitement |
Structure horizontale :
Produit | Essence | Provenances (lieu de croissance du bois) | Traitements de préservation | Marque et certification produit | |
---|---|---|---|---|---|
Solivage traditionnel | Épicéa commun | Grand-Est | Aucun traitement |
Charpente :
Produit | Essence | Provenances (lieu de croissance du bois) | Traitements de préservation | Marque et certification produit | |
---|---|---|---|---|---|
Charpente industrielle | Épicéa commun | Grand-Est | Aucun traitement |
Revêtement bois ou dérivés :
Produit | Essence | Provenances (lieu de croissance du bois) | Marque et certification produit | Finition | Traitements de préservation |
---|---|---|---|---|---|
Lame bois massif | Douglas | Grand-Est | Bois brulé | Aucun traitement |
Revêtement minéral :
Produit | |||||
---|---|---|---|---|---|
Autres |
Isolation intérieure des murs :
Produit | |||||
---|---|---|---|---|---|
Isolation entre-montant des murs :
Produit | |||||
---|---|---|---|---|---|
Approche environnementale : La conception du projet s'appuie sur les principes bioclimatiques : une enveloppe compacte, bien isolée, aux ouvertures orientées vers le Sud et le jardin. Appuyée sur un socle de béton avec une dalle très isolée, l'enveloppe en ossature bois et insufflation de ouate de cellulose présente une grande efficacité thermique. Les matériaux sont sélectionnés pour leur impact sanitaire et environnemental : les bois de structure et de bardage sont issus de forêts locales (épicéa et douglas), et non traités. La protection des bardages est réalisée par un brûlage et une huile de lin.
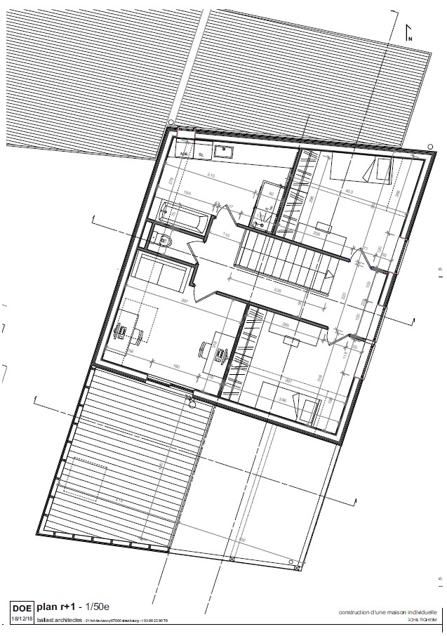
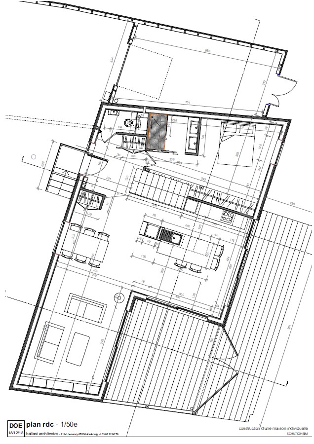
Descriptif technique : Soubassement (fondations, murs et dalle RdC) en béton armé, avec vide sanitaire fortement isolé. Murs à ossature bois, plancher bois, charpente bois. Isolation murs et charpente en ouate de cellulose insufflée. Bardage extérieur en lames de douglas brûlé, brossé et huilé en façades et toiture. Menuiseries aluminium laqué, double vitrage. Serre en polycarbonate simple peau sur charpente bois. Finitions intérieures des rampants de toiture en panneaux trois plis d'épicéa non traités. Ensemble Escalier/Cuisine en trois plis de bouleau huilés, plans de travail en lamellé de hêtre.
Chauffage au Bois : oui