Travailler – accueillir
Travailler – accueillir

Carrosserie Ligier

25800 Valdahon - Doubs - Bourgogne-Franche-Comté
Lauréat régional
Finaliste national

BÂTIMENT / LOGEMENT

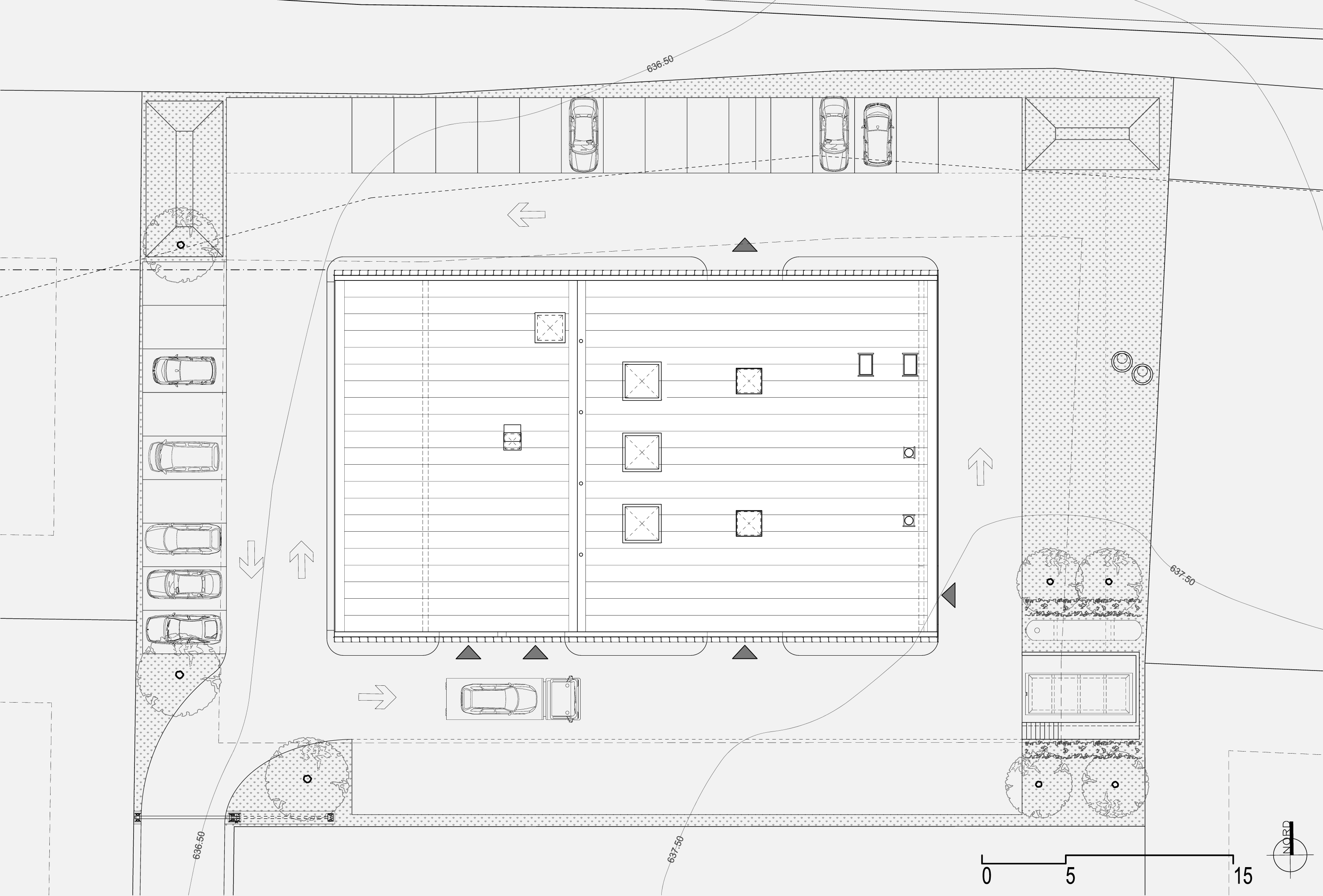
Sans renoncer à la qualité architecturale de ce projet de carrosserie automobile, un faible cout de construction a été recherché pour répondre aux problématiques de la construction d’ateliers tertiaires. Le dimensionnement de l’ouvrage -axes, trames- a été dicté par l’ordonnancement des espaces de travail de l’atelier, assurant ainsi une fonctionnalité optimale. Les postes de travail disposés entre chaque élément de charpente et sous les ouvertures de toitures, gagnent en hauteur sous plafond et en luminosité pour un plus grand confort de travail.

Catégorie Bâtiment / logement
Numéro de projet4178
Adresse du projet 10 Rue Denis Papin ZA en Pougie
25800 Valdahon
Date de candidature10/02/2020

Bâtiment / logement

Détail projet

Typologie de bâtiment : Neuf
Type de bâtiment : Industrie et commerce
Année de livraison : 2018
Surface totale du bâtiment en m² : 656
Coût total en € HT (hors foncier, hors VRD, hors honoraires) : 428923
Lot bois n°1 concerné : Charpente bois
Volume lot bois n°1 - m³ : 65
Coût du lot bois n°1 - € HT : 101165
Lot bois n°2 concerné : Menuiserie extérieure bois
Volume lot bois n°2 - m³ : 1
Coût du lot bois n°2 - € HT : 18385
Bois Français : oui
Isolations biosourcées (préciser dans le descriptif technique) : non
Finitions intéreures biosourcées ou géosourcées (préciser dans le descriptif technique) : non

Structure bois du bâtiment

Structure verticale :

ProduitEssenceProvenances (lieu de croissance du bois)Traitements de préservationMarque et certification produit
Panneau ossature boisÉpicéa communBourgogne-Franche-ComtéAucun traitement
Panneau de bois massif (CLT collé ou CLT cloué)Sapin pectinéEuropeAucun traitement

Structure horizontale :

ProduitEssenceProvenances (lieu de croissance du bois)Traitements de préservationMarque et certification produit
Solivage traditionnelSapin pectinéEuropeAucun traitement

Charpente :

ProduitEssenceProvenances (lieu de croissance du bois)Traitements de préservationMarque et certification produit
Charpente industrielleSapin pectinéEuropeAucun traitement
Charpente bois lamellé-colléSapin pectinéEuropeAucun traitement

Revêtement bois extérieur

Revêtement bois ou dérivés :

ProduitEssenceProvenances (lieu de croissance du bois)Marque et certification produitFinitionTraitements de préservation
Bardeau boisMélèzeEuropeAucune finitionAucun traitement

Menuiserie intérieure et extérieure

Menuiserie extérieure :

ProduitEssenceProvenances (lieu de croissance du bois)Marque et certification produitFinition
Menuiserie boisMélèzeAsie

Isolation des murs

Isolation entre-montant des murs :

Produit
Laine de roche
Epaisseur (mm) Isolation entre-montant des murs : 240

Isolation de la toiture

Epaisseur (mm) Isolation extérieure de la toiture : 160

Approche environnementale : Privilégier une construction sur mesure et qualitative en zone d’activité permet de proposer des alternatives aux structures aciers habituelles. Savoir-faire et ressources locales peuvent alors être valorisés. Tous les bois sont laissés bruts. Ils sont protégés à l’extérieur dans ce but par un large débord de toiture. Les Murs à Ossature Bois ont été réalisés en essences locales. De nombreuses ouvertures en façade et en toiture limitent l’éclairage artificiel. Isolation, inertie du noyau central maçonné, et sur-ventilation naturelle par les portes sectionnelles garantissent un confort d'été.

Descriptif technique : Constructivement, une assise béton au sol accueille l'enveloppe en bois -MOB, charpente, complexe de toiture-. L’acoustique des ateliers a été gérée par un pare-vapeur acoustique en sous face de toiture et un lattis bois formant piège à son. L’ensemble des MOB ont été ajourés, calepinés et profilés pour intégrer une menuiserie en polycarbonate continue sur toute la longueur des façades. Les poutres treillis bois d’une portée de 21m et le débord de toiture de 5,40m assuré par des poutres en Bois Lamellé Collé révèlent l’adaptabilité du matériau bois à l’usage des programmes tertiaires.

Chauffage au Bois : non
Données déclaratives

Acteurs du projet

Maître d'ouvrage (1)

Maître d'ouvrage - Industriels - commerçants - entreprise

particulier (x)

Etudes et ingénieries (4)

Maître d'œuvre - Architecte mandataire

Architectures Amiot-Lombard (25)

Bureau d'études structure bois

ETABLISSEMENTS VERDOT (25)
FDI (25)

Bureau d'études thermique

BET BELLUCCI (25)

Entreprises des lots bois (2)

Charpentier

ETABLISSEMENTS VERDOT (25)

Menuisier

GIRARD-MENUISERIE-EBENISTERIE-CHARP (25)

Fournisseurs du bois (1)

Scierie

SCIERIE VERDOT (25)




* : L'entreprise n'est plus active
Retour à la liste