Réhabiliter un logement
Réhabiliter un logement

33 Maisons sur les toits à Poissy

78300 Poissy - Yvelines - Ile de France

BÂTIMENT / LOGEMENT

Primé au PRCB Île-de-France 2020. A Poissy, à proximité de la Villa Savoye de Le Corbusier, La surélévation concerne 3 « barres » R+4 appartenant à un ensemble construit en 57. Le projet propose une réécriture contemporaine des bâtiments et introduit le bois, matériau à forte valeur ajoutée. La simplicité d’écriture, un nouveau "ski-line" et un gabarit qui rappelle la «maison», proposent une nouvelle lecture des lieux. Cette double opération est aussi l’occasion d’améliorer les logements existants en créant des ascenseurs sur l’ensemble du site et un balcon préfabriqué bois pour chaque logement réhabilité.

Catégorie Bâtiment / logement
Numéro de projet4168
Date de candidature07/02/2020

Bâtiment / logement

Détail projet

Typologie de bâtiment : Extension / surélévation,Rénovation / Réhabilitation
Type de bâtiment : Logement collectif
Année de livraison : 2019
Surface totale du bâtiment en m² : 2370
Lot bois n°1 concerné : Charpente bois
Bois Français : non
Isolations biosourcées (préciser dans le descriptif technique) : non
Finitions intéreures biosourcées ou géosourcées (préciser dans le descriptif technique) : non

Structure bois du bâtiment

Structure verticale :

ProduitEssenceProvenances (lieu de croissance du bois)Traitements de préservationMarque et certification produit
Panneau ossature bois
Panneau ossature boisJe n'ai pas l'information

Structure horizontale :

ProduitEssenceProvenances (lieu de croissance du bois)Traitements de préservationMarque et certification produit
Panneau de bois massif (CLT collé ou CLT cloué)Épicéa communJe n'ai pas l'information

Charpente :

ProduitEssenceProvenances (lieu de croissance du bois)Traitements de préservationMarque et certification produit
Charpente industrielle

Revêtement bois extérieur

Revêtement bois ou dérivés :

ProduitEssenceProvenances (lieu de croissance du bois)Marque et certification produitFinitionTraitements de préservation
Lame bois massifDouglasSaturateurTraitement Classe 4 (autoclave)

Menuiserie intérieure et extérieure

Isolation des murs

Isolation entre-montant des murs :

Produit
Laine de verre

Isolation de la toiture

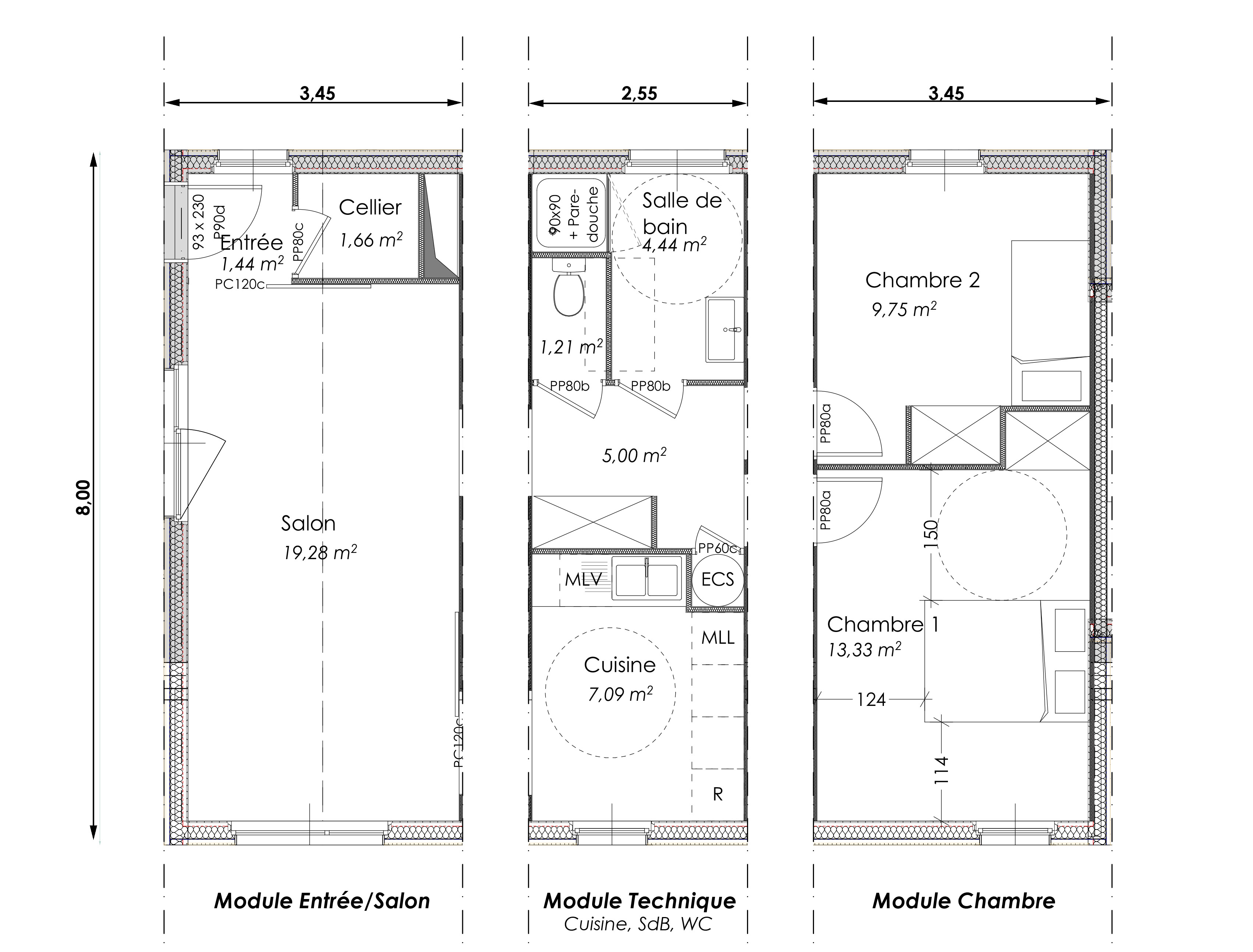
Approche environnementale : Le bois: matériau idéal pour une surélévation en milieu occupé. Les modules préfabriqués en usine arrivent par camion "prêts à poser": les façades en bardage bois, les cloisons intérieures, les menuiseries extérieures, les revêtements de sols et muraux ainsi que les installations techniques sont installées en atelier et prêts à être raccordés. Les modules sont aussi équipés de leur ameublement et des sanitaires. Le temps de chantier est écourté: 1 maison = 3 modules + 1 toit = 1 mois de travail en atelier +1/2 journée de transport + 1/2 journée de levage + 2 jours raccord réseau

Descriptif technique : Les logements sont constitués de 3 ou 4 modules en fonction des typologies 1 module chambres, 1 module entrée/salon, 1 module technique (cuisine, salle de bains, WC), 1 toiture préfabriquée Tous ces éléments ont été dessinés spécifiquement pour le projet en tenant compte des contraintes des barres existantes (largeur, longueur), des possibilités maxima de transport, et de l’esthétique retenue. Un plénum technique permet de connecter les réseaux entre les logements crées et le bâtiment existant. Les logements sont desservis par une coursive extérieure accessible depuis les ascenseurs créés. Marquage CE Habitat et Environnement

Chauffage au Bois : non
Certifications, labels et marques bâtiment : BBC Effinergie rénovation
Données déclaratives

Acteurs du projet

Maître d'ouvrage (1)

Maître d'ouvrage - Bailleur social privé

VILOGIA (59)

Etudes et ingénieries (2)

Maître d'œuvre - Architecte mandataire

VIRTUEL ARCHITECTURE (75)

Bureau d'études thermique

BETHAC (94)

Entreprises des lots bois (2)

Charpentier

CONSTRUCTION MILLET BOIS (CMB CHARPENTE) (79)

Autre lot de la construction (en lien avec le bois)

GTM Bâtiment (92)




* : L'entreprise n'est plus active
Retour à la liste