Habiter une maison
Habiter une maison

MAISON L

35520 MELESSE - Ille et Vilaine - Bretagne

BÂTIMENT / LOGEMENT

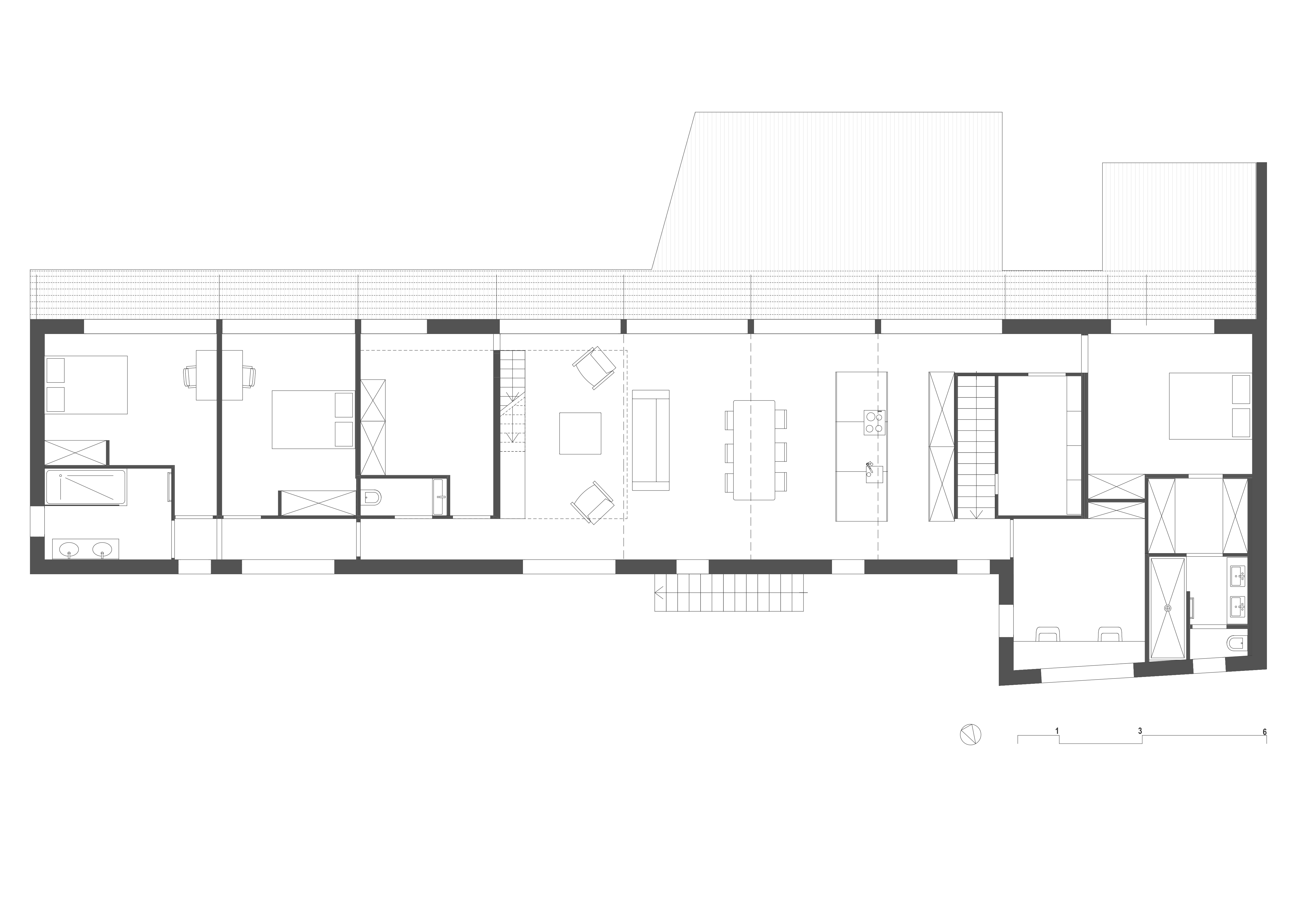
Une parcelle atypique: vaste (+800m²), étendue (33 m) et surplombant la rue (1.30m) conjuguée à la confiance des clients nous ont permis une grande liberté de conception. Respectant 3 critères établis : chaleureux, lumineux et racé, nous avons opté pour: -une construction bois visible -l'ensemble des pièces au sud, sublimées par de larges baies vitrées. -la mezzanine vient parfaire l'espace, prolongeant le champ visuel. Pensée comme une carapace qui préserve son intimité de la rue pour s'offrir au jardin, l'alternance de crochets inox et noirs donne à cette enveloppe ses reflets caméléon.

Catégorie Bâtiment / logement
Numéro de projet4155
Date de candidature06/02/2020

Bâtiment / logement

Détail projet

Typologie de bâtiment : Neuf
Type de bâtiment : Logement individuel supérieur à 120 m²
Année de livraison : 2019
Surface totale du bâtiment en m² : 201
Coût total en € HT (hors foncier, hors VRD, hors honoraires) : 431000
Lot bois n°1 concerné : Charpente bois
Volume lot bois n°1 - m³ : 14.977
Coût du lot bois n°1 - € HT : 20878.97
Lot bois n°2 concerné : ossature bois
Volume lot bois n°2 - m³ : 5.089
Coût du lot bois n°2 - € HT : 20845.76
Bois Français : non
Isolations biosourcées (préciser dans le descriptif technique) : non
Finitions intéreures biosourcées ou géosourcées (préciser dans le descriptif technique) : non

Structure bois du bâtiment

Structure verticale :

ProduitEssenceProvenances (lieu de croissance du bois)Traitements de préservationMarque et certification produit
Panneau ossature boisEuropeTraitement Classe 2 (trempage)

Structure horizontale :

ProduitEssenceProvenances (lieu de croissance du bois)Traitements de préservationMarque et certification produit
Solivage traditionnelÉpicéa communEuropeTraitement Classe 2 (trempage)

Charpente :

ProduitEssenceProvenances (lieu de croissance du bois)Traitements de préservationMarque et certification produit
Charpente traditionnelleÉpicéa communEuropeTraitement Classe 3b (autoclave)

Revêtement bois extérieur

Revêtement minéral :

Produit
Autres

Menuiserie intérieure et extérieure

Menuiserie extérieure :

ProduitEssenceProvenances (lieu de croissance du bois)Marque et certification produitFinition
Brise soleil boisPin maritimeEuropePeinture

Isolation des murs

Isolation intérieure des murs :

Produit
Laine de verre
Epaisseur (mm) Isolation intérieure des murs : 100

Isolation entre-montant des murs :

Produit
Laine de verre
Epaisseur (mm) Isolation entre-montant des murs : 140

Isolation de la toiture

Epaisseur (mm) Isolation intérieure de la toiture : 100
Epaisseur (mm) Isolation entre-montant de la toiture : 200

Approche environnementale : Le positionnement sur site est né de volontés multiples: dégager un jardin au sud, orienter les pièces de la maison sur celui-ci et enfin travailler avec les contraintes altimétriques du terrain naturel. La dalle basse permet de répondre au besoin d'accès et de stationnements. La dalle haute au besoin d' "habiter" dans des conditions optimales: ventilation et percements ponctuels au nord tandis que le sud est généreusement ouvert. Les apports solaires sont contrôlés par des brises soleils en bois ainsi que des BSO sur chaque baies. La maison est RT 2012, classé A et B en GES.

Descriptif technique : Le niveau bas; niveau de la rue est en béton et Stepoc. La dalle haute est construite sur des fondations ponctuelles pour ne pas altérer le terrain naturel. Sur ce niveau, murs et charpente sont en bois et construits selon une trame d’un peu plus de 3 m. Cette trame axe l'ensemble du programme: l'espace enfant à l’Est, l’espace de vie au centre, l’espace parental à l’ouest. La charpente asymétrique réduit l’impact du volume des limites Est/Ouest, joue du dénivelé depuis la rue, tout en assurant une double hauteur sur le séjour. La structure est entièrement revêtue d'ardoises Eternit. Marquage CE NF Maison Individuelle

Chauffage au Bois : non
Données déclaratives

Acteurs du projet

Maître d'ouvrage (1)

Maître d'ouvrage - Particuliers

particulier (x)

Etudes et ingénieries (3)

Maître d'œuvre - Architecte mandataire

PHENOME ARCHITECTURES (35)

Bureau d'études structure bois

3C ECO STRUCTURES (35)

Bureau d'études thermique

ECO ENERGIE CONSEIL (35)

Entreprises des lots bois (1)

Charpentier

CHARPENTE JPG (35)




* : L'entreprise n'est plus active
Retour à la liste