Travailler – accueillir
Travailler – accueillir

Bâtiment à usage de bureaux

35530 Noyal-sur-Vilaine - Ille et Vilaine - Bretagne

BÂTIMENT / LOGEMENT

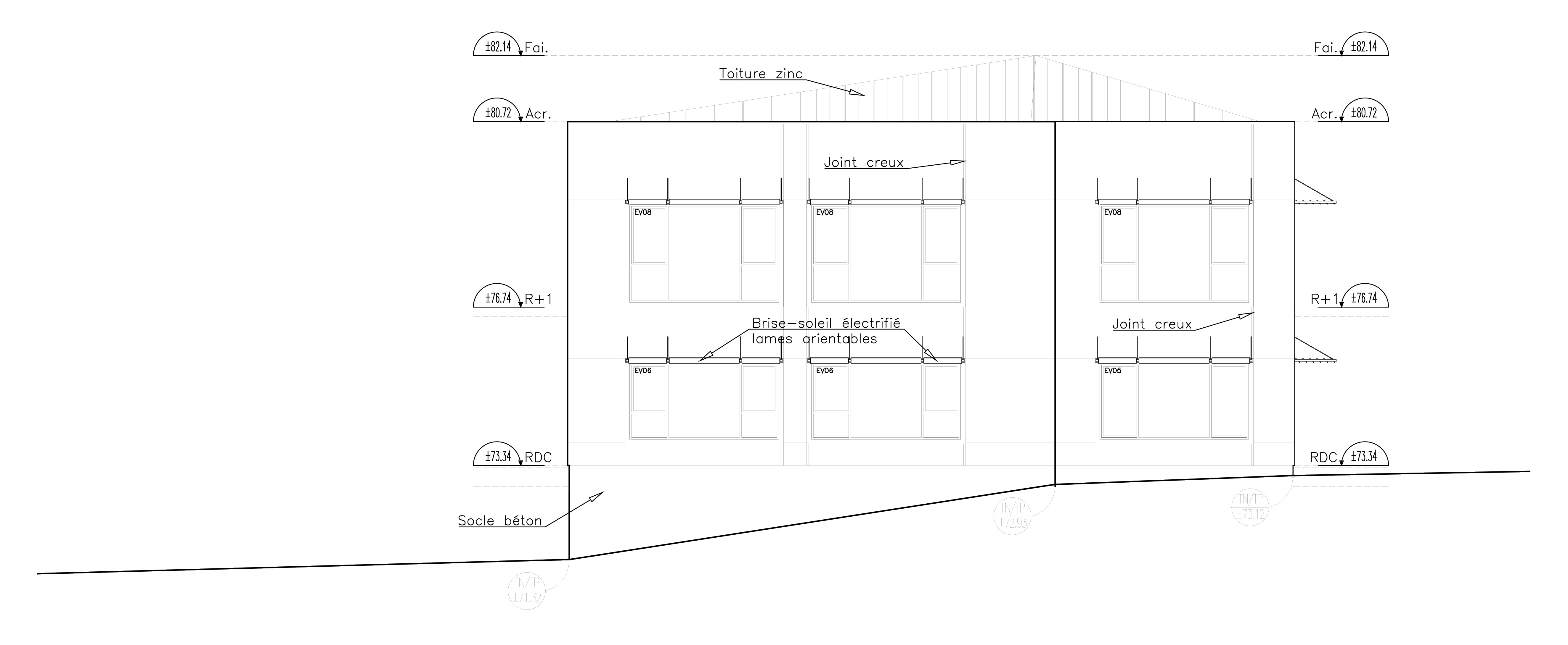
Pour remplacer l'un de ses bâtiments, cette société a fait le choix d'une construction innovante à haute performance énergétique. Conçu dans la lignée architecturale du siège social présent sur le site, l’ouvrage se démarque par son éco-conception, écho de la politique du maître d’ouvrage. En un volume unique sur 3 niveaux, ce projet bénéficie d'un apport de lumière naturelle au centre du bâtiment jusqu'au rez-de-chaussée grâce à une verrière intégrée dans la toiture en zinc. La température intérieure est régulée par les brise-soleil extérieurs et par l'emploi d'isolants performants.

Catégorie Bâtiment / logement
Numéro de projet4131
Adresse du projet 8 rue Julien Neveu
35530 Noyal-sur-Vilaine
Date de candidature05/02/2020

Bâtiment / logement

Détail projet

Typologie de bâtiment : Neuf
Type de bâtiment : Lieu d'entreprise
Année de livraison : 2018
Surface totale du bâtiment en m² : 935
Lot bois n°1 concerné : Charpente bois
Volume lot bois n°1 - m³ : 571
Coût du lot bois n°1 - € HT : 142100
Bois Français : non
Isolations biosourcées (préciser dans le descriptif technique) : oui
Finitions intéreures biosourcées ou géosourcées (préciser dans le descriptif technique) : non

Structure bois du bâtiment

Structure verticale :

ProduitEssenceProvenances (lieu de croissance du bois)Traitements de préservationMarque et certification produit
Panneau ossature boisEuropeTraitement Classe 2 (trempage)

Structure horizontale :

ProduitEssenceProvenances (lieu de croissance du bois)Traitements de préservationMarque et certification produit
Plancher bétonTempéréAucuneAucun traitement

Charpente :

ProduitEssenceProvenances (lieu de croissance du bois)Traitements de préservationMarque et certification produit
Charpente bois lamellé-colléTempéréAucuneTraitement Classe 2 (trempage)

Revêtement bois extérieur

Revêtement minéral :

Produit
Enduit chaux

Menuiserie intérieure et extérieure

Isolation des murs

Isolation entre-montant des murs :

Produit
Béton de chanvre
Epaisseur (mm) Isolation entre-montant des murs : 200

Isolation de la toiture

Epaisseur (mm) Isolation entre-montant de la toiture : 300

Approche environnementale : Les grandes baies vitrées des façades est et sud sont protégées par des brise-soleil horizontaux permettant de réguler la température intérieure. Quant à la façade ouest, elle développe un important linéaire comportant également de généreuses baies vitrées, aussi des brise-soleil verticaux y sont placés afin d'éviter une surchauffe des locaux. L’usage de matériaux biosourcés d’origine locale et la conception bioclimatique permettent d’inscrire le bâtiment dans une démarche de labellisation Bâtiment Bas Carbone.

Descriptif technique : Entièrement réalisés en béton de chanvre, les sols, façades et couvertures du bâtiment respirent, absorbent l'humidité et assurent une température ambiante stable et continue en été et en hiver afin de préserver une véritable qualité de vie et de travail en son sein.

Chauffage au Bois : non
Certifications, labels et marques bâtiment : E + C -,Bâtiment Bas Carbone (BBCA)
Données déclaratives

Acteurs du projet

Maître d'ouvrage (1)

Maître d'ouvrage - Industriels - commerçants - entreprise

TRIBALLAT NOYAL (35)

Etudes et ingénieries (4)

Maître d'œuvre - Architecte mandataire

KOUTEV ARCHITECTURE (35)

Maître d’œuvre - Architecte collaborateur

Can Ingenieurs Architectes (44)

Bureau d'études structure bois

OUEST STRUCTURES (35)

Bureau d'études thermique

Bio B.E [Bio Bâtenergie] (44)

Entreprises des lots bois (2)

Charpentier

CONSTRUCTION MILLET BOIS (CMB CHARPENTE) (79)

Autre lot de la construction (en lien avec le bois)

LB ECO HABITAT (L.B.E.H) (35)




* : L'entreprise n'est plus active
Retour à la liste