Apprendre – se divertir
Apprendre – se divertir

Groupe scolaire de la fontaine à Verdun-sur-Garonne

82600 Verdun-sur-Garonne - Tarn et Garonne - Occitanie

BÂTIMENT / LOGEMENT

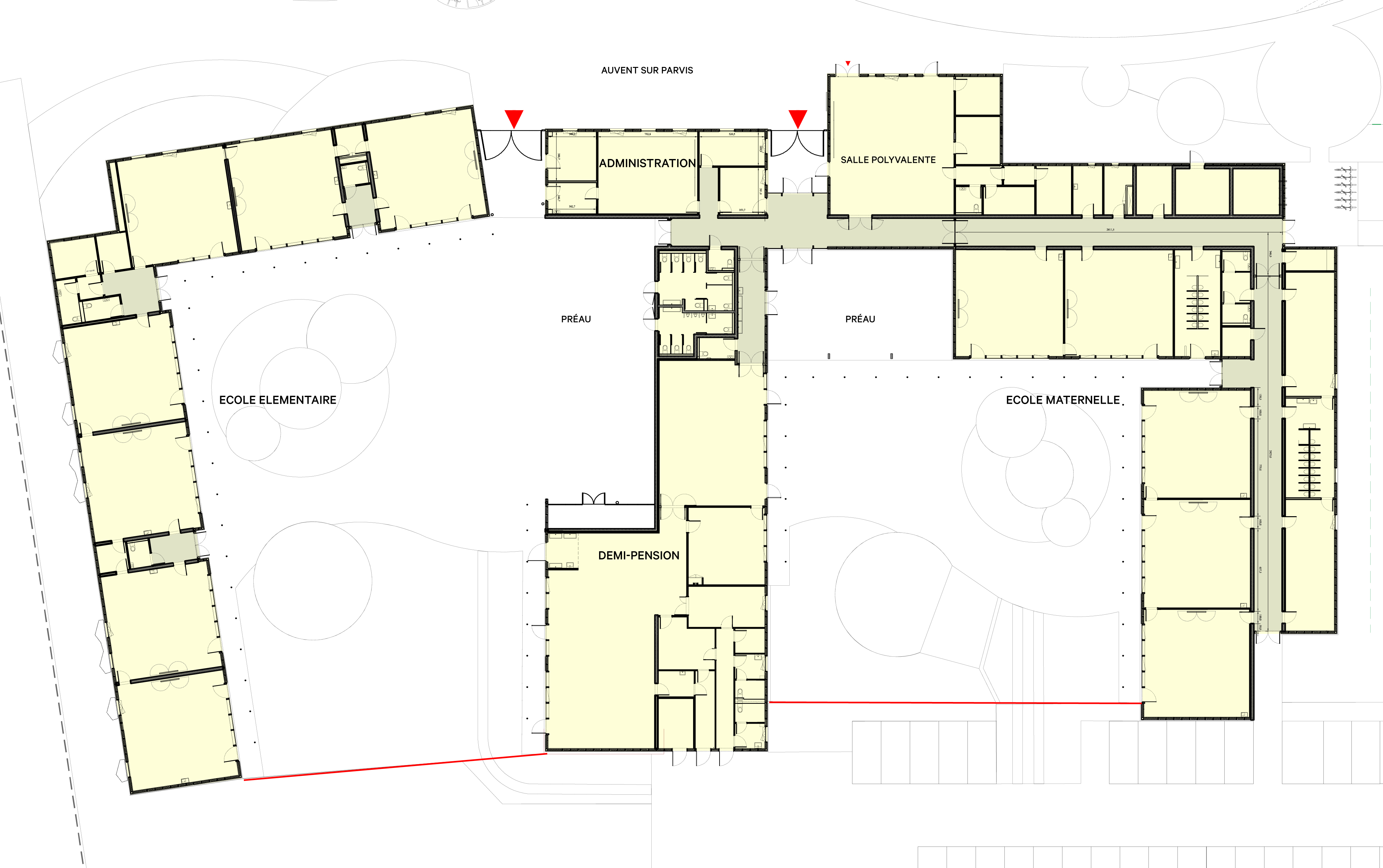
Avec une démographie croissante, Verdun a eu besoin d'un équipement structurant et rapidement construit : - Un Groupe scolaire adapté aux besoins actuels de l’enseignement et flexible pour d’autres activités (associatives & périscolaire) - Un paysage et un auvent signal pour annoncer l'institution "école" au sein d'un quartier en développement. Phaser et construire vite avec une approche fonctionnelle et technique minutieuse, des plans et volumétries permettant des extensions futures ; livrer des classes à l'avancement, Un bâtiment contemporain contextualisé avec responsabilité écologique.

Catégorie Bâtiment / logement
Numéro de projet4108
Adresse du projet 136 Chemin de la Fontaine de Paris
82600 Verdun-sur-Garonne
Date de candidature03/02/2020

Bâtiment / logement

Détail projet

Typologie de bâtiment : Neuf
Type de bâtiment : Enseignement ou éducation
Année de livraison : 2018
Surface totale du bâtiment en m² : 2200
Coût total en € HT (hors foncier, hors VRD, hors honoraires) : 2900000
Lot bois n°1 concerné : Charpente bois
Volume lot bois n°1 - m³ : 360
Bois Français : oui
Isolations biosourcées (préciser dans le descriptif technique) : oui
Finitions intéreures biosourcées ou géosourcées (préciser dans le descriptif technique) : oui

Structure bois du bâtiment

Structure verticale :

ProduitEssenceProvenances (lieu de croissance du bois)Traitements de préservationMarque et certification produit
Panneau ossature bois

Structure horizontale :

ProduitEssenceProvenances (lieu de croissance du bois)Traitements de préservationMarque et certification produit
Non précisé

Charpente :

ProduitEssenceProvenances (lieu de croissance du bois)Traitements de préservationMarque et certification produit
Caisson de toiture
Charpente bois lamellé-collé

Revêtement bois extérieur

Revêtement minéral :

Produit
Autres

Menuiserie intérieure et extérieure

Menuiserie extérieure :

ProduitEssenceProvenances (lieu de croissance du bois)Marque et certification produitFinition
Menuiserie bois

Isolation des murs

Epaisseur (mm) Isolation intérieure des murs : 45
Epaisseur (mm) Isolation entre-montant des murs : 145

Isolation de la toiture

Epaisseur (mm) Isolation entre-montant de la toiture : 310

Approche environnementale : En s'implantant à la lisère de la ville sur des terres agricoles, il a fallut créer le support d'une biodiversité en appuyant le projet sur un véritable projet de paysage. L'approche constructive qui limite l'usage du béton au strict nécessaire et en recourant à la préfabrication d'un maximum d'ouvrages est un moyen de limiter les nuisances de chantier, et d'affaiblir l'empreinte carbone de la construction. Une étude poussée de l'enveloppe permet d'optimiser les besoins en chauffage. La chaufferie bois s'inscrit dans cette démarche. Finitions biosourcées : plafonds bois, sols en linoléum,

Descriptif technique : Le phasage serré avec livraison anticipée d'une moitié d'école a été rendu possible par le recours à la préfabrication : Murs et toitures sont réalisées en atelier et livrés en caissons à assembler sur site (voir visuels.) Le confort thermique est atteint grâce à une ventilation double flux et une chaufferie Bois à granulés. Chauffage éclairage et ventilation sont hautement maintenable grâce à uen architecture intégrant des réseaux apparents.

Chauffage au Bois : oui
Appareil de chauffage au bois : Chaudière
Données déclaratives

Acteurs du projet

Maître d'ouvrage (1)

Maître d'ouvrage - État ou collectivité (locale et territ)

Commune de Verdun-sur-garonne (82)

Etudes et ingénieries (7)

Maître d'œuvre - Architecte mandataire

ART'UR ARCHITECTES (75)

Maître d’œuvre - Architecte associé

ARKHIDEE (31) *
ARKHIDEA (31)

Bureau d'études acoustique

Cabinet Conseil Vincent Hedont (33)

Bureau d'études structure bois

BUREAU INGENIERIE MODELING (BIM.B) (82)

Bureau d'études thermique

BREHAULT INGENIERIE (46) *

Paysagiste

TROUILLOT HERMEL PAYSAGISTES (33)

Entreprises des lots bois (3)

Charpentier

SA BATUT CHARPENTE (12)

Menuisier

SA BATUT CHARPENTE (12)

Constructeur bois

SA BATUT CHARPENTE (12)




* : L'entreprise n'est plus active
Retour à la liste