Habiter une maison
Habiter une maison

Maison passive complexe, certifier l'incertifiable

67370 TRUCHTERSHEIM - Bas Rhin - Grand Est

BÂTIMENT / LOGEMENT

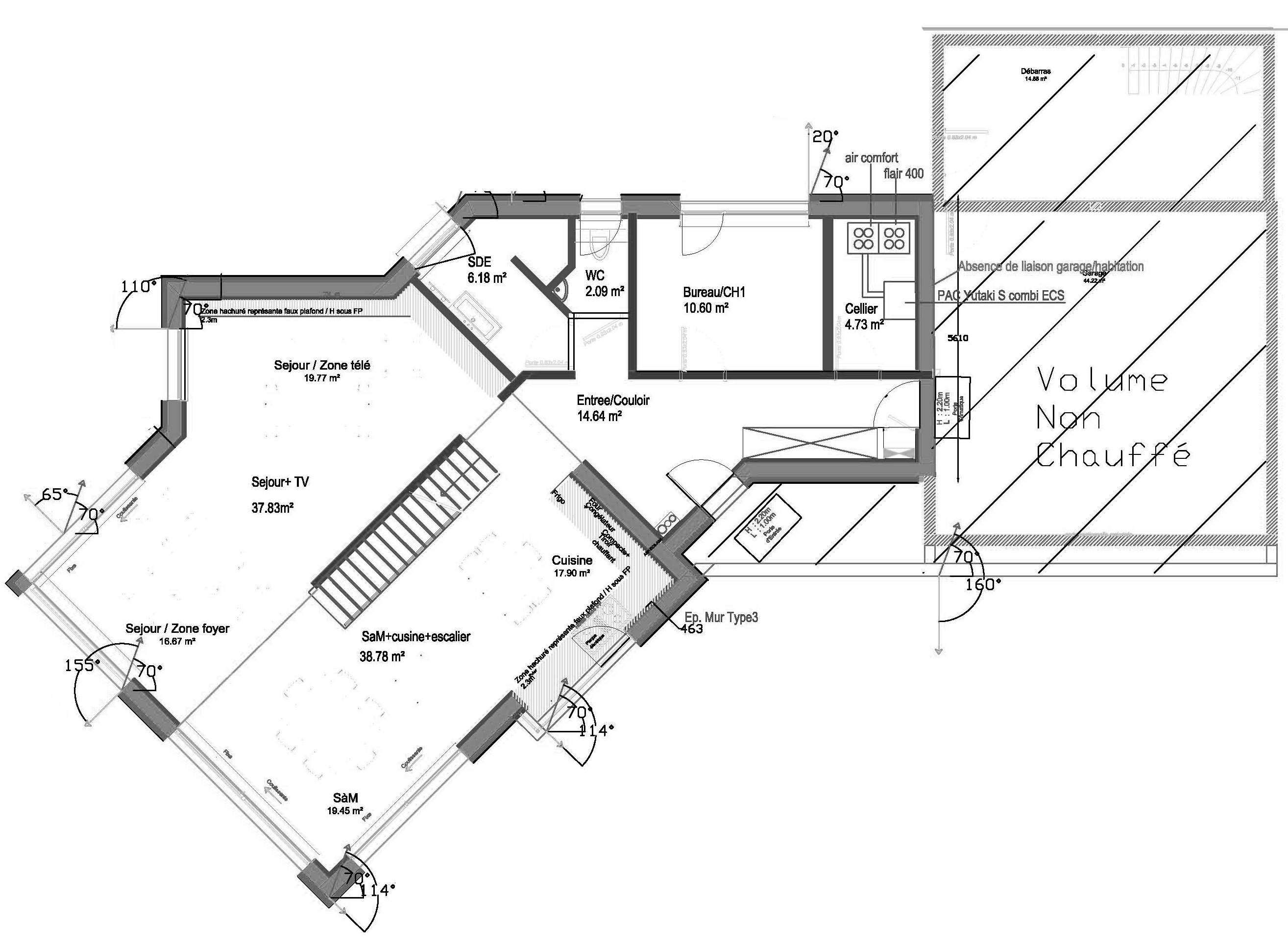
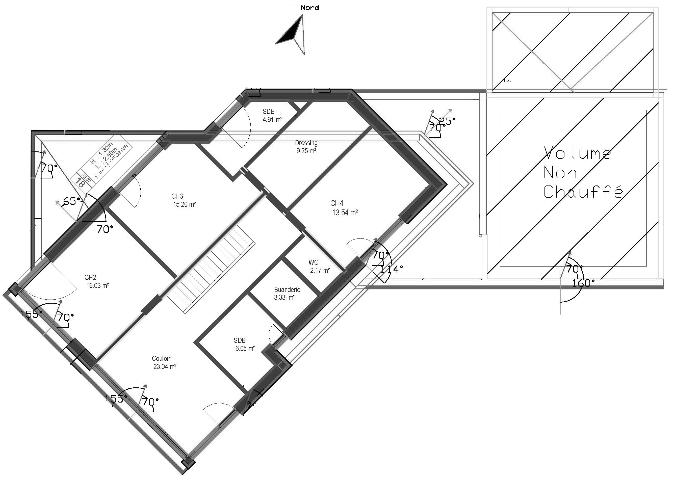
Cette maison au design résolument contemporain, présente des portes à faux et de nombreux décrochés. Après avoir obtenu le permis de construire, le maître d’ouvrage a découvert le standard passif et a cherché un maître d’œuvre capable de construire sa maison en la certifiant Passivhaus Institut. Rendre passive une maison à l'architecture complexe, non compacte, insérée dans un lotissement avec de nombreux ombrages ne fut pas simple. L'objectif fut malgré tout atteint au prix de quelques surcoûts, de savants calculs et une mise en oeuvre irréprochable.

Catégorie Bâtiment / logement
Numéro de projet4102
Date de candidature17/02/2020

Bâtiment / logement

Détail projet

Typologie de bâtiment : Neuf
Type de bâtiment : Logement individuel supérieur à 120 m²
Année de livraison : 2019
Surface totale du bâtiment en m² : 205
Coût total en € HT (hors foncier, hors VRD, hors honoraires) : 700000
Lot bois n°1 concerné : ossature bois
Volume lot bois n°1 - m³ : 40
Coût du lot bois n°1 - € HT : 78000
Lot bois n°2 concerné : Aucun
Bois Français : non
Isolations biosourcées (préciser dans le descriptif technique) : oui
Finitions intéreures biosourcées ou géosourcées (préciser dans le descriptif technique) : oui

Structure bois du bâtiment

Structure verticale :

ProduitEssenceProvenances (lieu de croissance du bois)Traitements de préservationMarque et certification produit
Panneau ossature boisÉpicéa communEuropeTraitement Classe 2 (trempage)

Structure horizontale :

ProduitEssenceProvenances (lieu de croissance du bois)Traitements de préservationMarque et certification produit
Solivage traditionnelÉpicéa communEuropeTraitement Classe 2 (trempage)

Charpente :

ProduitEssenceProvenances (lieu de croissance du bois)Traitements de préservationMarque et certification produit
Charpente traditionnelleÉpicéa communEuropeTraitement Classe 2 (trempage)

Revêtement bois extérieur

Menuiserie intérieure et extérieure

Isolation des murs

Isolation intérieure des murs :

Produit
Laine de bois souple
Epaisseur (mm) Isolation intérieure des murs : 60

Isolation entre-montant des murs :

Produit
Laine de bois souple
Epaisseur (mm) Isolation entre-montant des murs : 240

Isolation extérieure des murs :

Produit
Polystyrène
Epaisseur (mm) Isolation extérieure des murs : 120

Isolation de la toiture

Epaisseur (mm) Isolation entre-montant de la toiture : 240
Epaisseur (mm) Isolation extérieure de la toiture : 260

Approche environnementale : Le principal atout environnemental de cette maison est sa très faible consommation en énergie, puisqu’elle répond au critère du Passivhaus Institut (label obtenu en janvier 2020). La maison n’a besoin que de 11 kWh/m² par an pour être chauffée. La maison est principalement isolée en laine de bois (sauf support de crépis extérieur en PSE et support d’étanchéité en PU)

Descriptif technique : Mur maison : ossature bois Maison certifiée Passivhaus Institut Chauffage/rafraichissement/ventilation : système qui associe un échangeur hydraulique avec la VMC double flux (rendement de 89 %) et une pompe à chaleur air/eau de 4,3 kW. l’installation est composée de deux appareils distincts pour produire à la fois l’eau chaude sanitaire, l’appoint de chauffage sur l’air (2,8 kW) ou le refroidissement sur l’air (1,8 kW). PEFC (Gestion forestière durable) CTB P (Produits de traitement) Marquage CE

Chauffage au Bois : non
Certifications, labels et marques bâtiment : Passivhaus
Données déclaratives

Acteurs du projet

Maître d'ouvrage (1)

Maître d'ouvrage - Particuliers

particulier (x)

Etudes et ingénieries (1)

Maître d'œuvre - Architecte mandataire

Maisons Voegelé (67)

Entreprises des lots bois (1)

Constructeur bois

BOIS2BOO (67)




* : L'entreprise n'est plus active
Retour à la liste