Habiter une maison
Habiter une maison

Coup double

35250 Saint-Sulpice-La-Forêt - Ille et Vilaine - Bretagne

BÂTIMENT / LOGEMENT

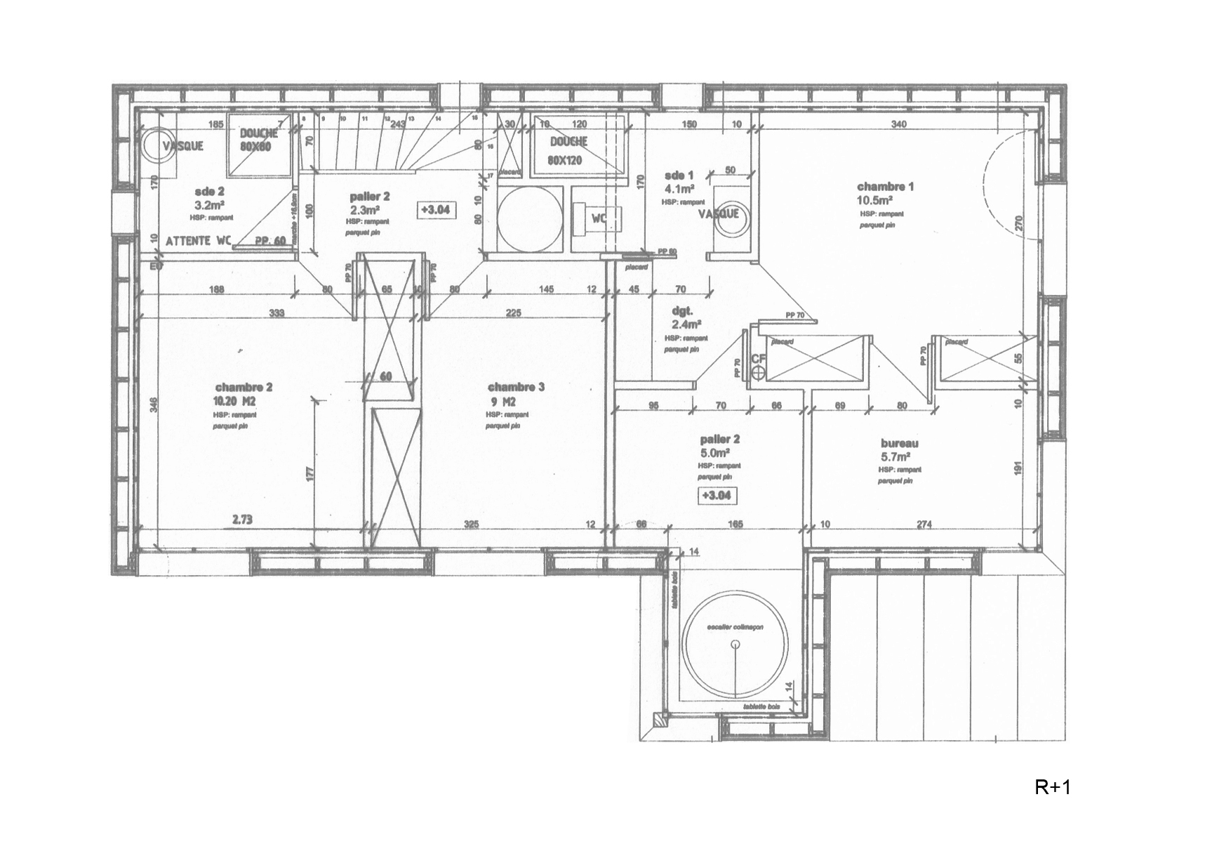
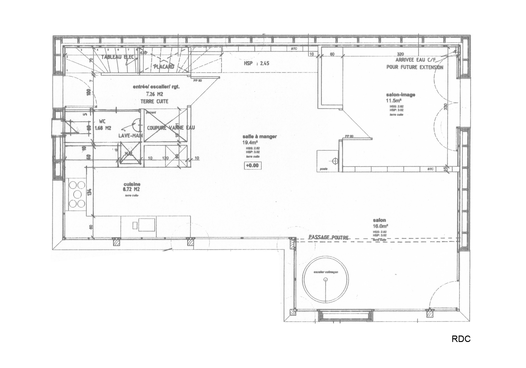
Le rez-de-chaussée s'articule selon un axe ouest/est. L'entrée dans le volume de la maison se fait à l'ouest. Par là, on accède à la pièce de vie centrale dans laquelle se tient une grande table capable de recevoir un nombre important de convives. A l'ouest, se situe la cuisine, largement ensoleillée ; à l'est, un petit salon, ouvert sur le jardin. Au nord/est un deuxième salon sert tour à tour de chambre d'amis et de salle de projection vidéo. Deux escaliers permettent d'accéder à l'étage, divisé en deux volumes non communicants. Cette configuration distingue l'espace adulte.

Catégorie Bâtiment / logement
Numéro de projet4026
Date de candidature28/01/2020

Bâtiment / logement

Détail projet

Typologie de bâtiment : Neuf
Type de bâtiment : Logement individuel supérieur à 120 m²
Année de livraison : 2017
Surface totale du bâtiment en m² : 120
Coût total en € HT (hors foncier, hors VRD, hors honoraires) : 193000
Lot bois n°1 concerné : Charpente bois
Coût du lot bois n°1 - € HT : 32500
Lot bois n°2 concerné : Bardage bois
Volume lot bois n°2 - m³ : 4.87
Coût du lot bois n°2 - € HT : 14021
Bois Français : oui
Isolations biosourcées (préciser dans le descriptif technique) : oui
Finitions intéreures biosourcées ou géosourcées (préciser dans le descriptif technique) : oui

Structure bois du bâtiment

Structure verticale :

ProduitEssenceProvenances (lieu de croissance du bois)Traitements de préservationMarque et certification produit
Panneau ossature boisDouglasFranceAucun traitement

Structure horizontale :

ProduitEssenceProvenances (lieu de croissance du bois)Traitements de préservationMarque et certification produit
Solivage traditionnelÉpicéa communEuropeAucun traitement

Charpente :

ProduitEssenceProvenances (lieu de croissance du bois)Traitements de préservationMarque et certification produit
Charpente industrielleÉpicéa communEuropeJe n'ai pas l'information

Revêtement bois extérieur

Revêtement bois ou dérivés :

ProduitEssenceProvenances (lieu de croissance du bois)Marque et certification produitFinitionTraitements de préservation
Lame bois massifChâtaignierBretagneAucun traitement

Menuiserie intérieure et extérieure

Menuiserie extérieure :

ProduitEssenceProvenances (lieu de croissance du bois)Marque et certification produitFinition
Menuiserie mixte
Menuiserie boisPin sylvestreEuropeLasure

Isolation des murs

Isolation intérieure des murs :

Produit
Isolants issus recyclage ou ré-emploi
Epaisseur (mm) Isolation intérieure des murs : 210

Isolation de la toiture

Epaisseur (mm) Isolation intérieure de la toiture : 300

Approche environnementale : Le projet de maison individuelle s'inscrit dans un lotissement situé aux abords d'un jardin familial dans un village de la périphérie rennaise. Le projet se développe selon deux axes : le désir de vivre dans un espace bioclimatique, quasi autonome et écologique, soucieux de l'environnement et du respect de l'autre dans ses dimensions sociales et politiques (économie de la construction, système de production des matériaux...), et celui d'accueillir, tout en préservant des espaces retranchés, intimes. La maison est largement ouverte sur sa façade sud afin de profiter des apports solaires.

Descriptif technique : La construction est en ossature bois douglas, isolée en ouate de cellulose, bardée en lames de châtaignier brut de pays. Les parements intérieurs sont traités en BA 13, volige pin et OSB. Les menuiseries extérieures sont mixtes. La couverture est en zinc naturel non traité. La maison est équipé d'un insert muni de deux gaines d'air chaud, une par volume de l'étage. L'eau chaude sanitaire est produite par un cesi. Des stores permettent de protéger la maison des rayons du soleil. Un sol de terre cuite et des cloisons en BTC procureront au volume habité chaleur en hiver et fraîcheur en été. PEFC (Gestion forestière durable) NF Maison Individuelle

Chauffage au Bois : oui
Certifications, labels et marques bâtiment : Aucun
Données déclaratives

Acteurs du projet

Maître d'ouvrage (1)

Maître d'ouvrage - Particuliers

particulier (x)

Etudes et ingénieries (2)

Maître d'œuvre - Architecte mandataire

BIO SEVE HABITAT (Séverine Duchemin) (35)

Bureau d'études thermique

GREMMSOL-TIKAÉ (35)

Entreprises des lots bois (3)

Charpentier

CONSTRUCTIONS BOIS D'ILLE ET RANCE (35) *

Menuisier

SAB OUEST (35)
MERIEAU MENUISERIE (35)




* : L'entreprise n'est plus active
Retour à la liste