Travailler – accueillir

Atelier de maintenance de la montagne Ardéchoise

07590 Saint-Étienne-de-Lugdarès - Ardèche - Auvergne-Rhône-Alpes

BÂTIMENT / LOGEMENT

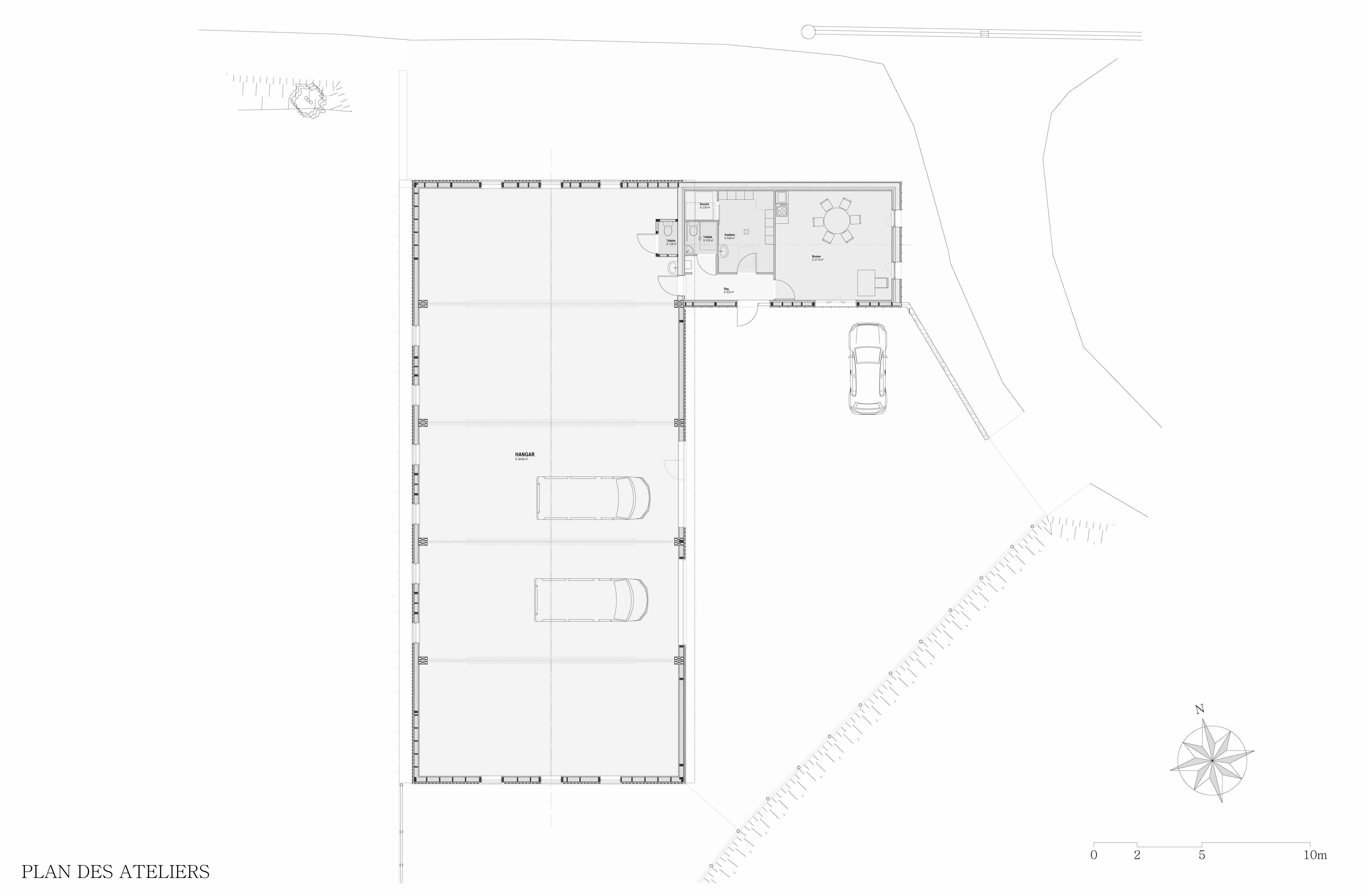
L'atelier est construit à l’entrée du bourg de Saint-Etienne-de-Lugdarès situé dans l’étroite vallée du Mas Méjean. Le projet répond à trois attentes particulières ambitionnées avec la maîtrise d’ouvrage : La première étant la création d’une surface couverte de plus 360 m² sur une parcelle étroite triangulaire ; la seconde est l’intégration d’un bâtiment industriel entre zones pavillonnaire diffuse et entrée de bourg ; et enfin la construction d’un bâtiment peu énergivore.

Catégorie Bâtiment / logement
Numéro de projet4014
Adresse du projet 07590 Saint-Étienne-de-Lugdarès
Date de candidature27/01/2020

Bâtiment / logement

Détail projet

Typologie de bâtiment : Neuf
Type de bâtiment : Lieu d'entreprise
Année de livraison : 2019
Surface totale du bâtiment en m² : 368.10
Coût total en € HT (hors foncier, hors VRD, hors honoraires) : 358989.61
Lot bois n°1 concerné : Charpente bois
Volume lot bois n°1 - m³ : 29.515
Lot bois n°2 concerné : ossature bois
Volume lot bois n°2 - m³ : 10.278
Bois Français : oui
Isolations biosourcées (préciser dans le descriptif technique) : non
Finitions intéreures biosourcées ou géosourcées (préciser dans le descriptif technique) : non

Structure bois du bâtiment

Structure verticale :

ProduitEssenceProvenances (lieu de croissance du bois)Traitements de préservationMarque et certification produit
Panneau ossature bois

Structure horizontale :

ProduitEssenceProvenances (lieu de croissance du bois)Traitements de préservationMarque et certification produit
Plancher béton

Charpente :

ProduitEssenceProvenances (lieu de croissance du bois)Traitements de préservationMarque et certification produit
Charpente bois lamellé-colléSapin pectinéFranceTraitement Classe 2 (trempage)

Revêtement bois extérieur

Revêtement bois ou dérivés :

ProduitEssenceProvenances (lieu de croissance du bois)Marque et certification produitFinitionTraitements de préservation
Lame bois massifDouglasFranceAucune finitionTraitement Classe 2 (trempage)

Autre revêtement métallique :

Produit
Zinc

Menuiserie intérieure et extérieure

Isolation des murs

Isolation intérieure des murs :

Produit
Laine de roche
Epaisseur (mm) Isolation entre-montant des murs : 175

Isolation de la toiture

Epaisseur (mm) Isolation intérieure de la toiture : 300

Approche environnementale : Les deux volumes accolés aux gabarits distincts créent un échelon de dimensions pour s’intégrer aux constructions voisines. La continuité du paysage bâti et végétal est préservée. Le long de la rue principale, les façades de l’atelier restent en proportion des gabarits des constructions de la rue. Sur l’étroite parcelle triangulaire, le projet s’organise autour d’une cour centrale pensée pour la rotation des camions. L’éclairage naturel a été favorisé par la création d’ouverture translucide sur le pourtour du garage ainsi le bâtiment profite d’une riche lumière tout au long de la journée.

Descriptif technique : La construction en ossature bois répond aux objectifs énergétiques de la programmation à savoir minimiser les surfaces construites tout en favorisant une isolation thermique performante. L’esthétique de l’atelier se veut sobre exprimée par deux volumes à la matérialité distincte. Le garage est habillé d’un bardage bois à faux claire-voie vertical interrompu par un bardage horizontal resserré sous les appuis des baies. Le bureau s'apparente aux constructions voisines. Toutefois il se distingue par ses lignes épurées, le bardage zinc revêtant façades et couverture.

Chauffage au Bois : non
Certifications, labels et marques bâtiment : Bois de France
Données déclaratives

Acteurs du projet

Maître d'ouvrage (1)

Maître d'ouvrage - État ou collectivité (locale et territ)

COMMUNE DE SAINT ETIENNE DE LUGDARES (07)

Etudes et ingénieries (3)

Maître d'œuvre - Architecte mandataire

PIERRE CONDRE (48)

Bureau d'études structure bois

ROCHARD ET ASSOCIES (43)

Economiste

BUDECO (43) *

Entreprises des lots bois (1)

Charpentier

GUILHOT CONSTRUCTION BOIS (43)




* : L'entreprise n'est plus active
Retour à la liste