Habiter ensemble

Lieu Commun

67200 Strasbourg - Bas Rhin - Grand Est

BÂTIMENT / LOGEMENT

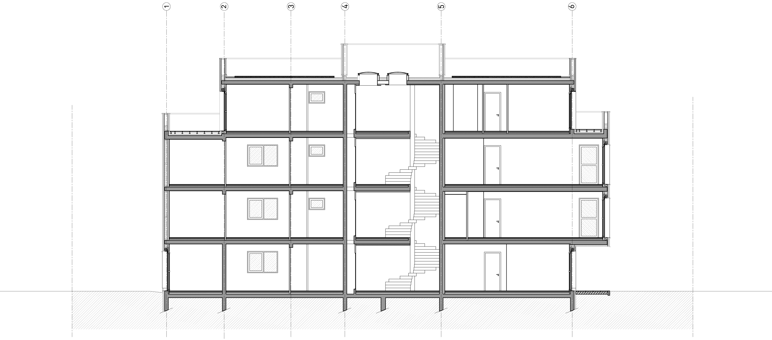
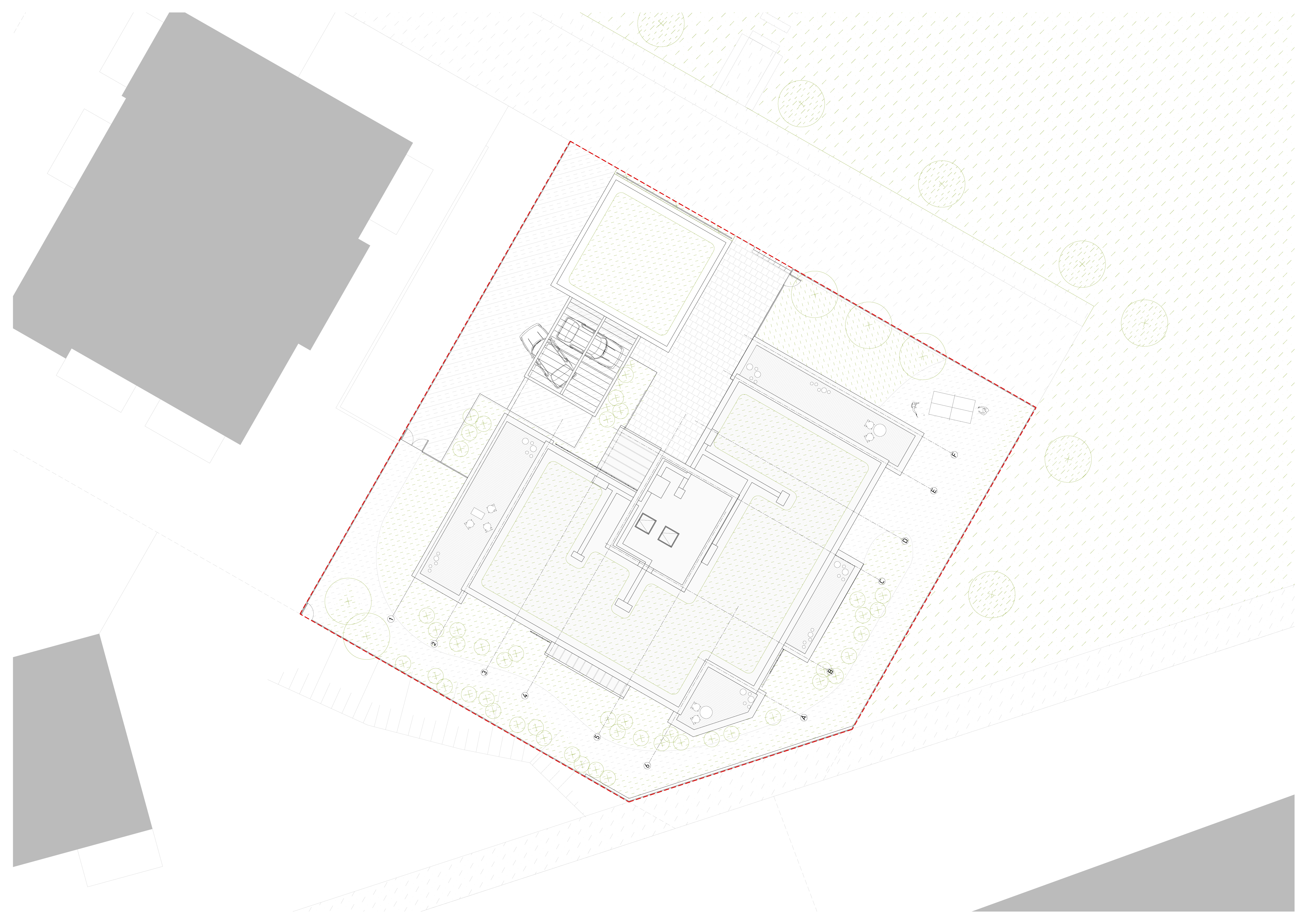
Construction compacte de 15 logements locatifs sociaux, LieuCommun est la première opération participative française dans le logement social. Le rez-de-chaussée propose des espaces communs généreux (84 m²) conçus avec les locataires : salle commune, chambre d'amis et buanderie partagée. En R+3, chaque niveau dispose d'un "salon d'étage" de 25 m² clos et éclairé naturellement, lieu de la vie de voisinage au quotidien. LieuCommun est lauréat du trophée "Opération Remarquable" 2018 des Coop'HLM.

Catégorie Bâtiment / logement
Numéro de projet4002
Adresse du projet 16, impasse Quinta Florentina
67200 Strasbourg
Date de candidature23/01/2020

Bâtiment / logement

Détail projet

Typologie de bâtiment : Neuf
Type de bâtiment : Logement collectif
Année de livraison : 2018
Surface totale du bâtiment en m² : 1177
Coût total en € HT (hors foncier, hors VRD, hors honoraires) : 1392000
Coût du lot bois n°1 - € HT : 185000
Bois Français : non
Isolations biosourcées (préciser dans le descriptif technique) : oui
Finitions intéreures biosourcées ou géosourcées (préciser dans le descriptif technique) : oui

Structure bois du bâtiment

Structure verticale :

ProduitEssenceProvenances (lieu de croissance du bois)Traitements de préservationMarque et certification produit
Panneau ossature boisTempéréAutresJe n'ai pas l'information

Structure horizontale :

ProduitEssenceProvenances (lieu de croissance du bois)Traitements de préservationMarque et certification produit
Plancher bétonTempéréAucuneJe n'ai pas l'information

Charpente :

ProduitEssenceProvenances (lieu de croissance du bois)Traitements de préservationMarque et certification produit
Charpente traditionnelleTempéréAutresJe n'ai pas l'information

Revêtement bois extérieur

Revêtement bois ou dérivés :

ProduitEssenceProvenances (lieu de croissance du bois)Marque et certification produitFinitionTraitements de préservation
Lame bois massifPin sylvestreAutrespré-griséTraitement Classe 3b (autoclave)

Revêtement minéral :

Produit
Enduit chaux

Menuiserie intérieure et extérieure

Isolation des murs

Isolation entre-montant des murs :

Produit
Fibre de bois (Panneaux)
Epaisseur (mm) Isolation entre-montant des murs : 160

Isolation extérieure des murs :

Produit
Fibre de bois (Panneaux)
Epaisseur (mm) Isolation extérieure des murs : 60

Isolation de la toiture

Approche environnementale : La conception est bioclimatique : logements traversants, pièces humides en façades Nord, occultations orientables, jeux de masques solaires, etc. Les planchers béton apportent l'inertie et les façades en murs à ossature bois favorisent le confort hygrothermique. Les toitures sont végétalisées et les façades en murs à ossature bois enduites disposent de support de végétalisation au Sud (évapotranspiration). Les eaux pluviales sont collectées pour l'arrosage et l'alimentation de la buanderie collective. Avec une consommation réglementaire à RT2012-30%, l'opération est labellisée Effinergie+.

Descriptif technique : PEFC (Gestion forestière durable) FSC (Gestion forestière responsable)

Chauffage au Bois : non
Certifications, labels et marques bâtiment : Effinergie
Données déclaratives

Acteurs du projet

Maître d'ouvrage (1)

Maître d'ouvrage - Bailleur social public

Habitat de l'Ill (67)

Etudes et ingénieries (4)

Maître d'œuvre - Architecte mandataire

ArchiEthic (94) *

Maître d’œuvre - Architecte associé

NATURA CONCEPT (67)

Bureau d'études structure bois

Gettec (67) *

Bureau d'études thermique

IMAEE (67)

Entreprises des lots bois (1)

Charpentier

Piasentin (67)




* : L'entreprise n'est plus active
Retour à la liste