Apprendre – se divertir
Apprendre – se divertir

Groupe scolaire Simone Veil

50400 GRANVILLE - Manche - Normandie

BÂTIMENT / LOGEMENT

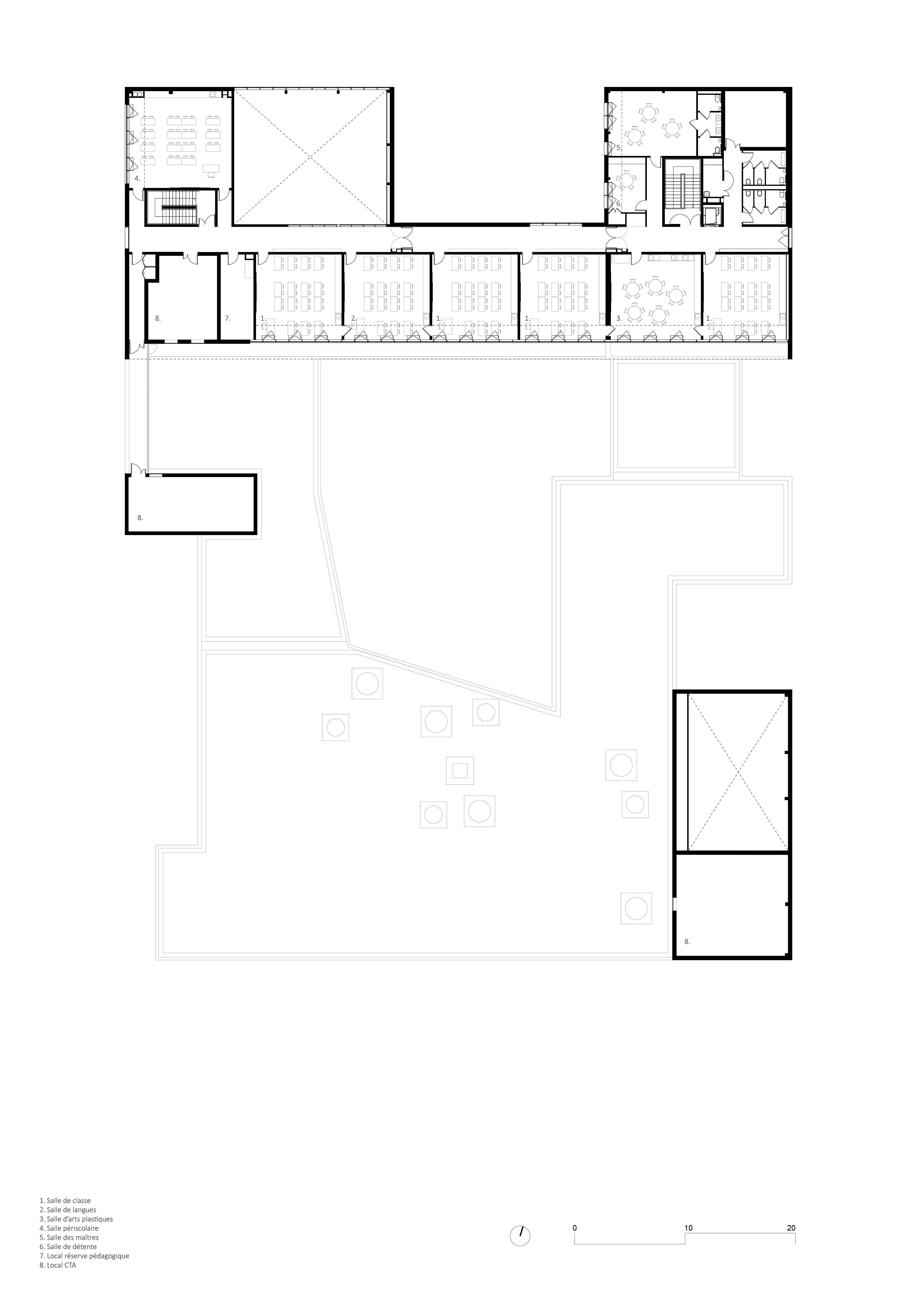
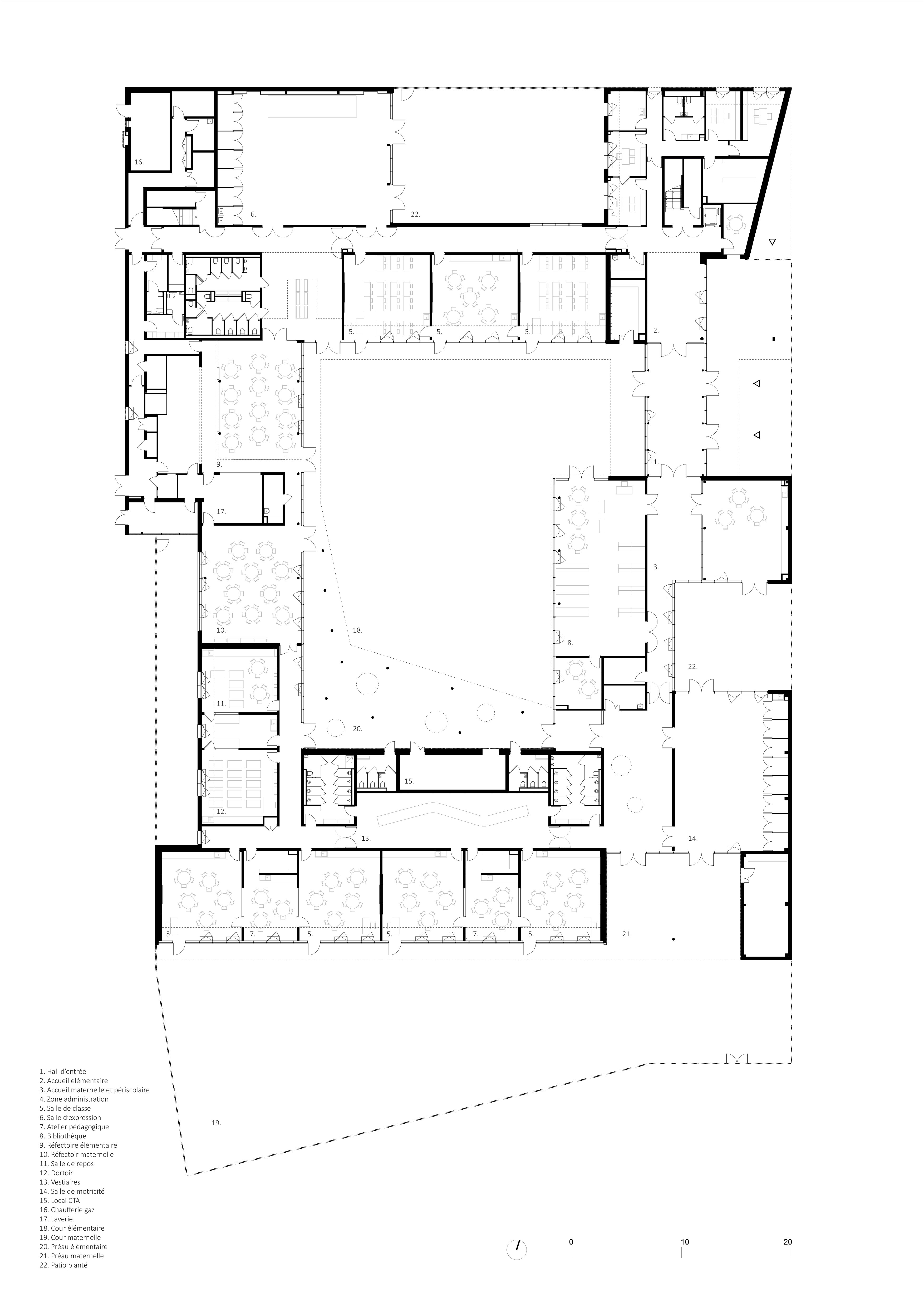
Nous avons imaginé un groupe scolaire plutôt introverti dont l’architecture se veut protectrice et rassurante. Les lignes des volumes construits sont d’une grande simplicité formelle et la silhouette générale du bâtiment, plutôt épurée, utilise un registre de volumes en creux ou en excroissance qui s’appuie sur des juxtapositions de masses pleines et transparentes, permettant de faire rentrer la lumière de manière généreuse au cœur des espaces. La composition architecturale protège les enfants sans les isoler du quartier. Elle structure l’espace public en révélant une coulée verte et un nouveau parvis urbain. Ce projet s’inscrit dans une démarche ou l’association ville – nature – usage est simple et intuitive.

Catégorie Bâtiment / logement
Numéro de projet3991
Adresse du projet 92 RUE PAUL DE GIBON
50400 GRANVILLE
Date de candidature22/01/2020

Bâtiment / logement

Détail projet

Typologie de bâtiment : Neuf
Type de bâtiment : Enseignement ou éducation
Année de livraison : 2019
Surface totale du bâtiment en m² : 3458.95
Coût total en € HT (hors foncier, hors VRD, hors honoraires) : 5554195
Lot bois n°1 concerné : Bardage bois
Volume lot bois n°1 - m³ : 55
Coût du lot bois n°1 - € HT : 308188.33
Lot bois n°2 concerné : ossature bois
Volume lot bois n°2 - m³ : 64
Coût du lot bois n°2 - € HT : 216608.34
Bois Français : oui
Isolations biosourcées (préciser dans le descriptif technique) : oui
Finitions intéreures biosourcées ou géosourcées (préciser dans le descriptif technique) : oui

Structure bois du bâtiment

Structure verticale :

ProduitEssenceProvenances (lieu de croissance du bois)Traitements de préservationMarque et certification produit
Panneau ossature boisEuropeTraitement Classe 2 (trempage)

Structure horizontale :

ProduitEssenceProvenances (lieu de croissance du bois)Traitements de préservationMarque et certification produit
Plancher béton

Charpente :

ProduitEssenceProvenances (lieu de croissance du bois)Traitements de préservationMarque et certification produit
Charpente bois lamellé-colléÉpicéa communEuropeTraitement Classe 2 (trempage)

Revêtement bois extérieur

Revêtement bois ou dérivés :

ProduitEssenceProvenances (lieu de croissance du bois)Marque et certification produitFinitionTraitements de préservation
Lame bois massifChâtaignierNormandiepré-griséTraitement Classe 3b (autoclave)

Menuiserie intérieure et extérieure

Isolation des murs

Isolation intérieure des murs :

Produit
Laine de verre
Epaisseur (mm) Isolation intérieure des murs : 45

Isolation entre-montant des murs :

Produit
Laine de verre
Epaisseur (mm) Isolation entre-montant des murs : 160

Isolation extérieure des murs :

Produit
Laine de verre
Epaisseur (mm) Isolation extérieure des murs : 60

Isolation de la toiture

Epaisseur (mm) Isolation extérieure de la toiture : 240

Approche environnementale : Souhaitant aller plus loin que le cadre réglementaire de la RT2012, ce projet a fait l’objet d’une certification HQE Bâtiments Tertiaires de niveau Excellent en Construction Neuve, agrémentée d’une labellisation Effinergie+. Avec 7 cibles visées au niveau Très Performant (N°1/3/4/8/9/11/13), une réflexion globale a été menée tout au long du projet pour composer entre l’intégration du bâtiment à son environnement, son confort visuel, thermique et acoustique, tout en garantissant son accessibilité, sa pérennité, ainsi que la qualité sanitaire des espaces.

Descriptif technique : Le système constructif du bâtiment est simple et issu d'une recherche technique visant à obtenir un confort d'usage optimal. Ainsi, le squelette du bâtiment est construit en béton afin de profiter d'une inertie suffisante pour le chauffage et le rafraîchissement des volumes selon les périodes. L'enveloppe quand à elle, est construite en mur à ossature bois. Cette peau isolante est recouverte par un manteau de bardage sur l'ensemble des façades, et percée par de grands vitrages permettant de bénéficier des apports solaires en hiver. PEFC (Gestion forestière durable) FSC (Gestion forestière responsable) CTB A Traitement des bois en oeuvre CTB P (Produits de traitement) NF Bâtiments Tertiaires Démarche HQEe

Chauffage au Bois : non
Certifications, labels et marques bâtiment : Effinergie
Données déclaratives

Acteurs du projet

Maître d'ouvrage (1)

Maître d'ouvrage - État ou collectivité (locale et territ)

Ville de Granville (50)

Etudes et ingénieries (10)

Maître d'œuvre - Architecte mandataire

DDL ARCHITECTES (56)

Maître d’œuvre - Architecte associé

DESALEUX SOARES ARCHITECTES (35)

Bureau d'études acoustique

Alhyange Acoustique (44)

Bureau d'études structure bois

OUEST STRUCTURES (35)

Bureau d'études environnement

Emenda (44)
Gaudin Ingénierie (44)

Bureau d'études thermique

Emenda (44)
Gaudin Ingénierie (44)

Economiste

CDLP (35)

Paysagiste

LA PLAGE ARCHITECTURE ET PAYSAGE (35)

Entreprises des lots bois (2)

Charpentier

Cruard Charpente Et Construction Bois (53)

Menuisier

Gouelle Menuiserie (50)

Fournisseurs du bois (1)

Industriel

RAHUELBOIS (35)




* : L'entreprise n'est plus active
Retour à la liste