Apprendre – se divertir, Travailler – accueillirApprendre – se divertir, Travailler – accueillir
Apprendre – se divertir, Travailler – accueillir

La Maison des Personnels et des formations de l'Université de Strasbourg

67000 Strasbourg - Bas Rhin - Grand Est

BÂTIMENT / LOGEMENT

La nouvelle Maison du Personnel et des Formations de l’Université de Strasbourg dialogue avec plusieurs époques et traditions constructives en répondant aux besoins fonctionnels de façon rationnelle et efficace. Ainsi, dans son architecture et dans son fonctionnement, elle diffuse l’image d’un bâtiment flexible qui répond de façon contemporaine au contexte urbain et patrimonial, tout en offrant un repère exemplaire dans sa démarche environnementale. Notons aussi un objectif de réduction des coûts d’entretien et de maintenance.

Catégorie Bâtiment / logement
Numéro de projet3983
Adresse du projet Rue Pierre Montet
67000 Strasbourg
Date de candidature21/01/2020

Bâtiment / logement

Détail projet

Typologie de bâtiment : Neuf
Type de bâtiment : Enseignement ou éducation,Service institutionnel et public
Année de livraison : 2019
Surface totale du bâtiment en m² : 1435
Coût total en € HT (hors foncier, hors VRD, hors honoraires) : 3350000
Lot bois n°1 concerné : Autre lot bois
Volume lot bois n°1 - m³ : 240
Coût du lot bois n°1 - € HT : 470000
Lot bois n°2 concerné : Menuiserie extérieure bois
Coût du lot bois n°2 - € HT : 220318
Bois Français : oui
Isolations biosourcées (préciser dans le descriptif technique) : oui
Finitions intéreures biosourcées ou géosourcées (préciser dans le descriptif technique) : oui

Structure bois du bâtiment

Structure verticale :

ProduitEssenceProvenances (lieu de croissance du bois)Traitements de préservationMarque et certification produit
Poteau poutreEuropeTraitement Classe 2 (trempage)
Panneau ossature bois

Structure horizontale :

ProduitEssenceProvenances (lieu de croissance du bois)Traitements de préservationMarque et certification produit
Panneau de bois massif (CLT collé ou CLT cloué)Épicéa communEurope
Plancher béton

Charpente :

ProduitEssenceProvenances (lieu de croissance du bois)Traitements de préservationMarque et certification produit
Charpente bois lamellé-colléÉpicéa communEuropeTraitement Classe 2 (trempage)
Panneau massifÉpicéa communEurope

Revêtement bois extérieur

Revêtement bois ou dérivés :

ProduitEssenceProvenances (lieu de croissance du bois)Marque et certification produitFinitionTraitements de préservation
Bardeau boisMélèzeEuropeSaturateur

Revêtement minéral :

Produit
Brique

Menuiserie intérieure et extérieure

Menuiserie extérieure :

ProduitEssenceProvenances (lieu de croissance du bois)Marque et certification produitFinition
Menuiserie mixtePin sylvestreEuropeLasure

Isolation des murs

Isolation intérieure des murs :

Produit
Laine de bois souple
Epaisseur (mm) Isolation intérieure des murs : 40

Isolation entre-montant des murs :

Produit
Epaisseur (mm) Isolation entre-montant des murs : 240

Isolation extérieure des murs :

Produit
Laine de roche
Epaisseur (mm) Isolation extérieure des murs : 40

Isolation de la toiture

Epaisseur (mm) Isolation extérieure de la toiture : 200

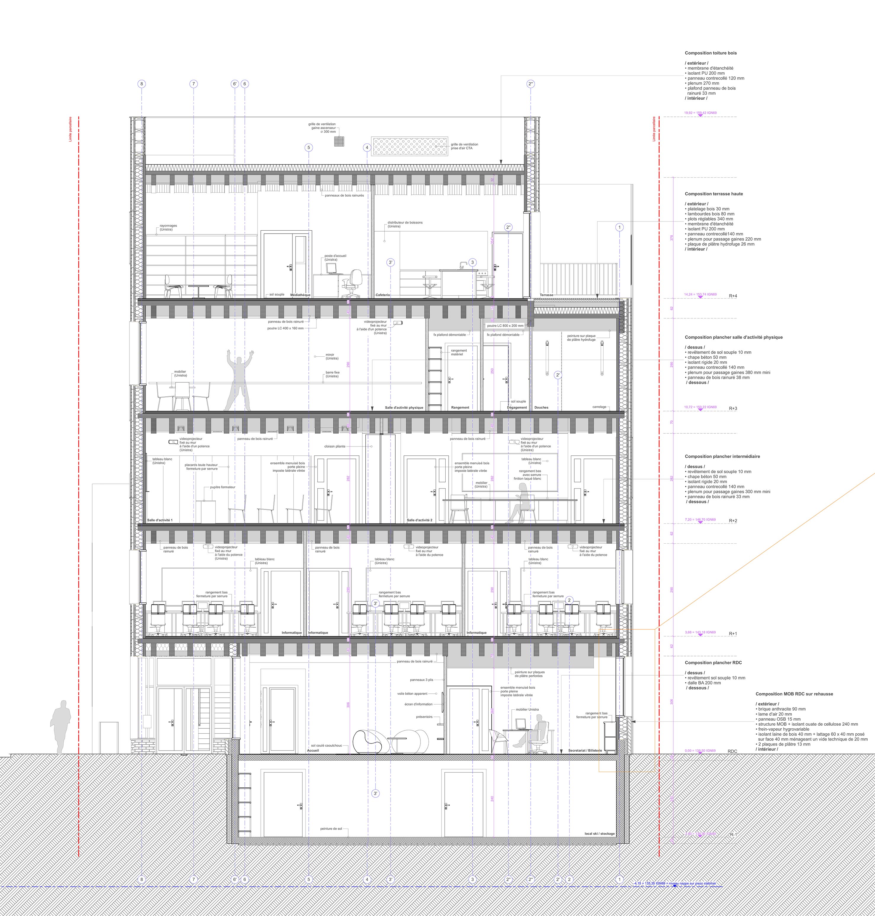
Approche environnementale : Notre démarche s’est inscrite dans une volonté de maximiser le recours à des matériaux, des techniques et des produits issus de filières bio-sourcées (structure, menuiseries, habillage intérieur et extérieur, isolants) issus du matériau bois. Le bâtiment renferme des mises en oeuvre et des équipements très performants visant à réduire les besoins à la source (traitement de l'étanchéité à l'air, ventilation double flux haut rendement, sondes de détection CO2, distribution de l’eau ultra-directe, bouclage ultra-isolé, éclairage LED, triple vitrage...).

Descriptif technique : La structure du projet est réalisée en poteaux-poutres bois lamellé-collé et planchers CLT. La façade en ossature bois non porteuse fonctionne comme un «manteau» épais continu dont l’épaisseur totale d’isolant atteint 32 cm. Son bardage est réalisé avec des tavaillons Mélèze, ces petites tuiles de bois pré-grisé reprennent le principe des tavaillons qu’on retrouve encore çà et là dans le centre historique de Strasbourg. L’isolation quant à elle est réalisée en fibre de bois et ouate de cellulose insufflée. Les habillages de plafond intérieurs et les menuiseries sont réalisées en mélèze. PEFC (Gestion forestière durable)

Chauffage au Bois : non
Données déclaratives

Acteurs du projet

Maître d'ouvrage (1)

Maître d'ouvrage - Services publics

Université de Strasbourg (67)

Etudes et ingénieries (6)

Maître d'œuvre - Architecte mandataire

Ajeance (67)

Bureau d'études acoustique

SCENE ACOUSTIQUE (67)

Bureau d'études structure bois

ACT BOIS (90)

Bureau d'études thermique

THERMI-D (68)
ISANTROPIE (88) *

Economiste

LES ECONOMISTES (67)

Entreprises des lots bois (3)

Charpentier

CHARPENTES MARTIN FILS (67)

Menuisier

MENUISERIE JUNG (67)

Autre lot de la construction (en lien avec le bois)

HUNSINGER SAS (67)




* : L'entreprise n'est plus active
Retour à la liste