Aménager
Aménager

LES MAISONS DES CINQ CONTINENTS : JAPON

51430 BEZANNES - Marne - Grand Est

AMÉNAGEMENT BOIS

Aménagement intérieur

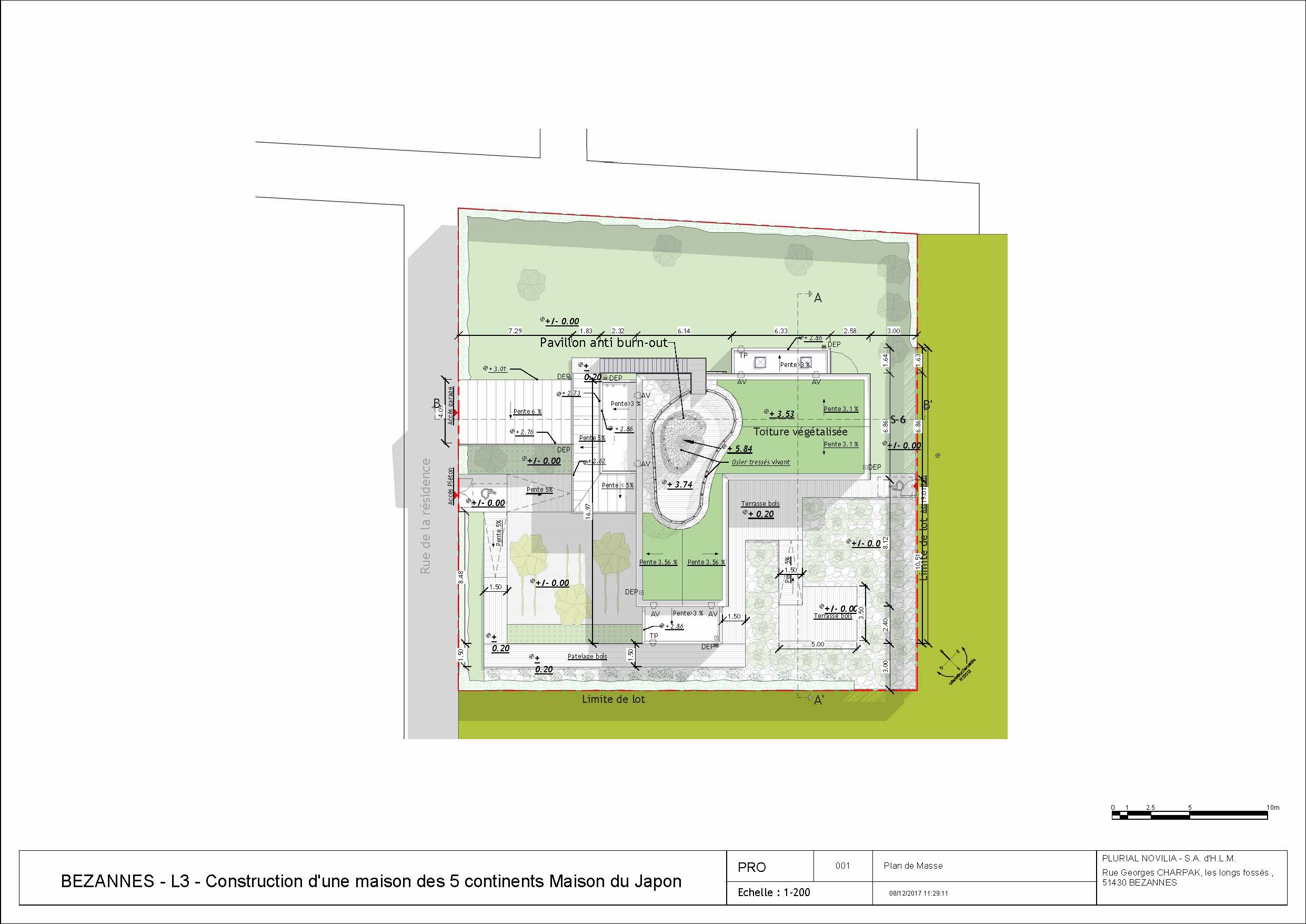
Les maisons des 5 continents réunissent les visions de 5 Architectes, originaires de chaque continent, autour d'une réflexion élargie sur la manière dont cultures et traditions viennent enrichir notre habitat. La Maison de l'Asie, d'inspiration japonaise, a été conçue et réalisée par S'PACE architectes associés. La maison du Japon ne peut être qu'harmonie. Harmonie avec l'Univers par sa relation au soleil, à la pluie au vent. La maison du Japon utilise la richesse des opposés : la lumière et l'ombre, le construit et le naturel, la rusticité et le high-tech.

Catégorie aménagement bois, aménagement intérieur
Numéro de projet3976
Adresse du projet RUE CHARPAK
51430 BEZANNES
Date de candidature21/01/2020

aménagement bois

typologie : Logement individuel supérieur à 120 m²
Coût total en € HT : 435734

aménagement intérieur

Année de réalisation : 2019
Coût total Aménagement Intérieur en € HT : 101280
Coût lots bois en € HT : 13046
Volume bois m³ : 28
Surface aménagée en m² : 140

Liste des produits :

ProduitEssenceProvenances (lieu de croissance du bois)Marque et certification produitFinition
ParquetChêneFrance
InstallationÉpicéa communAuvergne-Rhône-AlpesLasure
Bois Français : non

Approche environnementale : Tout ici participe au respect mutuel de l'homme et de son environnement. Un paradigme partagé, celui de s'orienter vers la préservation des ressources naturelles, pour le choix des matériaux, de la gestion de l'eau et de l'énergie, aller au-delà des nouvelles normes et règles avec ambition et intention ».Les principaux matériaux biosourcés et restant apparents utilisés pour l'aménagement intérieur sont le bois, poutres en lamellé collé, plafonds en CLT, les menuiseries extérieures, le cisal et le parquet massif en revêtements de sol.

Descriptif technique de l'aménagement : La Maison de l'Asie, œuvre innovante par essence (l'Asie à Bezannes !), stimulante pour la créativité, puise son inspiration dans la construction domestique individuelle du Japon. Réalisée en bois (bois européens toutefois), matériau affiché, à l'extérieur et à l'intérieur, comme un révélateur de la performance technique, économique, énergétique, et environnementale de sa construction, elle offre grâce au bois, une grande qualité architecturale, une ambiance intérieure dépaysante, des espaces extérieurs soignés, traités comme autant de pièces de vie supplémentaires (systématique au Japon).

Données déclaratives

Acteurs du projet

Maître d'ouvrage (1)

Maître d'ouvrage - Bailleur social privé

PLURIAL NOVILIA (51)

Etudes et ingénieries (4)

Maître d'œuvre - Architecte mandataire

S'PACE ARCHITECTURE (94)

Maître d’œuvre - Architecte associé

DIANE JOUVET (51)

Bureau d'études structure bois

Le Bâtiment Associé (51)

Bureau d'études thermique

BUREAU D'ETUDES FLUIDES ETNR (51)

Entreprises des lots bois (3)

Charpentier

Le Bâtiment Associé (51)

Menuisier

LEMPEREUR (08)

Constructeur bois

Le Bâtiment Associé (51)

Fournisseurs du bois (6)

Scierie

Binderholz (DE)
Piveteau Bois (85)
SCIERIE CHAUVIN (39)

Industriel

Binderholz (DE)
EURO LAMELLE (74) *
Piveteau Bois (85)




* : L'entreprise n'est plus active
Retour à la liste