Habiter une maison
Habiter une maison

Maison individuelle à Hangenbieten

67980 Hangenbieten - Bas Rhin - Grand Est

BÂTIMENT / LOGEMENT

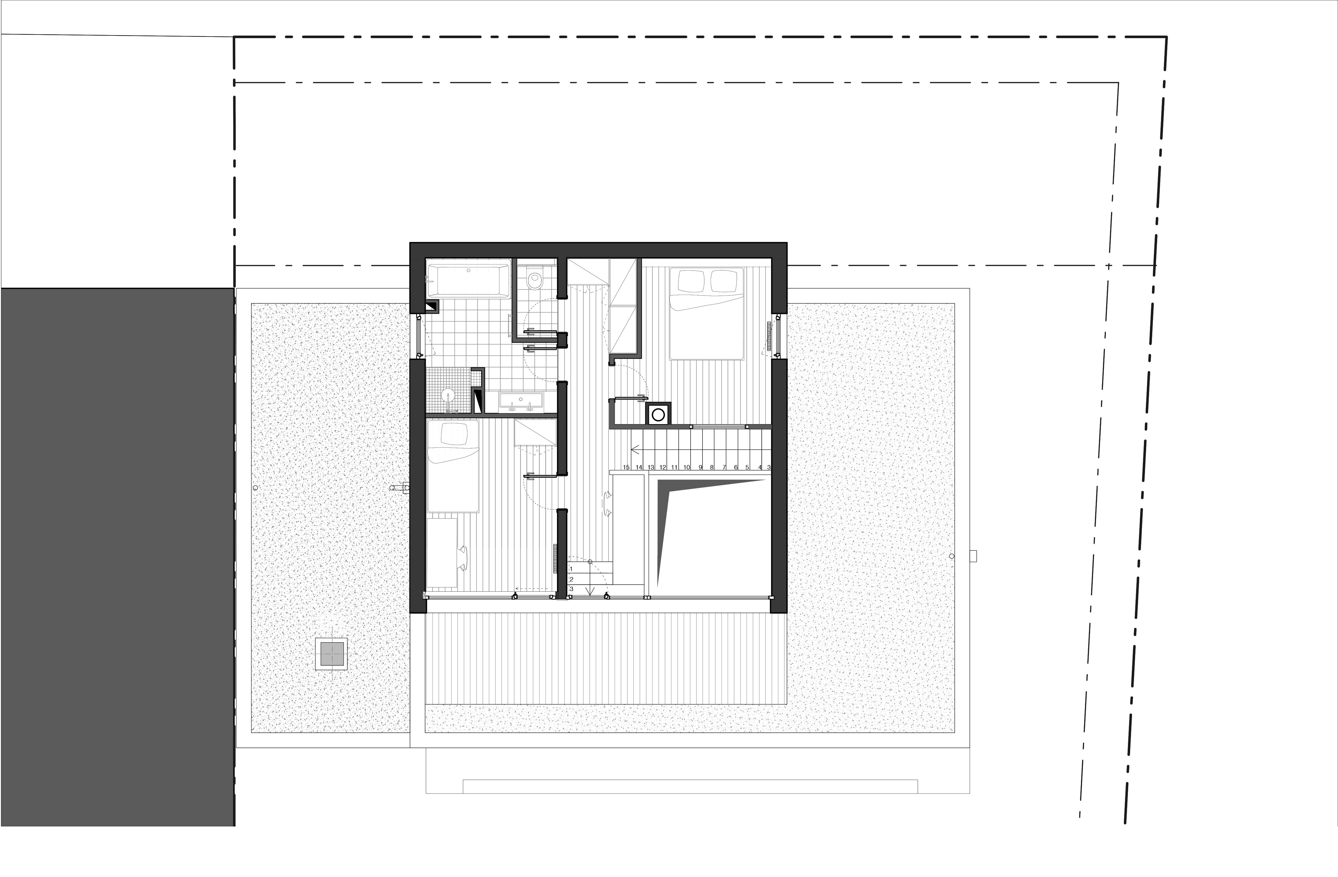
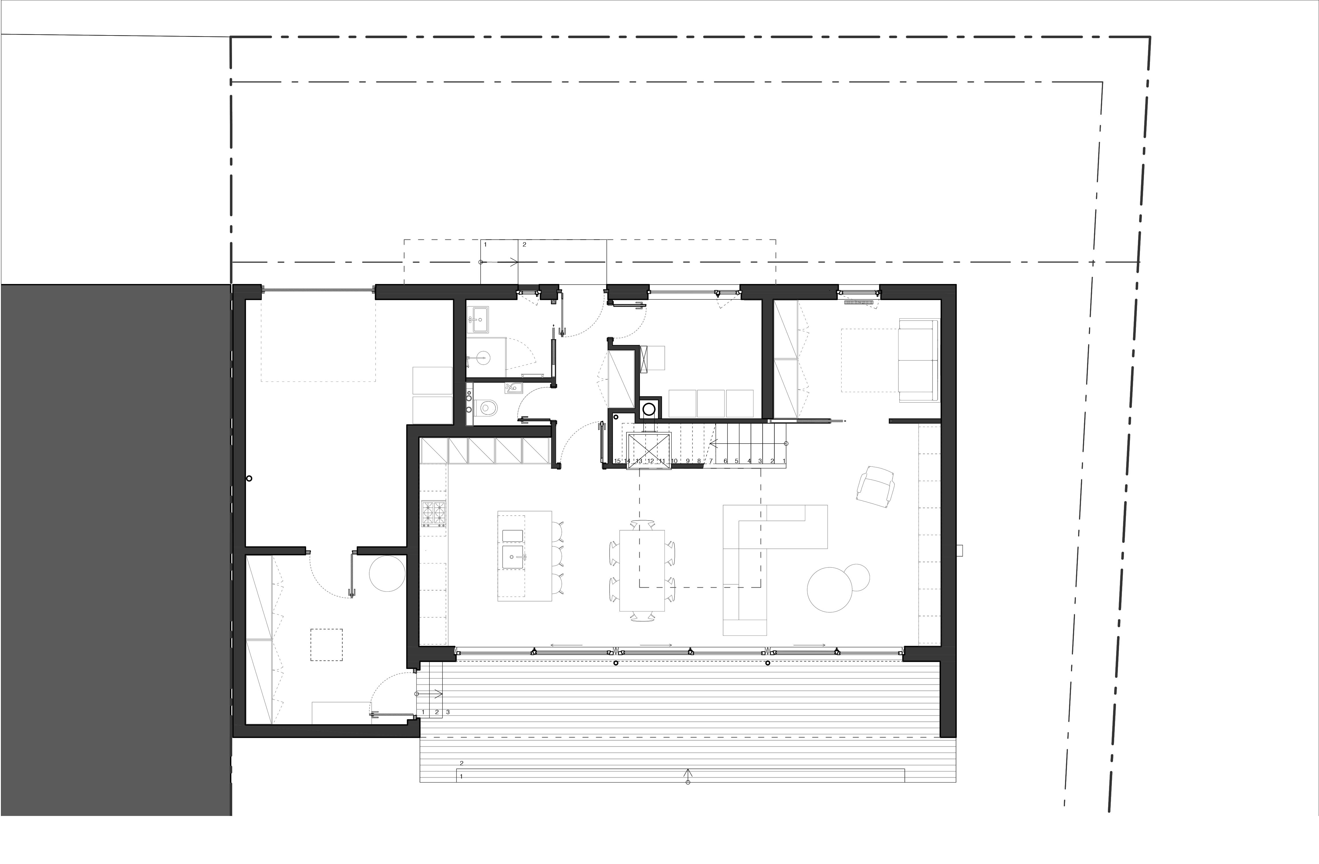
Projet de construction d'une maison individuelle de 131m², d'un garage clos et couvert, et d'une terrasse. La maison comprend deux niveaux : un rez-de-chaussée comprenant les pièces à vivre et le garage, l'étage accueille deux chambres, une salle de bain et un espace bureau.

Catégorie Bâtiment / logement
Numéro de projet3932
Date de candidature13/01/2020

Bâtiment / logement

Détail projet

Typologie de bâtiment : Neuf
Type de bâtiment : Logement individuel supérieur à 120 m²
Année de livraison : 2019
Surface totale du bâtiment en m² : 131
Coût total en € HT (hors foncier, hors VRD, hors honoraires) : 230000
Volume lot bois n°1 - m³ : 103
Coût du lot bois n°1 - € HT : 59000
Bois Français : non
Isolations biosourcées (préciser dans le descriptif technique) : oui
Finitions intéreures biosourcées ou géosourcées (préciser dans le descriptif technique) : non

Structure bois du bâtiment

Structure verticale :

ProduitEssenceProvenances (lieu de croissance du bois)Traitements de préservationMarque et certification produit
Panneau ossature boisÉpicéa communEuropeTraitement Classe 2 (trempage)

Structure horizontale :

ProduitEssenceProvenances (lieu de croissance du bois)Traitements de préservationMarque et certification produit
Solivage traditionnelÉpicéa communEuropeTraitement Classe 2 (trempage)

Charpente :

ProduitEssenceProvenances (lieu de croissance du bois)Traitements de préservationMarque et certification produit
Charpente traditionnelleÉpicéa communEuropeTraitement Classe 2 (trempage)

Revêtement bois extérieur

Revêtement minéral :

Produit
Autres

Autre revêtement métallique :

Produit
Zinc

Menuiserie intérieure et extérieure

Menuiserie extérieure :

ProduitEssenceProvenances (lieu de croissance du bois)Marque et certification produitFinition
Menuiserie boisMERANTILasure

Isolation des murs

Isolation intérieure des murs :

Produit
Laine de verre
Epaisseur (mm) Isolation intérieure des murs : 40

Isolation entre-montant des murs :

Produit
Epaisseur (mm) Isolation entre-montant des murs : 200

Isolation extérieure des murs :

Produit
Polystyrène
Epaisseur (mm) Isolation extérieure des murs : 60

Isolation de la toiture

Epaisseur (mm) Isolation intérieure de la toiture : 40
Epaisseur (mm) Isolation entre-montant de la toiture : 280
Epaisseur (mm) Isolation extérieure de la toiture : 100

Approche environnementale : Le rez-de-chaussée forme un rectangle. Il est largement ouvert sur sa façade Sud donnant sur le jardin. La façade Ouest est mitoyenne donc aveugle. La façade Nord est légèrement ouverte. La façade Est est aveugle. L'étage forme un carré dont la toiture est plate, il est en porte-à-faux coté Nord et forme une protection pour l'entrée. La superposition des deux volumes génère une double hauteur favorisant la captation de calories pendant la période hivernale. Une fenêtre est mise en place façade Est et Ouest tandis que la façade Sud est entièrement ouverte donnant sur une terrasse

Descriptif technique : PEFC (Gestion forestière durable)

Chauffage au Bois : oui
Appareil de chauffage au bois : Poële/insert
Données déclaratives

Acteurs du projet

Maître d'ouvrage (1)

Maître d'ouvrage - Particuliers

particulier (x)

Etudes et ingénieries (2)

Maître d'œuvre - Architecte mandataire

Gilles Kempf Architecte (67)

Bureau d'études thermique

INGEDAIR (67)

Entreprises des lots bois (1)

Charpentier

HEMIA (67)




* : L'entreprise n'est plus active
Retour à la liste