Travailler – accueillir

Halle de marché à Bouffémont

95570 Bouffémont - Val d'Oise - Ile de France

BÂTIMENT / LOGEMENT

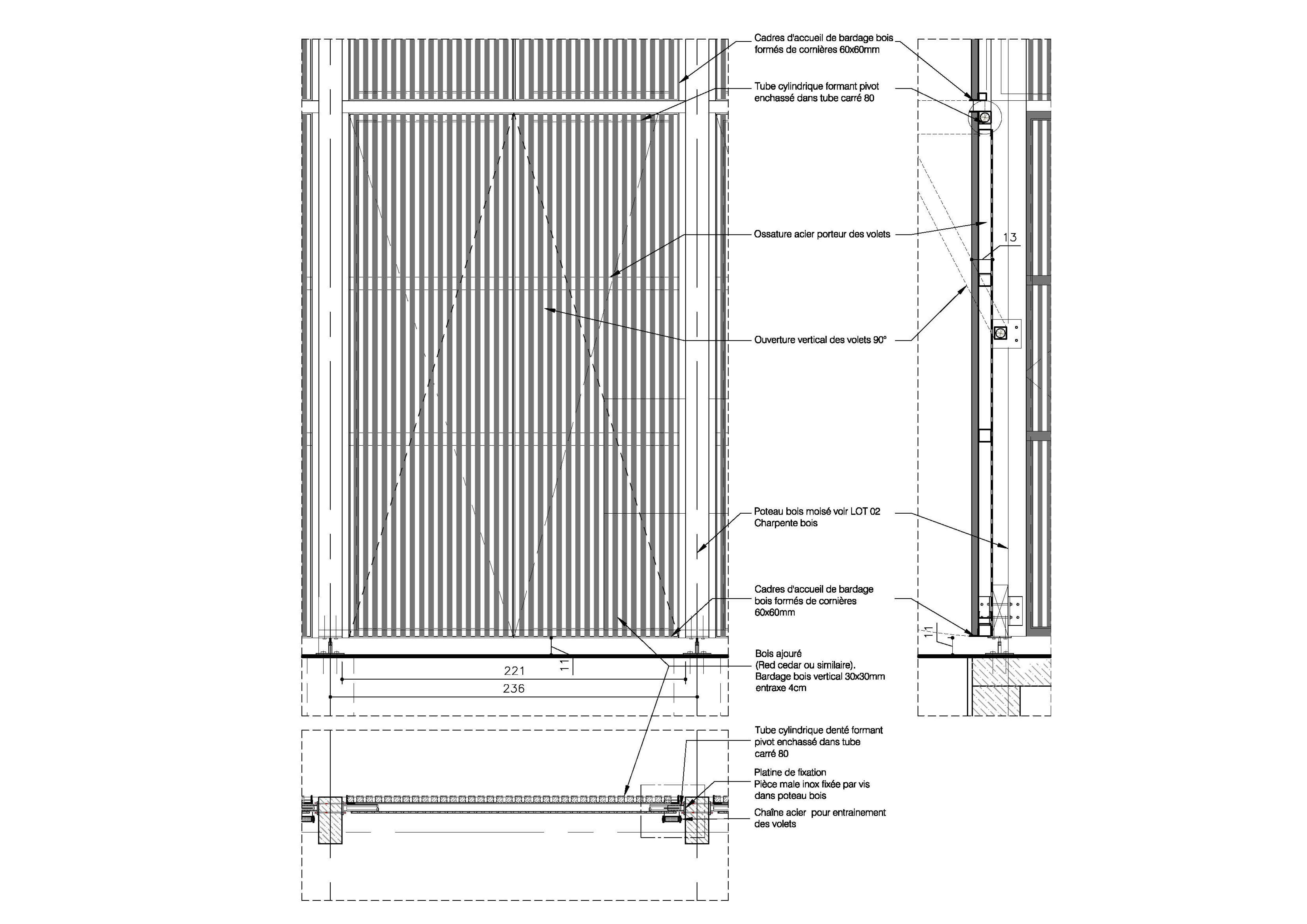
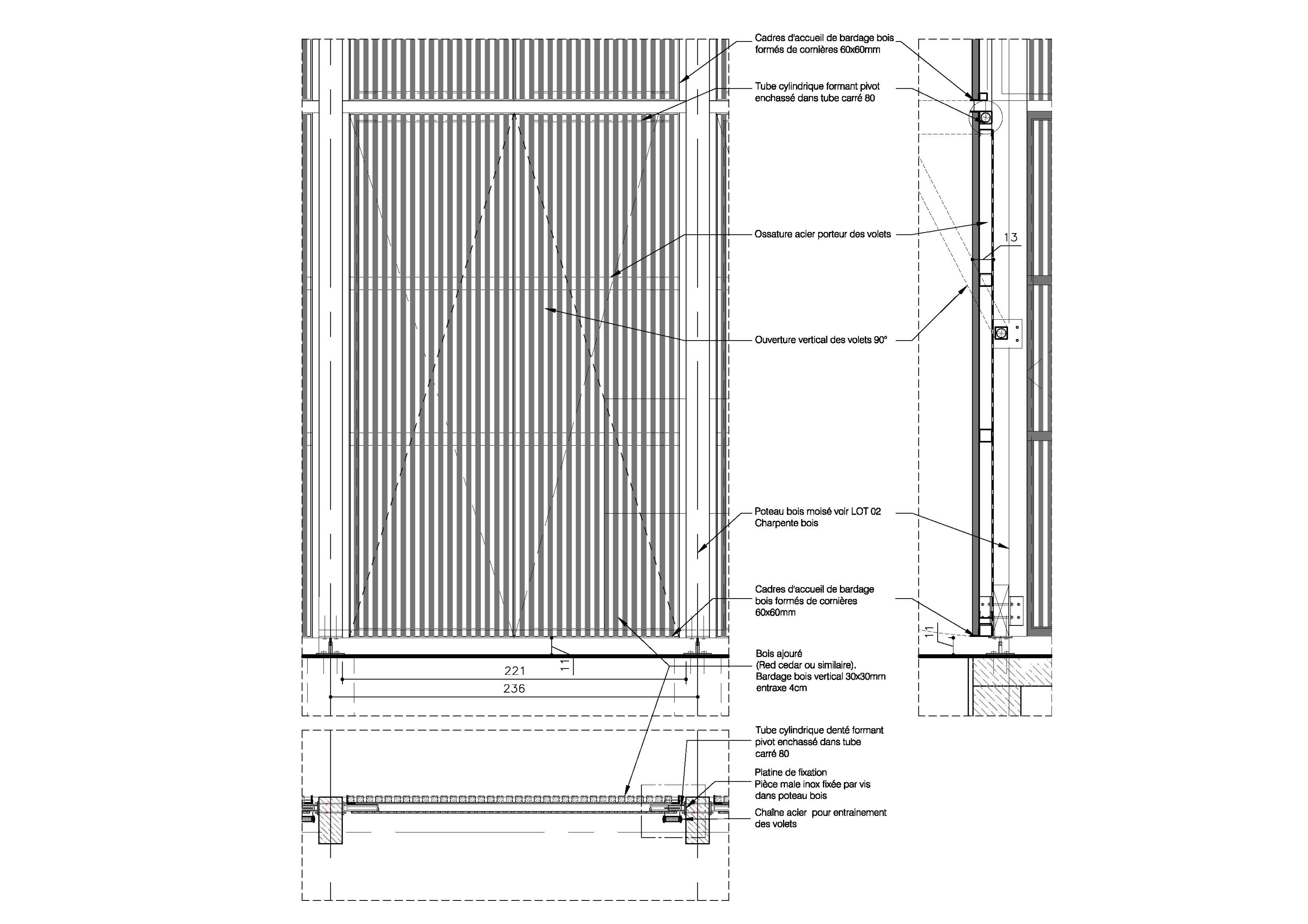
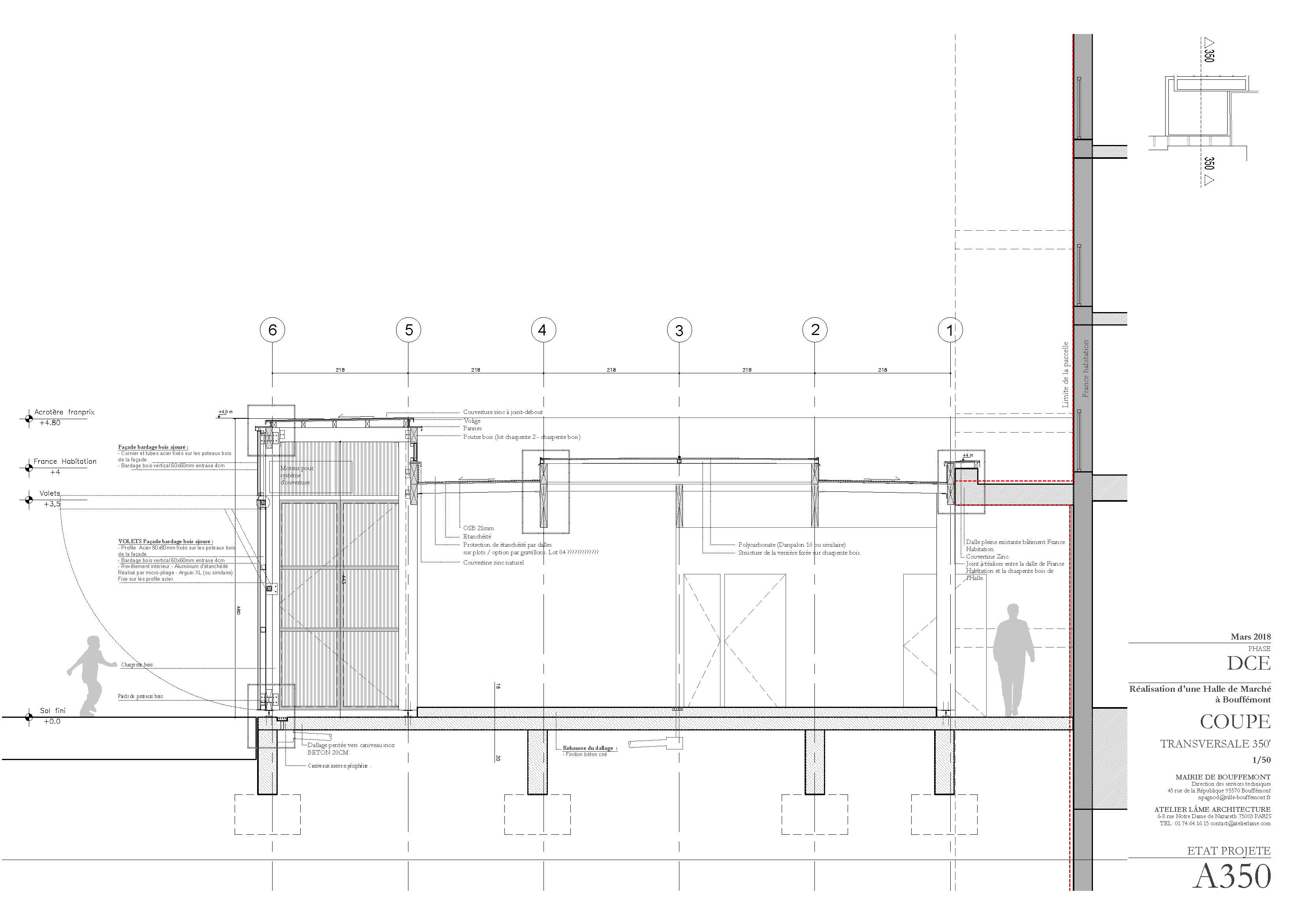
C’est en travail étroit avec l’équipe de paysagistes en charge de l’aménagement de l’espace public contigu, que nous avons conçu une halle sobre en ossature bois pour la commune de Bouffémont (95). Située en cœur de ville, le nouvel équipement remplace l’ancienne halle, désuète, sur la place Vauban fraîchement réhabilitée. Adossée à une opération de logements sociaux, elle se veut conviviale et accueillante. La trame est rationnelle et le projet est modulable. Ouverte, elle déploie ses portes papillons en bois devenant préau pour abriter des échoppes provisoires. Fermée, elle se fait oublier.

Catégorie Bâtiment / logement
Numéro de projet3924
Adresse du projet Place Vauban
95570 Bouffémont
Date de candidature09/01/2020

Bâtiment / logement

Détail projet

Typologie de bâtiment : Neuf
Type de bâtiment : Industrie et commerce
Année de livraison : 2019
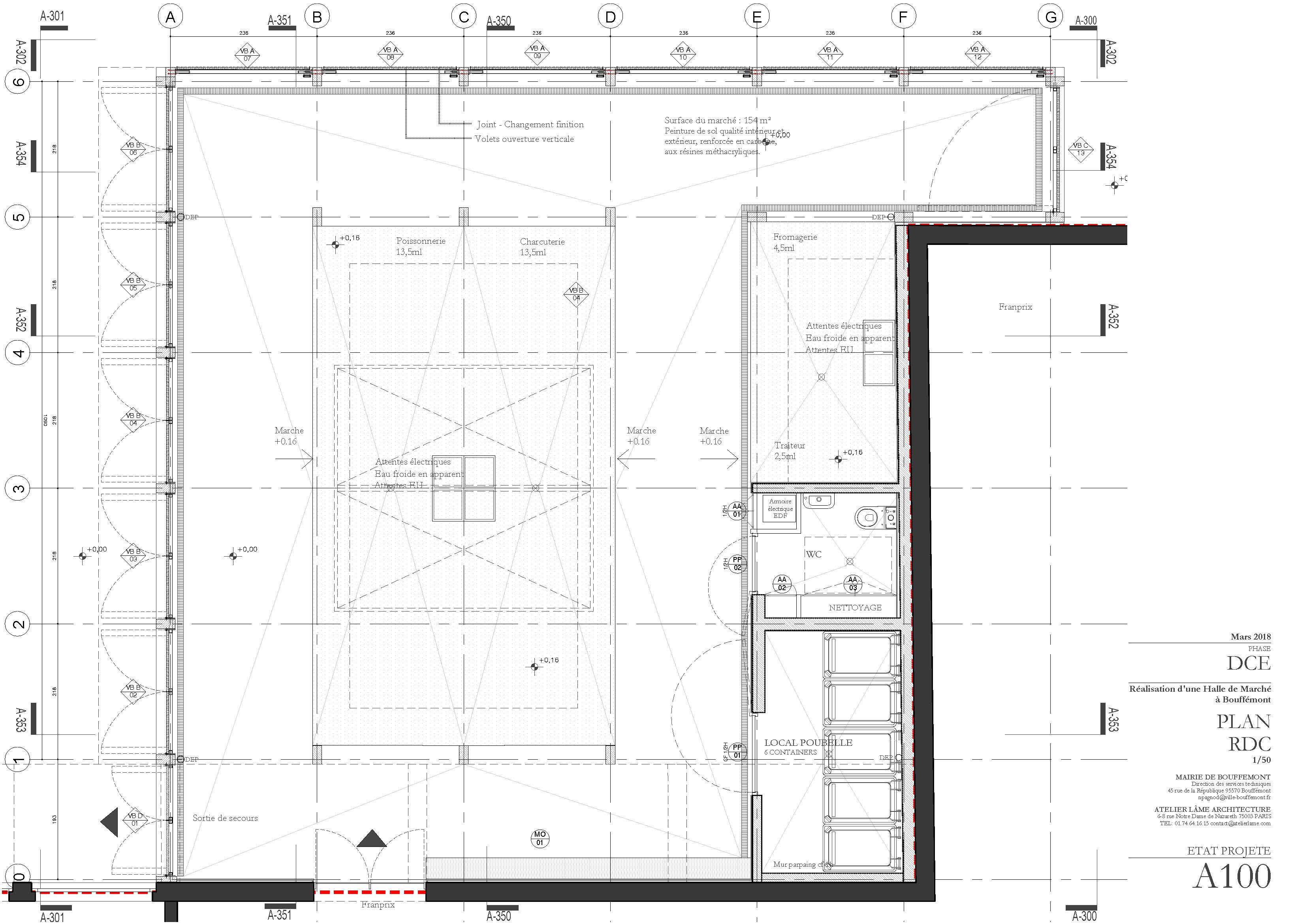
Surface totale du bâtiment en m² : 200
Coût total en € HT (hors foncier, hors VRD, hors honoraires) : 375
Lot bois n°1 concerné : Charpente bois
Volume lot bois n°1 - m³ : 14
Coût du lot bois n°1 - € HT : 33818
Lot bois n°2 concerné : Bardage bois
Volume lot bois n°2 - m³ : 3.52
Coût du lot bois n°2 - € HT : 42195
Bois Français : oui
Isolations biosourcées (préciser dans le descriptif technique) : non
Finitions intéreures biosourcées ou géosourcées (préciser dans le descriptif technique) : non

Structure bois du bâtiment

Structure verticale :

ProduitEssenceProvenances (lieu de croissance du bois)Traitements de préservationMarque et certification produit
Poteau poutreDouglasFranceAucun traitement

Structure horizontale :

ProduitEssenceProvenances (lieu de croissance du bois)Traitements de préservationMarque et certification produit
Dalle boisDouglasFranceAucun traitement

Charpente :

ProduitEssenceProvenances (lieu de croissance du bois)Traitements de préservationMarque et certification produit
Non précisé
Non préciséDouglasFranceAucun traitement

Revêtement bois extérieur

Revêtement bois ou dérivés :

ProduitEssenceProvenances (lieu de croissance du bois)Marque et certification produitFinitionTraitements de préservation
Bardeau boisDouglasFranceTropicalAucune finitionAucun traitement

Menuiserie intérieure et extérieure

Isolation des murs

Isolation de la toiture

Approche environnementale : Notre projet a été conçu dans un souci de respect de l’environnement. La Halle de marché est conçue en ossature bois, un matériau durable, une ressource et un savoir-faire local. Modulable, elle permet de reconnecter les habitants à la production agricole locale et de favoriser le circuit court.

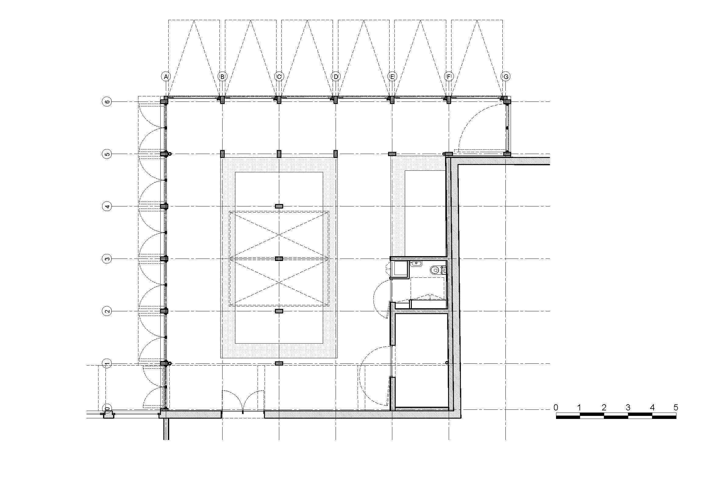
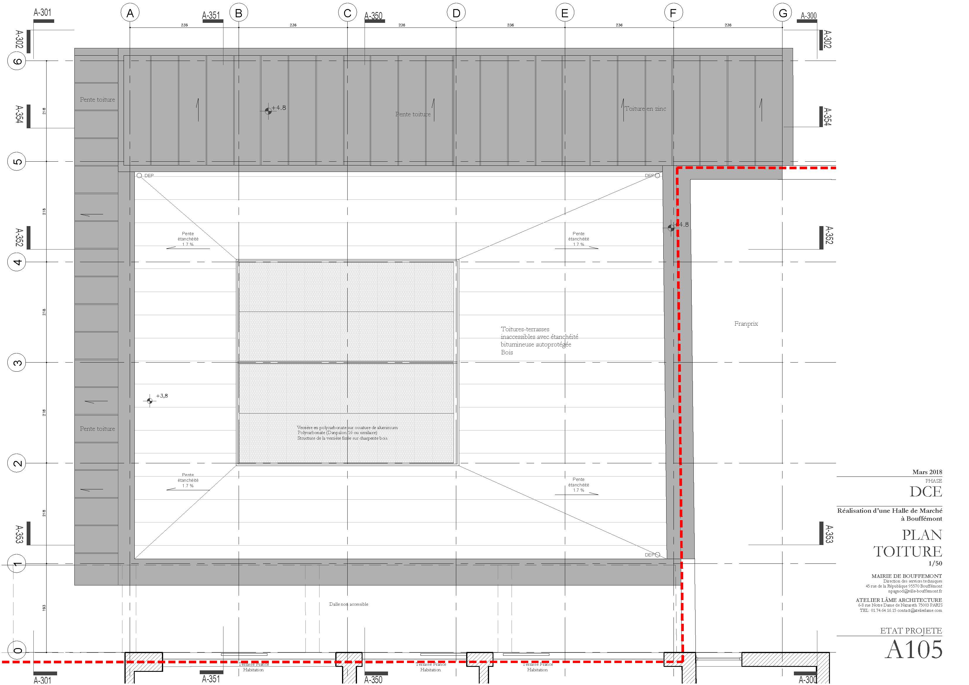
Descriptif technique : La halle de marché répond à un programme précis composé d'échoppes fixes, des échoppes temporaires, ainsi que des locaux annexes. Le plan d’agencement a été pensé afin d’offrir une grande modularité. L’emplacement des marchands a été pensé de manière évolutive. La nouvelle halle de marché se situe très exactement dans un « coin », entre la place, le bâtiment France Habitation et le magasin Franprix. Nous avons avancé l’emprise du projet afin que la nouvelle halle soit visible de toute part.

Chauffage au Bois : non
Certifications, labels et marques bâtiment : Bois de France
Données déclaratives

Acteurs du projet

Maître d'ouvrage (1)

Maître d'ouvrage - État ou collectivité (locale et territ)

Mairie de Bouffémont (95)

Etudes et ingénieries (1)

Maître d'œuvre - Architecte mandataire

atelier LÂME architecture (75)

Entreprises des lots bois (3)

Menuisier

S3M (92)

Constructeur bois

Driollet (95)

Autre lot de la construction (en lien avec le bois)

POULINGUE (27)

Fournisseurs du bois (1)

Industriel

EURO LAMELLE (74) *




* : L'entreprise n'est plus active
Retour à la liste