Habiter une maison
Habiter une maison

Auprès de mon arbre

62930 wimereux - Pas de Calais - Hauts-de-France

BÂTIMENT / LOGEMENT

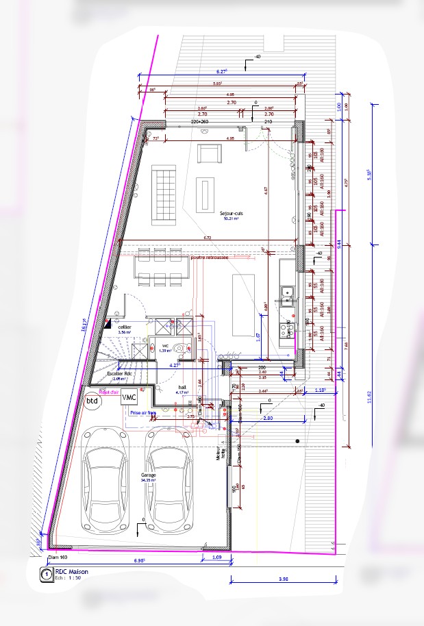
Issue d'une division parcellaire, construite dans un jardin et en place de l'ancien garage, le projet s'interpose entre un espace végétal arriére, et une route de ville passante. Montant d'un niveau en 2 rang. Les espaces de vie s’étendant sur l’arrière coté sud, donnant sur le jardin et le pin, là avant la construction, et offre un large espace de vie familiale sur le Rdc et 3 chambres et salle de bains sur R+1.

Catégorie Bâtiment / logement
Numéro de projet343
Date de candidature20/03/2018

Bâtiment / logement

Détail projet

Typologie de bâtiment : Neuf
Type de bâtiment : Logement individuel inférieur 120 m²
Année de livraison : 2017
Surface totale du bâtiment en m² : 119.2
Coût total en € HT (hors foncier, hors VRD, hors honoraires) : 220000
Lot bois n°1 concerné : Charpente bois
Volume lot bois n°1 - m³ : 6
Coût du lot bois n°1 - € HT : 111000
Lot bois n°2 concerné : Aucun

Structure bois du bâtiment

Structure verticale :

ProduitEssenceProvenances (lieu de croissance du bois)Traitements de préservationMarque et certification produit
Panneau de bois massif (CLT collé ou CLT cloué)TempéréEuropeJe n'ai pas l'information

Structure horizontale :

ProduitEssenceProvenances (lieu de croissance du bois)Traitements de préservationMarque et certification produit
Poutre en I ou mixteTempéréEuropeJe n'ai pas l'information

Charpente :

ProduitEssenceProvenances (lieu de croissance du bois)Traitements de préservationMarque et certification produit
Charpente bois lamellé-colléTempéréEuropeJe n'ai pas l'information

Revêtement bois extérieur

Revêtement bois ou dérivés :

ProduitEssenceProvenances (lieu de croissance du bois)Marque et certification produitFinitionTraitements de préservation
Bardeau boisMélèzeFranceAucune finitionAucun traitement

Menuiserie intérieure et extérieure

Isolation des murs

Isolation extérieure des murs :

Produit
Laine de bois souple
Epaisseur (mm) Isolation extérieure des murs : 200

Isolation de la toiture

Epaisseur (mm) Isolation extérieure de la toiture : 300

Approche environnementale : Maison en CLT (finition intérieur) isolé en 200 mm extérieur de laine de bois, et du triple vitrage. En RT2012 -30%, la VMC DF avec PAC Chauffe ECS et chauffe/Refroidit l'air en plus de la ventilation.

Descriptif technique : Maison de ville RT2012 -30%, sans chauffage direct, VMC DF Aldes T4000 chauffe/refroidissement + ECS, Panneau CLT Woodeum, Bardage mixte bois mocopinus R3D et Panneau Minéral peint Cetris, sur Dalle en radier isolé par extérieur 140 mm Polystyrène, Toiture plate, étanchéité Bi-couche élastomère sur Polystyrène de 300mm.

Chauffage au Bois : non
Données déclaratives

Acteurs du projet

Maître d'ouvrage (1)

Maître d'ouvrage - Particuliers

particulier (x)

Etudes et ingénieries (3)

Maître d'œuvre - Architecte mandataire

agence BENC (62)

Bureau d'études structure bois

Etudes Bois du Barrois (55) *

Bureau d'études thermique

OPTIMISATION CONSTRUCTION RENOVATION (O.C.R.) (59)

Entreprises des lots bois (1)

Charpentier

SBC - systéme bois construction (62)




* : L'entreprise n'est plus active
Retour à la liste