Habiter une maison
Habiter une maison

Maison D

49240 Avrillé - Maine et Loire - Pays de la Loire

BÂTIMENT / LOGEMENT

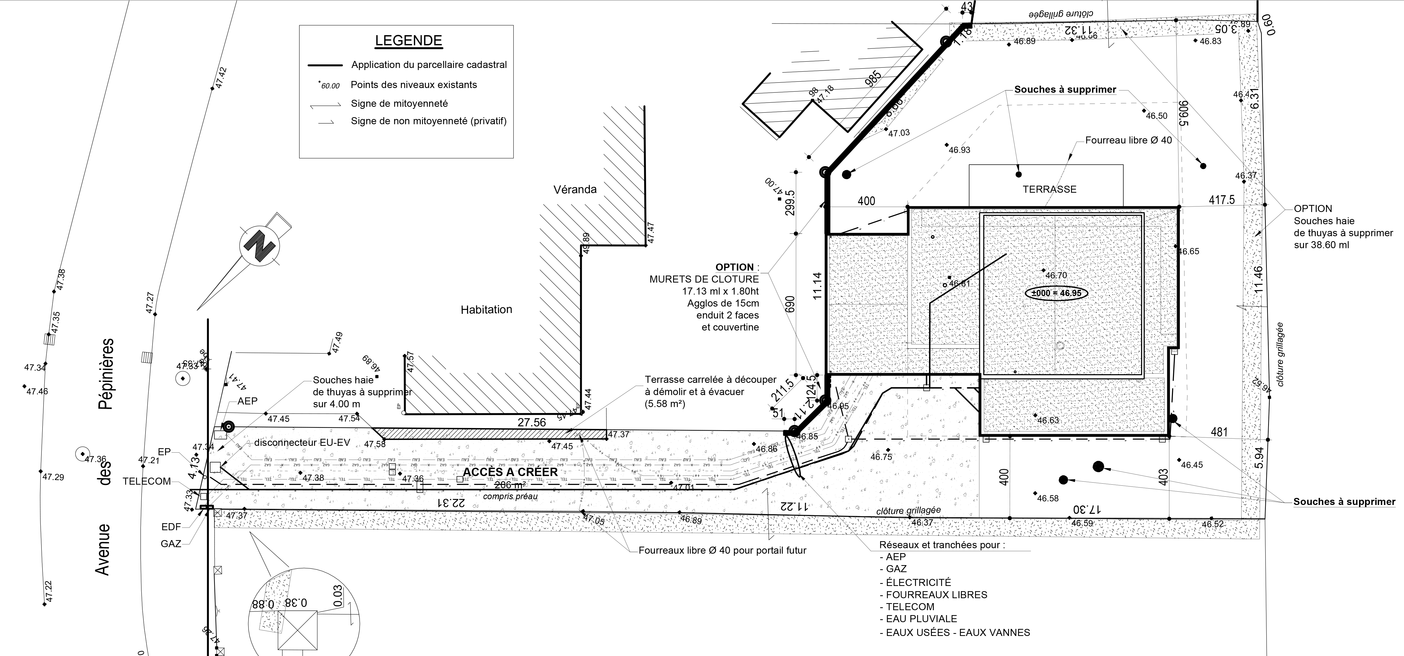
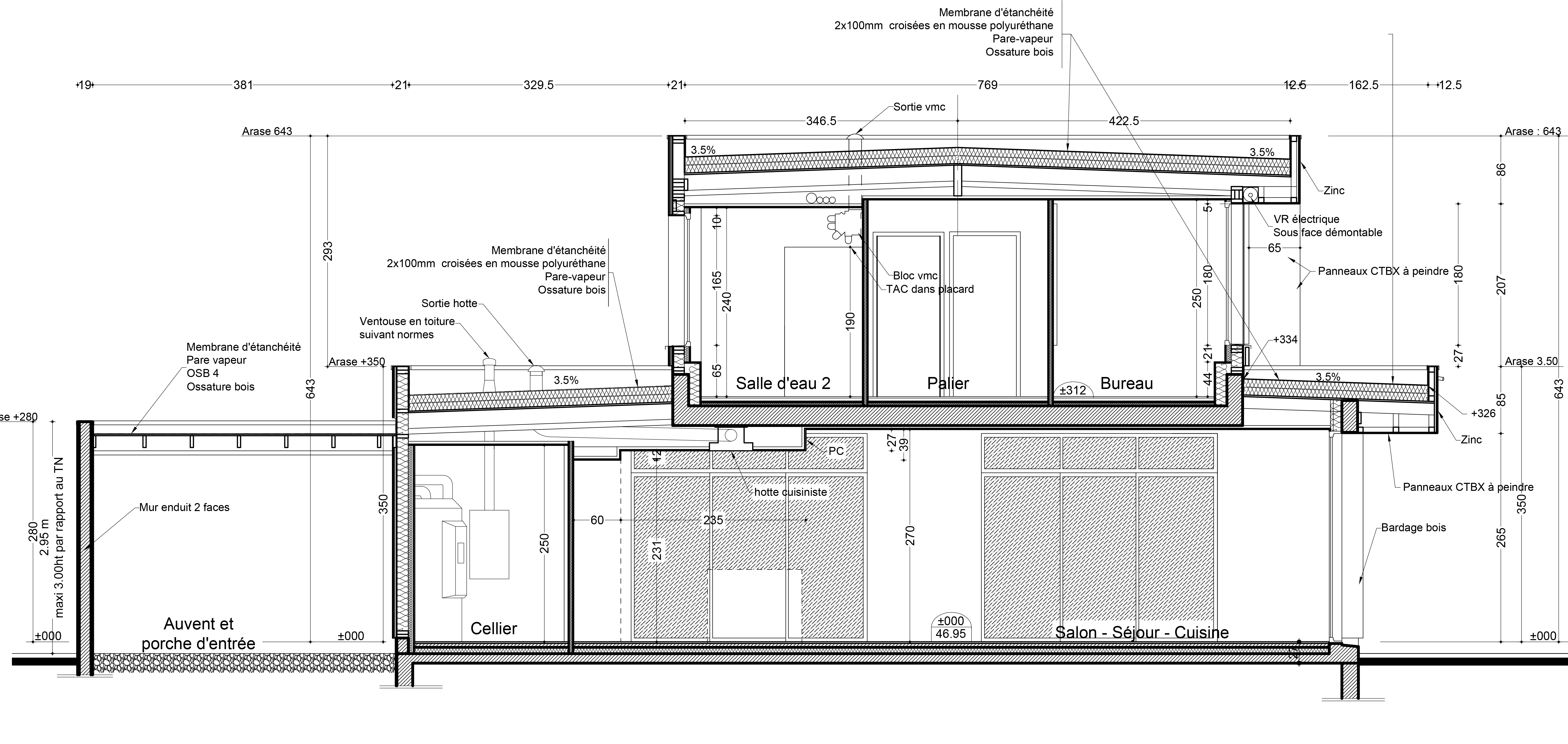
Le projet consiste en la construction d'une maison individuelle d'expression contemporaine qui intègre des principes bioclimatiques dans sa conception. Le projet se développe autour d'un noyau maçonné. Des volumes en ossature bois sont disposés autour, à l'ouest et sur l'ensemble de l'étage. Des bardages bois faux claire voie et zinc viennent recouvrir l'ensemble du projet. Une membrane PVC de teinte claire est installée en toiture.

Catégorie Bâtiment / logement
Numéro de projet310
Date de candidature19/03/2018

Bâtiment / logement

Détail projet

Typologie de bâtiment : Neuf
Type de bâtiment : Logement individuel supérieur à 120 m²
Année de livraison : 2017
Surface totale du bâtiment en m² : 138
Lot bois n°1 concerné : ossature bois
Lot bois n°2 concerné : Charpente bois

Structure bois du bâtiment

Structure verticale :

ProduitEssenceProvenances (lieu de croissance du bois)Traitements de préservationMarque et certification produit
Panneau ossature bois

Structure horizontale :

ProduitEssenceProvenances (lieu de croissance du bois)Traitements de préservationMarque et certification produit
Plancher béton

Charpente :

ProduitEssenceProvenances (lieu de croissance du bois)Traitements de préservationMarque et certification produit
Caisson de toiture

Revêtement bois extérieur

Revêtement bois ou dérivés :

ProduitEssenceProvenances (lieu de croissance du bois)Marque et certification produitFinitionTraitements de préservation
Lame bois massifDouglas

Autre revêtement métallique :

Produit
Zinc

Menuiserie intérieure et extérieure

Isolation des murs

Isolation intérieure des murs :

Produit
Laine de verre
Epaisseur (mm) Isolation intérieure des murs : 60

Isolation entre-montant des murs :

Produit
Laine de verre
Epaisseur (mm) Isolation entre-montant des murs : 145

Isolation de la toiture

Approche environnementale : Les pièces de vie sont orientées Sud Est afin de bénéficier des apports solaires passifs en hiver et à la mi- saison grâce à de larges ouvertures. En été, celles-ci seront protégées des surchauffes grâce aux casquettes. Les pièces situées au Nord sont les pièces de service, elles servent d'espace tampon au Nord (plus froid). En terme de gestion de l'énergie et de confort thermique, l'isolation sera renforcée dans les murs ainsi que dans les vitrages. Grâce à de larges ouvertures, l'illumination naturelle apporte un confort visuel satisfaisant dans les pièces de vie.

Chauffage au Bois : non
Données déclaratives

Acteurs du projet

Maître d'ouvrage (1)

Maître d'ouvrage - Particuliers

particulier (x)

Etudes et ingénieries (1)

Maître d'œuvre - Architecte mandataire

DESarchitecture (49)

Entreprises des lots bois (2)

Charpentier

Les Escaliers Tour du Bois (49)

Menuisier

ACB (Société Angevine Construction Bois) (49)




* : L'entreprise n'est plus active
Retour à la liste