Réhabiliter un logement
Réhabiliter un logement

Le Guérandais

44600 Saint Nazaire - Loire Atlantique - Pays de la Loire

BÂTIMENT / LOGEMENT

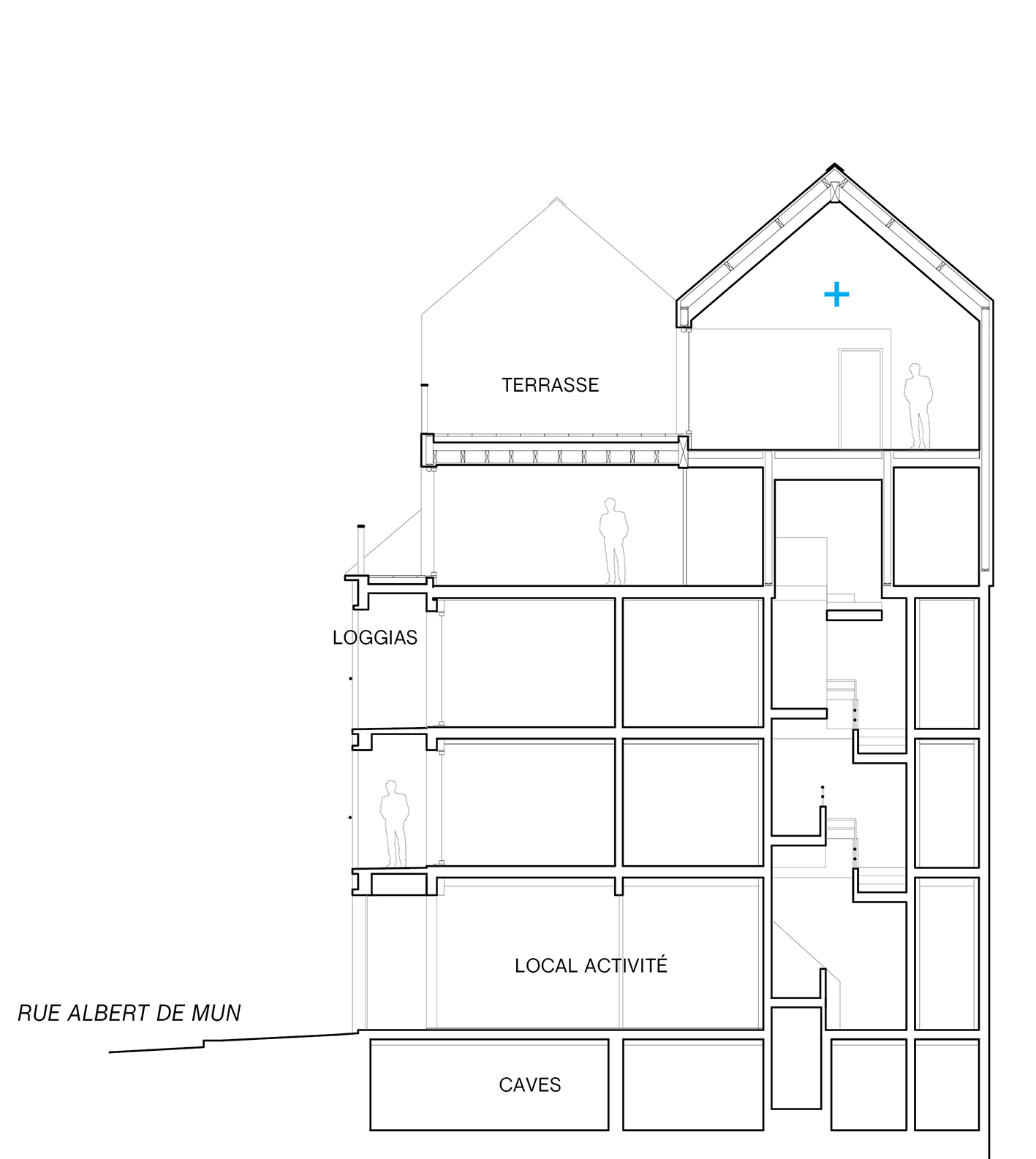
La communauté d’agglomération de St Nazaire a acheté cet ancien hôtel pour y mener une opération exemplaire de réhabilitation. Il s’agit de valoriser ce patrimoine de la reconstruction, en proposant une offre d’habitat attractive et singulière : - référence à l’imaginaire de la maison avec la création de duplex et de “maisons sur le toit” (5 duplex sur les 6 logements) - prolongements extérieurs généreux (9m² en moyenne) - lumière naturelle généreuse, vues sur les toits et l’horizon - traitement des façades par motifs et couleur, rompant avec la monotonie chromatique souvent perçue

Catégorie Bâtiment / logement
Numéro de projet278
Date de candidature16/03/2018

Bâtiment / logement

Détail projet

Typologie de bâtiment : Extension / surélévation
Type de bâtiment : Logement collectif
Année de livraison : 2017
Surface totale du bâtiment en m² : 492
Coût total en € HT (hors foncier, hors VRD, hors honoraires) : 656500
Lot bois n°1 concerné : Charpente bois
Volume lot bois n°1 - m³ : 27.23
Coût du lot bois n°1 - € HT : 62114.89
Lot bois n°2 concerné : Aucun

Structure bois du bâtiment

Structure verticale :

ProduitEssenceProvenances (lieu de croissance du bois)Traitements de préservationMarque et certification produit
Panneau ossature boisTraitement Classe 2 (trempage)

Structure horizontale :

ProduitEssenceProvenances (lieu de croissance du bois)Traitements de préservationMarque et certification produit
Solivage traditionnelÉpicéa communTraitement Classe 2 (trempage)

Charpente :

ProduitEssenceProvenances (lieu de croissance du bois)Traitements de préservationMarque et certification produit
Charpente bois lamellé-colléÉpicéa communTraitement Classe 2 (trempage)
Charpente industrielleSapin pectinéTraitement Classe 2 (trempage)

Revêtement bois extérieur

Revêtement minéral :

Produit
Autres

Menuiserie intérieure et extérieure

Isolation des murs

Isolation intérieure des murs :

Produit
Laine de verre
Epaisseur (mm) Isolation intérieure des murs : 45

Isolation entre-montant des murs :

Produit
Laine de verre
Epaisseur (mm) Isolation entre-montant des murs : 145

Isolation de la toiture

Epaisseur (mm) Isolation intérieure de la toiture : 240
Epaisseur (mm) Isolation entre-montant de la toiture : 80

Approche environnementale : Il s’agit d’impulser, notamment auprès des copropriétés du centre-ville, une dynamique de valorisation et de réappropriation de ce patrimoine devenu obsolète. Le projet met en œuvre une rénovation acoustique et énergétique ambitieuse, au-delà de la réglementation (BBC Rénov pour les 3 logements dans l’existant). Le fonctionnement bioclimatique passif est optimisé : forts apports solaires au sud, logements traversants pouvant être facilement ventilés. Le principe même de surélévation génère une densification tendant à ménager l’étalement urbain.

Descriptif technique : Une première phase de curage du bâtiment a permis un diagnostic plus fin de l’ossature du bâtiment. La préparation des plans d’exécution pour le lot bois pouvant alors se faire en parallèle des interventions de gros œuvre : frangements, empochements, trémies pour les duplex, chaînage périphérique. La préfabrication des éléments bois limite les impacts sur l’installation de chantier dans ce site urbain, et permet la finalisation rapide du clos couvert. Un soin particulier est apporté aux traitements acoustiques entre logements, et notamment entre la surélévation bois et les niveaux existants.

Chauffage au Bois : non
Données déclaratives

Acteurs du projet

Maître d'ouvrage (1)

Maître d'ouvrage - État ou collectivité (locale et territ)

Sonadev (44)

Etudes et ingénieries (1)

Maître d'œuvre - Architecte mandataire

Vendredi Architecture Et Urbanisme (44)

Entreprises des lots bois (1)

Charpentier

Godard Charpente (44)




* : L'entreprise n'est plus active
Retour à la liste