Réhabiliter un logement
Réhabiliter un logement

Chez Claude

44000 Rezé - Loire Atlantique - Pays de la Loire

BÂTIMENT / LOGEMENT

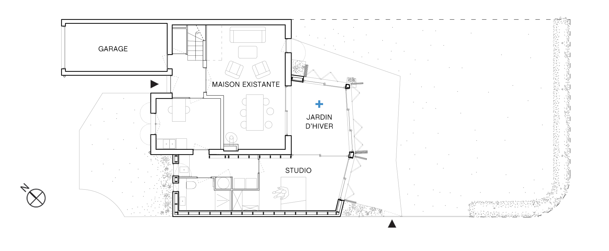
Cette extension permet en Rdc de recentrer l’espace de vie (adapté) et d’envisager de nouveaux usages : accueil de la famille et des amis, mise en location pour une cohabitation intergénérationnelle, etc. S'ouvrant sur le studio créé ou le séjour existant, le jardin d’hiver multiplie les parcours possibles et valorise les relations entre intérieur et extérieur. Il devient le lieu privilégié pour observer, au soleil, la richesse de la faune et la flore de son jardin. A l’étage, le bureau-bibliothèque paré de bois offre un univers confortable, bénéficiant d’une vue dégagée.

Catégorie Bâtiment / logement
Numéro de projet267
Date de candidature15/03/2018

Bâtiment / logement

Détail projet

Typologie de bâtiment : Extension / surélévation
Type de bâtiment : Logement individuel supérieur à 120 m²
Année de livraison : 2017
Surface totale du bâtiment en m² : 71
Coût total en € HT (hors foncier, hors VRD, hors honoraires) : 125000
Lot bois n°1 concerné : Charpente bois
Lot bois n°2 concerné : Menuiserie intérieure bois

Structure bois du bâtiment

Structure verticale :

ProduitEssenceProvenances (lieu de croissance du bois)Traitements de préservationMarque et certification produit
Panneau ossature boisDouglasAucun traitement

Structure horizontale :

ProduitEssenceProvenances (lieu de croissance du bois)Traitements de préservationMarque et certification produit
Solivage traditionnelDouglasAucun traitement

Charpente :

ProduitEssenceProvenances (lieu de croissance du bois)Traitements de préservationMarque et certification produit
Caisson de toitureDouglasAucun traitement

Revêtement bois extérieur

Revêtement bois ou dérivés :

ProduitEssenceProvenances (lieu de croissance du bois)Marque et certification produitFinitionTraitements de préservation
Lame bois massifÉpicéa communpré-griséTraitement Classe 3b (autoclave)

Menuiserie intérieure et extérieure

Menuiserie extérieure :

ProduitEssenceProvenances (lieu de croissance du bois)Marque et certification produitFinition
Volet boisÉpicéa communpré-grisé

Isolation des murs

Isolation intérieure des murs :

Produit
Laine de verre
Epaisseur (mm) Isolation intérieure des murs : 45

Isolation entre-montant des murs :

Produit
Laine de verre
Epaisseur (mm) Isolation entre-montant des murs : 145

Isolation de la toiture

Epaisseur (mm) Isolation intérieure de la toiture : 300

Approche environnementale : Sans être labellisée l’extension s’inscrit dans une démarche respectueuse de l’environnement de par son implantation, sa configuration et les systèmes qu’elle met en œuvre : - emploi massif du matériau biosourcé bois (ossature, bardage et parements intérieurs) - compacité de l’espace chauffé - forts apports solaires au sud - ouvertures limitées au Nord (permettre la ventilation naturelle et les vues) - systèmes de protection solaire (volets accordéons ajourés + store extérieurs BSO) - jardin d’hiver = espace tampon - ballon thermodynamique (principe de l’aérothermie air/eau) - récupérateur EP

Descriptif technique : Le recours à l’ossature bois, préfabriquée en atelier, optimise la construction dans ce contexte étriqué (3 mètres entre la maison existante et la limite de propriété) : murs peu épais, temps réduit, chantier plus aisé (stockage limité sur site). Il y a de plus moins de contraintes liées à la réglementation sismique (extension désolidarisée de l’existant). Le bois de par ses qualités est naturellement parasismique et s’est imposé dans le choix constructif. Les parements intérieurs (sols et parois) en contreplaqué de pin maritime classe 3 ménage la compréhension de la construction bois.

Chauffage au Bois : oui
Appareil de chauffage au bois : Poële/insert
Données déclaratives

Acteurs du projet

Etudes et ingénieries (1)

Maître d'œuvre - Architecte mandataire

Vendredi Architecture Et Urbanisme (44)

Entreprises des lots bois (2)

Charpentier

Sinéco Charpente (44)

Menuisier

Sinéco Charpente (44)

Fournisseurs du bois (1)

Industriel

ARBA (Artisans Réunis Bois Atlantique) (44)




* : L'entreprise n'est plus active
Retour à la liste