Extension HB

49125 Briollay - Maine et Loire - Pays de la Loire

BÂTIMENT / LOGEMENT

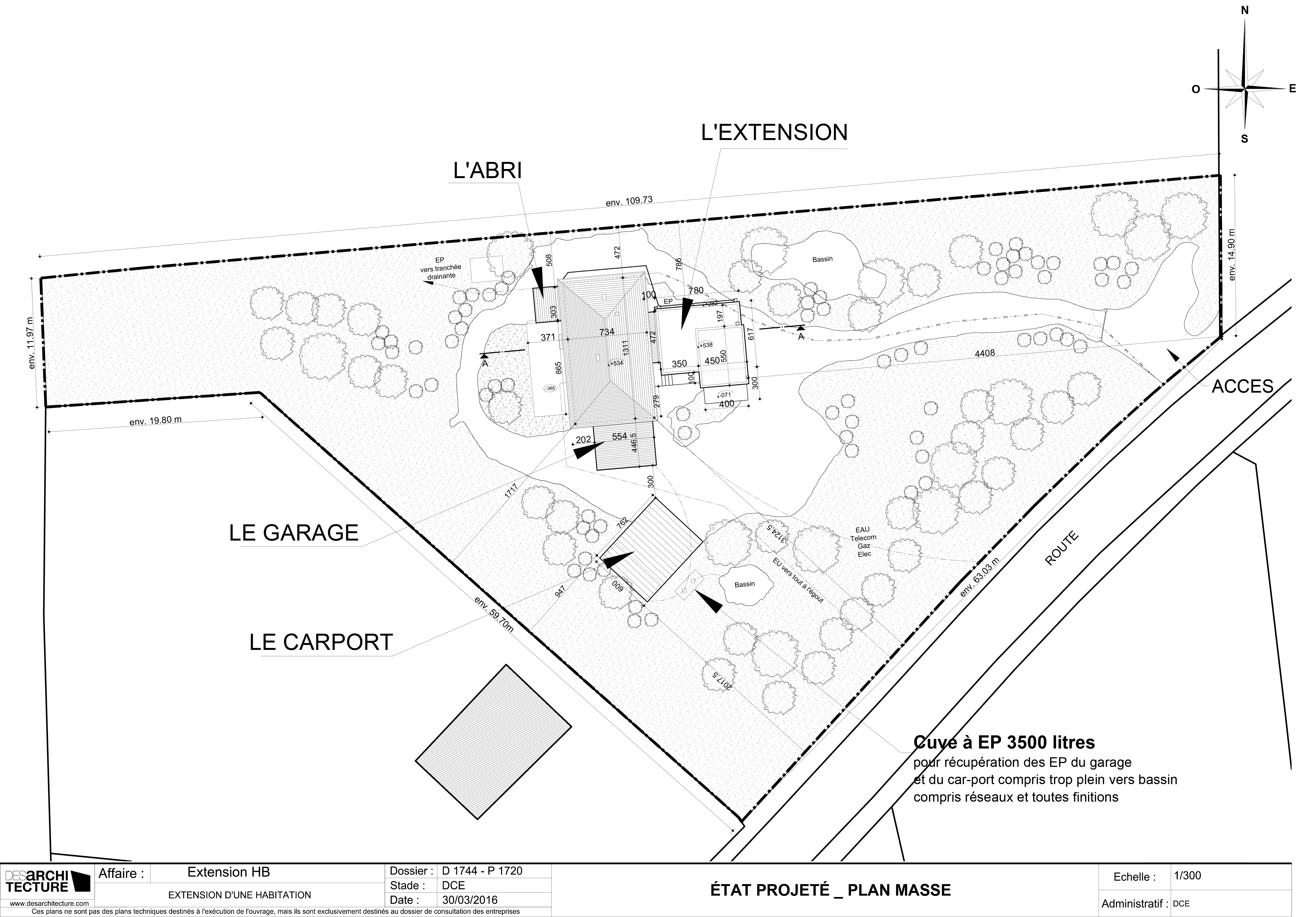
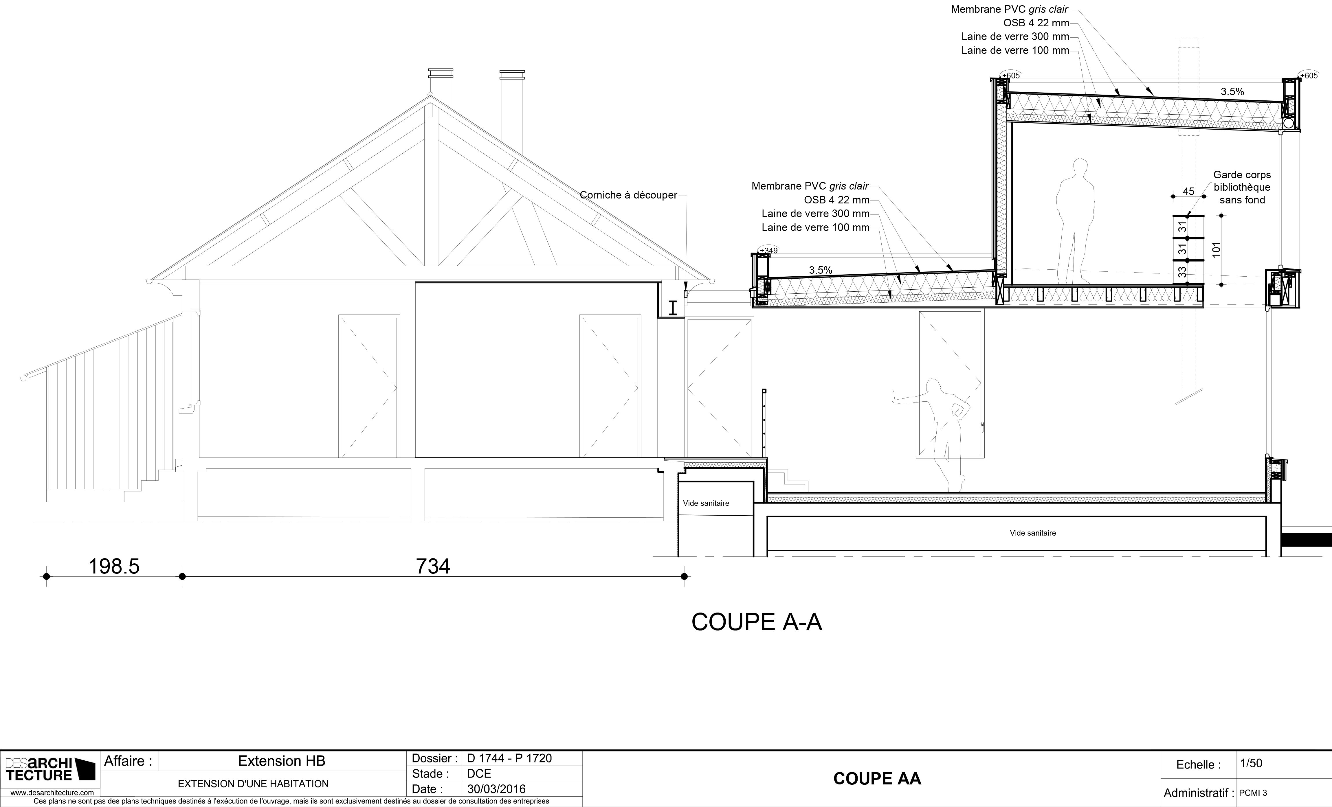
Le projet consiste en la construction d'une extension sur la façade Est d'une maison. L'extension est sur deux niveaux et présente une architecture contemporaine en ossature bois. Elle est couverte par une toiture terrasse de type membrane pvc de couleur claire. Les façades de l'extension seront recouvertes d'un bardage en bois vertical d'essence douglas. La jonction de l'extension avec la maison existante se fera par un espace de transition entièrement vitré sur une largeur d'environ un mètre afin de restituer la lumière naturelle à la partie existante.

Catégorie Bâtiment / logement
Numéro de projet241
Adresse du projet 49125 Briollay
Date de candidature14/03/2018

Bâtiment / logement

Détail projet

Type de bâtiment : Logement individuel inférieur 120 m²
Année de livraison : 2017
Surface totale du bâtiment en m² : 62
Lot bois n°1 concerné : ossature bois
Lot bois n°2 concerné : Charpente bois

Structure bois du bâtiment

Structure verticale :

ProduitEssenceProvenances (lieu de croissance du bois)Traitements de préservationMarque et certification produit
Panneau ossature bois

Structure horizontale :

ProduitEssenceProvenances (lieu de croissance du bois)Traitements de préservationMarque et certification produit
Solivage traditionnelÉpicéa commun

Charpente :

ProduitEssenceProvenances (lieu de croissance du bois)Traitements de préservationMarque et certification produit
Charpente traditionnelleÉpicéa commun

Revêtement bois extérieur

Revêtement bois ou dérivés :

ProduitEssenceProvenances (lieu de croissance du bois)Marque et certification produitFinitionTraitements de préservation
Lame bois massifDouglasAucune finitionAucun traitement

Menuiserie intérieure et extérieure

Isolation des murs

Isolation intérieure des murs :

Produit
Laine de verre
Epaisseur (mm) Isolation intérieure des murs : 60

Isolation entre-montant des murs :

Produit
Laine de verre
Epaisseur (mm) Isolation entre-montant des murs : 145

Isolation de la toiture

Epaisseur (mm) Isolation intérieure de la toiture : 400

Approche environnementale : Isolation renforcée, orientation bioclimatique, dépassée de l'étage pour faire de l'ombre à la baie vitrée sud en été, isolation par le dessous de la dalle pour récupérer l'inertie de la dalle et de la chape. Lumière naturelle omniprésente.

Chauffage au Bois : oui
Appareil de chauffage au bois : Poële/insert
Données déclaratives

Acteurs du projet

Maître d'ouvrage (1)

Maître d'ouvrage - Particuliers

particulier (x)

Etudes et ingénieries (1)

Maître d'œuvre - Architecte mandataire

DESarchitecture (49)

Entreprises des lots bois (1)

Charpentier

ACB (Société Angevine Construction Bois) (49)




* : L'entreprise n'est plus active
Retour à la liste