Aménager
Aménager

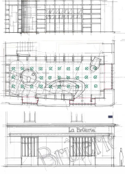
LA BRULERIE

13100 AIX EN PROVENCE - Bouches du rhône - Provence Alpes Côte d'Azur

AMÉNAGEMENT BOIS

Aménagement intérieur

Re-aménagement d’une véritable brûlerie (torréfacteur de café). Aix-en-Provence. L’activité originale et atypique glisse entre café comptoir et marchand de café importateur sans jamais se résoudre, fort heureusement à devenir un bar. La qualité du produit et l’engouement addictif du public à sa consommation est la pierre angulaire de ce succès significatif. Cette activité a des racines, une histoire, une famille, un savoir-faire… une multitude d’ingrédients susceptibles de renforcer l’identité de la Brûlerie. Naturellement et en particulier à Aix-en-Provence, l’architecture et la signature urbaine sont les passerelles idéales pour signifier le passé, rassurer le présent (période géopolitique de doute et d’instabilité) et d’exprimer le futur… optimiste, radieux, prometteur et qualitatif.

Catégorie aménagement bois, aménagement intérieur
Numéro de projet2144
Adresse du projet 13100 AIX EN PROVENCE
Date de candidature16/04/2019

aménagement bois

aménagement intérieur

Année de réalisation : 2017

Liste des produits :

ProduitEssenceProvenances (lieu de croissance du bois)Marque et certification produitFinition
Mobilier
Installation
Bois Français : non

Descriptif technique de l'aménagement : La menuiserie extérieure s’impose donc classique, sortie d’un passé réinventé pour servir la cause, agrémentée de moulures, de textes sur tôle émaillée, de zinguerie et de baies en acier brut dégraissé et vernis de type atelier d’artistes du début du XXème siècle. A l’intérieur l’espace est géométriquement épuré et minimalisé pour créer une rupture, spatiale, temporelle et sensible. L’espace tout entier est en démonstration et porte à disposition chaque détail constructif.A l’image du produit proposé les matières se mettent en scène, brutes, primales et authentiques. Les plans disparaissent pour n’en faire qu’un replié, le bloc sanitaire s’isole en totem, le comptoir se transforme en sculpture contemporaine, l’accès au sous-sol s’estompe et le café se sacralise dans un écrin de modernité en contraste avec son passé totalement assumé.

Données déclaratives

Acteurs du projet

Maître d'ouvrage (1)

Maître d'ouvrage - Bailleur social privé

MARION TALAMENDIER (13)

Etudes et ingénieries (1)

Maître d'œuvre - Architecte mandataire

MOMA LYON CONSEIL (69)




* : L'entreprise n'est plus active
Retour à la liste