Aménager
Aménager

L'ATELIER DE YANN

68000 COLMAR - Haut Rhin - Grand Est

AMÉNAGEMENT BOIS

Aménagement intérieur

Le projet s’insère dans une typologie d’urbanisme de centre-ville régional classique et typique, sur une place dominée par une église.

Catégorie aménagement bois, aménagement intérieur
Numéro de projet2085
Adresse du projet 68000 COLMAR
Date de candidature15/04/2019

aménagement bois

aménagement intérieur

Année de réalisation : 2015

Liste des produits :

ProduitEssenceProvenances (lieu de croissance du bois)Marque et certification produitFinition
Mobilier
Parquet
Luminaire
Bois Français : non

Approche environnementale : Démarche développement durable:emballage limité, recyclable.Il sera produit une pâtisserie gourmande, par la qualité de la matière première choisie et sélectionnée pour la réaliser. La part de sucre sera gérée.L’utilisation des MoMa oMMa CAMBIUM architecture & design 52 Bd des Brotteaux Lyon VI 13 avril 2019 8/22 gélatines sera limitée. Les produits seront en correspondance des disponibilités saisonnières, fruits frais… La production se réalisera en flux continu, directement du laboratoire aux étales de l’offre exposée en boutique. Ainsi, pas de nécessité de stockage négatif de produits finis.

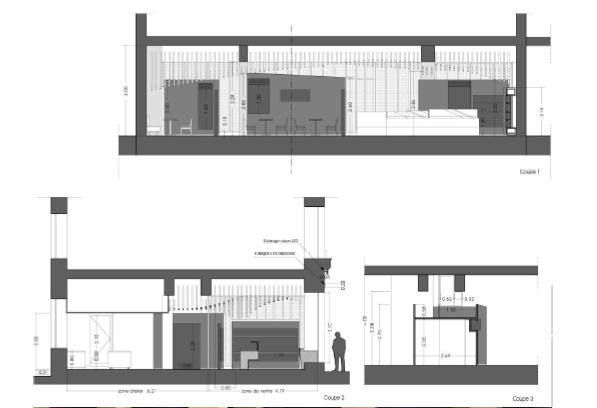
Descriptif technique de l'aménagement : L’espace, conformément au programme doit être global. Les trois usages, salon, boutique et laboratoire ne sont que des fractales de l’espace traversé de lumière qu’ensemble ils constituent. Une installation s’appropriant l’espace de façon inattendue s’impose. Une devanture à la fois imaginaire et réelle se dresse au centre de la surface parallèlement à la façade afin de créer une étanchéité entre l’espace privé de la production et l’espace ouvert au public de la boutique.

Données déclaratives

Acteurs du projet

Etudes et ingénieries (1)

Maître d'œuvre - Architecte mandataire

MOMA LYON CONSEIL (69)




* : L'entreprise n'est plus active
Retour à la liste