Travailler – accueillir
Travailler – accueillir

PULSE

93210 SAINT-DENIS - Seine Saint Denis - Ile de France

BÂTIMENT / LOGEMENT

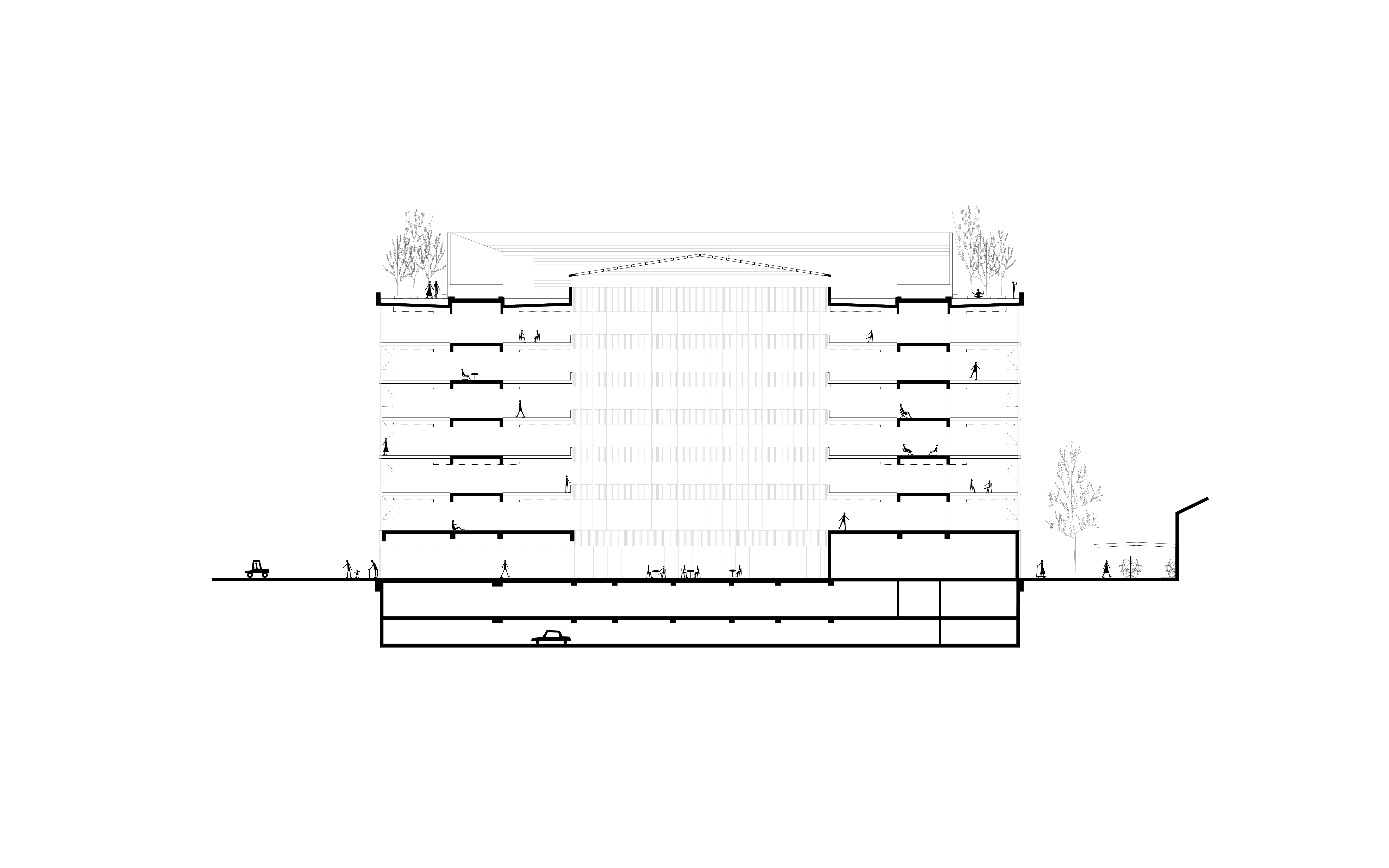
Singulier vis à vis de ses voisins, Pulse affiche une présence urbaine particulière: le bâtiment s’affirme comme un monolithe franc à la composition architecturale sobre, constitué d’un soubassement vitré et d’un attique en retrait. La géométrie et la répétition systématique des larges baies forment une mosaïque qui s’interrompt au-dessus du hall d’entrée et révèle de grands espaces végétalisés. En bois et de verre, Pulse se déploie autour d’un majestueux atrium de 30 mètres de haut, pièce maîtresse du projet, une sorte de cathédrale de verre et bois.

Catégorie Bâtiment / logement
Numéro de projet1949
Adresse du projet Place du Front Populaire
93210 SAINT-DENIS
Date de candidature21/03/2019

Bâtiment / logement

Détail projet

Typologie de bâtiment : Neuf
Type de bâtiment : Lieu d'entreprise
Année de livraison : 2019
Surface totale du bâtiment en m² : 29450
Coût total en € HT (hors foncier, hors VRD, hors honoraires) : 65.7
Lot bois n°1 concerné : ossature bois
Volume lot bois n°1 - m³ : 294.50
Coût du lot bois n°1 - € HT : 379500
Lot bois n°2 concerné : Charpente bois
Volume lot bois n°2 - m³ : 4828.50
Coût du lot bois n°2 - € HT : 6031000
Bois Français : oui
Isolations biosourcées (préciser dans le descriptif technique) : oui
Finitions intéreures biosourcées ou géosourcées (préciser dans le descriptif technique) : oui

Structure bois du bâtiment

Structure verticale :

ProduitEssenceProvenances (lieu de croissance du bois)Traitements de préservationMarque et certification produit
Poteau poutreÉpicéa communEuropeTraitement Classe 2 (trempage)

Structure horizontale :

ProduitEssenceProvenances (lieu de croissance du bois)Traitements de préservationMarque et certification produit
Dalle boisÉpicéa communEuropeTraitement Classe 2 (trempage)

Charpente :

ProduitEssenceProvenances (lieu de croissance du bois)Traitements de préservationMarque et certification produit
Charpente bois lamellé-colléÉpicéa communEuropeTraitement Classe 2 (trempage)

Revêtement bois extérieur

Autre revêtement métallique :

Produit
Alu

Menuiserie intérieure et extérieure

Isolation des murs

Isolation extérieure des murs :

Produit
Laine de roche
Epaisseur (mm) Isolation extérieure des murs : 15

Isolation de la toiture

Epaisseur (mm) Isolation extérieure de la toiture : 15

Approche environnementale : Pulse est réalisé en construction mixte: noyaux en béton, poteaux et poutres/planchers en bois. Le choix d’une structure bois a permis de limiter l’impact carbone. Le béton, utilisé pour la réalisation du socle jusqu’au R+1 et des noyaux, a été objet d’une étude pour optimiser sa composition. La verrière de l’atrium est formée d’une charpente en bois lamellé avec des chevrons et des pannes longitudinales. Les matériaux ont été choisi en fonction des leurs vertus: pérennité, stabilité, résistance

Descriptif technique : La structure poteau/poutre en bois lamellé-collé dont la section courante est 24/32 (Classement GL24h) permet d’assurer la descente de charge de l’immeuble de bureau jusqu‘aux fondations. La stabilité de l’ensemble est assurée par les noyaux en béton. Les dalles de CLT dont l’épaisseur varie de 20 cm pour les planchers à 14 cm pour la toiture, sont posées sur le système poteau/poutre. Ces dalles de CLT permettent d’assurer le rôle de diaphragme de la structure.

Chauffage au Bois : non
Certifications, labels et marques bâtiment : E + C -,Bâtiment Bas Carbone (BBCA)
Données déclaratives

Acteurs du projet

Maître d'ouvrage (1)

Maître d'ouvrage - Promoteurs immobiliers privés

ICADE (92)

Etudes et ingénieries (6)

Maître d'œuvre - Architecte mandataire

BFV ARCHITECTES (75)

Bureau d'études acoustique

AVLS ACOUSTIQUE & VIBRATIONS (91)

Bureau d'études structure bois

BARTHES BUREAU D'ETUDES BOIS (54)

Bureau d'études environnement

ARTELIA Bâtiment & Industrie (93)

Bureau d'études thermique

ARTELIA Bâtiment & Industrie (93)

Economiste

ARTELIA Bâtiment & Industrie (93)

Entreprises des lots bois (1)

Constructeur bois

MATHIS SA (67)




* : L'entreprise n'est plus active
Retour à la liste