Réhabiliter un équipement
Réhabiliter un équipement

Mairie de Gélacourt

54120 GÉLACOURT - Meurthe et Moselle - Grand Est

BÂTIMENT / LOGEMENT

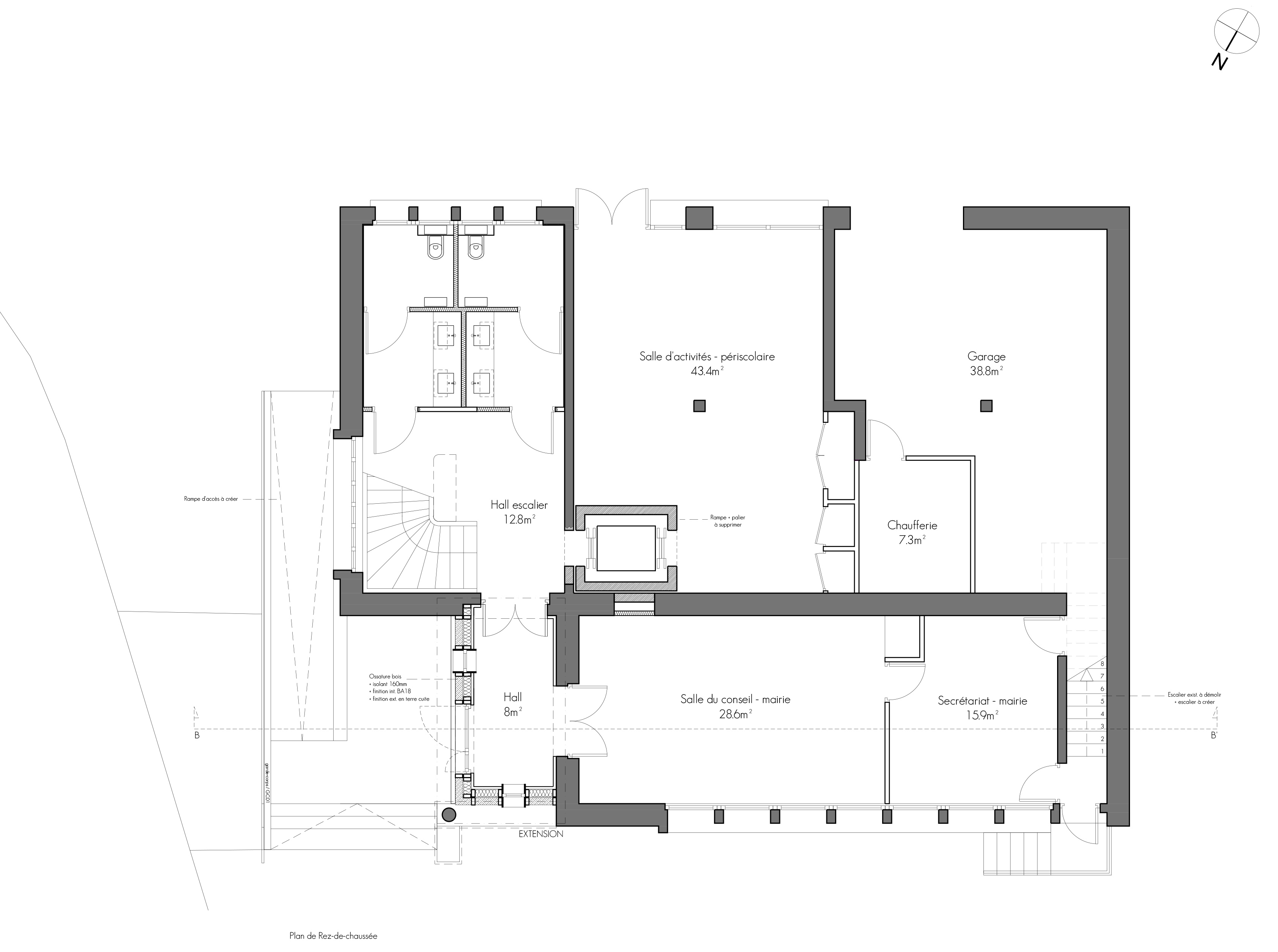
Le projet consiste en la réhabilitation de la mairie de Gélacourt, abritée dans un bâtiment des années 1940/1950. En travaillant sur l'accessibilité des locaux, le choix a été fait de redessiner l'entrée du bâtiment, et de lui redonner plus d'espace. Ainsi, la micro-extension du bâtiment, qui correspond au nouveau hall d'entrée, permet d'affirmer une entrée unique et claire du bâtiment, et de résoudre une desserte inconfortable de la salle du conseil. De plus, en transformant l'ancien porche en espace clos, l'extension participe à l'amélioration du confort thermique du bâtiment.

Catégorie Bâtiment / logement
Numéro de projet1820
Adresse du projet 10 bis Grande Rue
54120 GÉLACOURT
Date de candidature28/02/2019

Bâtiment / logement

Détail projet

Typologie de bâtiment : Extension / surélévation,Rénovation / Réhabilitation
Type de bâtiment : Service institutionnel et public
Année de livraison : 2018
Surface totale du bâtiment en m² : 180
Dont extension / surélévation en m² : 8
Coût total en € HT (hors foncier, hors VRD, hors honoraires) : 130000
Bois Français : non
Isolations biosourcées (préciser dans le descriptif technique) : oui
Finitions intéreures biosourcées ou géosourcées (préciser dans le descriptif technique) : non

Structure bois du bâtiment

Structure verticale :

ProduitEssenceProvenances (lieu de croissance du bois)Traitements de préservationMarque et certification produit
Panneau ossature boisMélèzeEuropeAucun traitement

Structure horizontale :

ProduitEssenceProvenances (lieu de croissance du bois)Traitements de préservationMarque et certification produit
Non précisé

Charpente :

ProduitEssenceProvenances (lieu de croissance du bois)Traitements de préservationMarque et certification produit
Charpente traditionnelle

Revêtement bois extérieur

Revêtement minéral :

Produit
Enduit terre

Menuiserie intérieure et extérieure

Menuiserie extérieure :

ProduitEssenceProvenances (lieu de croissance du bois)Marque et certification produitFinition
Menuiserie boisMélèzeEuropePeinture

Isolation des murs

Isolation de la toiture

Approche environnementale : Pour réaliser l'extension, il a été choisi d'utiliser des matériaux biosourcés. La structure verticale est réalisée en panneau d'ossature bois et les menuiseries sont en bois massif. Le remplissage de l'ossature est réalisé en terre crue, malgré le budget très réduit de l'opération. Au-delà de ses qualités thermiques et environnementales, la terre crue est choisie en tant que ressource fondamentale des territoires ruraux agricoles, comme un hommage à la richesse écologique des campagnes. Aucune finition extérieure n'est ajoutée, pour que la terre puisse exprimer toutes ses nuances en façade.

Chauffage au Bois : non
Données déclaratives

Acteurs du projet

Maître d'ouvrage (1)

Maître d'ouvrage - État ou collectivité (locale et territ)

Commune de Gélacourt (54)

Etudes et ingénieries (2)

Maître d'œuvre - Architecte mandataire

Ambert & Biganzoli (54)

Bureau d'études structure bois

BET2C (54)

Entreprises des lots bois (2)

Charpentier

VOSGES CHARPENTES (88)

Menuisier

NOUVEAUX ETABLISSEMENTS BALDINI (54)




* : L'entreprise n'est plus active
Retour à la liste