Réhabiliter un équipement
Réhabiliter un équipement

ESPACE MULTIACCUEIL DE FRAIMBOIS

54300 FRAIMBOIS - Meurthe et Moselle - Grand Est
Lauréat régional

BÂTIMENT / LOGEMENT

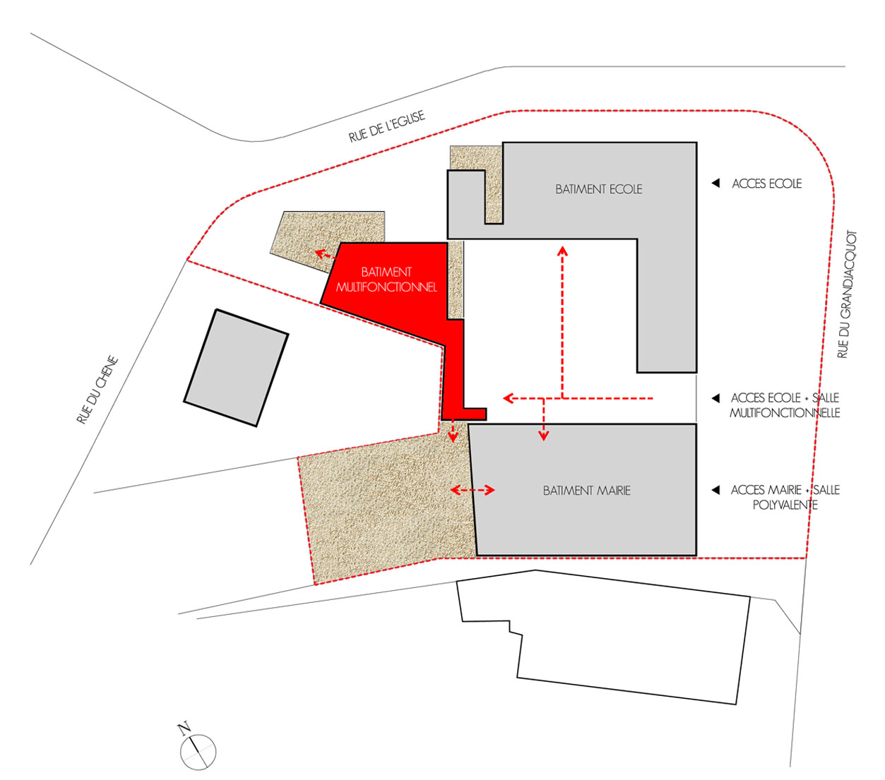
Le bâtiment s'inscrit dans une démarche longue puisqu'il fait l'objet de deux projets en structure bois sur 8 ans. L'extension d'une école et création d'une chaufferie Biomasse puis la construction de cet espace multi accueil qui est enterré de plus de 4m et met en valeur la 5° façade qui est une charpente bois protectrice recouvrant un patio ouvert/fermé.

Catégorie Bâtiment / logement
Numéro de projet1818
Adresse du projet 36 rue du Grandjacquot
54300 FRAIMBOIS
Date de candidature28/02/2019

Bâtiment / logement

Détail projet

Typologie de bâtiment : Extension / surélévation
Type de bâtiment : Enseignement ou éducation,Culture
Année de livraison : 2016
Surface totale du bâtiment en m² : 387
Coût total en € HT (hors foncier, hors VRD, hors honoraires) : 348356
Lot bois n°1 concerné : Charpente bois
Volume lot bois n°1 - m³ : 26
Coût du lot bois n°1 - € HT : 38400
Lot bois n°2 concerné : Aucun
Bois Français : non

Structure bois du bâtiment

Structure verticale :

ProduitEssenceProvenances (lieu de croissance du bois)Traitements de préservationMarque et certification produit
Poteau poutreMélèzeGrand-Est

Structure horizontale :

ProduitEssenceProvenances (lieu de croissance du bois)Traitements de préservationMarque et certification produit
Non précisé

Charpente :

ProduitEssenceProvenances (lieu de croissance du bois)Traitements de préservationMarque et certification produit
Charpente bois lamellé-collé

Revêtement bois extérieur

Revêtement bois ou dérivés :

ProduitEssenceProvenances (lieu de croissance du bois)Marque et certification produitFinitionTraitements de préservation
Bardeau boisMélèzeGrand-Est

Menuiserie intérieure et extérieure

Menuiserie extérieure :

ProduitEssenceProvenances (lieu de croissance du bois)Marque et certification produitFinition
Menuiserie boisPin sylvestreGrand-EstLasure

Isolation des murs

Isolation entre-montant des murs :

Produit
Laine de bois souple
Epaisseur (mm) Isolation entre-montant des murs : 200

Isolation extérieure des murs :

Produit
Laine de roche
Epaisseur (mm) Isolation extérieure des murs : 100

Isolation de la toiture

Approche environnementale : La commune possède de nombreuses forêts. Il était donc tout naturel de créer une chaufferie biomasse qui alimente l'ensemble des bâtiments communaux et d'utiliser la ressource naturelle bois pour construire les nouveaux bâtiments du cœur de bourg. Une ressource efficace, visible, disponible, locale et écologique.

Descriptif technique : Les deux bâtiments sont des constructions bois composés d'une charpente bois avec bardage zinc et murs de soutènements béton pour l'un et charpente bois avec bardage bois pour l'autre. Les deux constructions sont enterrées pour partie. La salle multifonctionnelle possède une charpente apparente faite de nombreuses poutres disposées en diaphragme et qui ont toutes un rôle structurel. La chaufferie bois est quand à elle composée d'un silo à vis pour accueillir les plaquettes bois.

Chauffage au Bois : oui
Appareil de chauffage au bois : Autres
Données déclaratives

Acteurs du projet

Etudes et ingénieries (3)

Maître d'œuvre - Architecte mandataire

Ambert & Biganzoli (54)

Bureau d'études structure bois

BARTHES BUREAU D'ETUDES BOIS (54)

Bureau d'études thermique

FLUID'CONCEPT (88)




* : L'entreprise n'est plus active
Retour à la liste