Réhabiliter un logement
Réhabiliter un logement

Extension et rénovation d'une maison individuelle

67300 SCHILTIGHEIM - Bas Rhin - Grand Est

BÂTIMENT / LOGEMENT

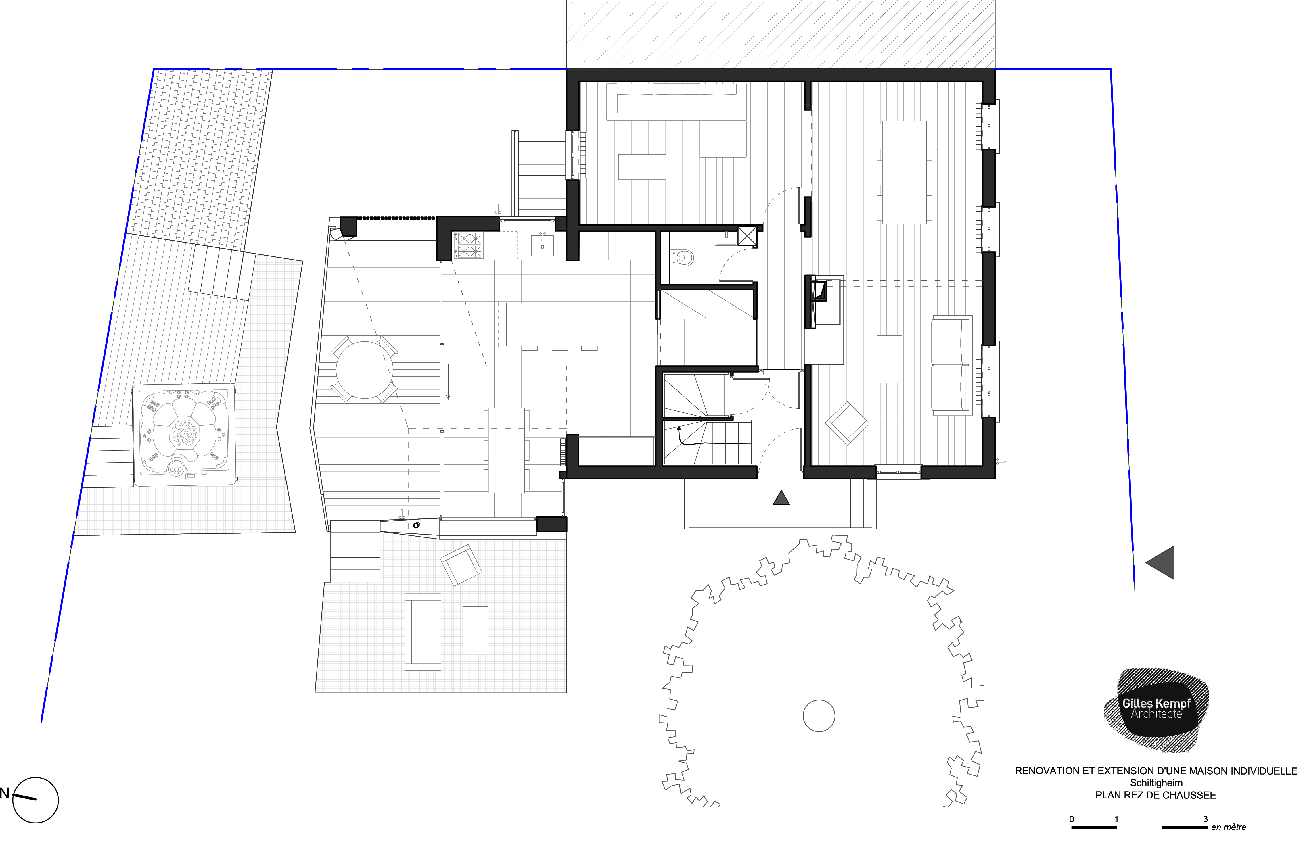
Il s'agit de la rénovation et de la construction d'une extension avec terrasse d'une maison individuelle ainsi que d'un spa hors sol attenant. L'extension est un volume rectangulaire en rez de chaussée, dont la couverture, en bardage anthra zinc, est biaisée ; celle-ci vient abriter partiellement une terrasse. La construction s'implante contre la façade nord ouest du bâtiment existant. La zone spa fait face à la terrasse de l'extension.

Catégorie Bâtiment / logement
Numéro de projet1814
Date de candidature28/02/2019

Bâtiment / logement

Détail projet

Typologie de bâtiment : Extension / surélévation,Rénovation / Réhabilitation
Type de bâtiment : Logement individuel supérieur à 120 m²
Année de livraison : 2016
Surface totale du bâtiment en m² : 16
Coût total en € HT (hors foncier, hors VRD, hors honoraires) : 200000
Lot bois n°1 concerné : ossature bois
Volume lot bois n°1 - m³ : 5
Coût du lot bois n°1 - € HT : 25000
Lot bois n°2 concerné : Menuiserie extérieure bois
Coût du lot bois n°2 - € HT : 30000
Bois Français : non

Structure bois du bâtiment

Structure verticale :

ProduitEssenceProvenances (lieu de croissance du bois)Traitements de préservationMarque et certification produit
Panneau ossature boisSapin pectinéEuropeTraitement Classe 2 (trempage)

Structure horizontale :

ProduitEssenceProvenances (lieu de croissance du bois)Traitements de préservationMarque et certification produit
Solivage traditionnelSapin pectinéEuropeTraitement Classe 2 (trempage)

Charpente :

ProduitEssenceProvenances (lieu de croissance du bois)Traitements de préservationMarque et certification produit
Charpente traditionnelleSapin pectinéEuropeTraitement Classe 2 (trempage)

Revêtement bois extérieur

Autre revêtement métallique :

Produit
Zinc

Menuiserie intérieure et extérieure

Menuiserie extérieure :

ProduitEssenceProvenances (lieu de croissance du bois)Marque et certification produitFinition
Menuiserie boisPin sylvestreEuropeLasure

Isolation des murs

Isolation intérieure des murs :

Produit
Laine de roche
Epaisseur (mm) Isolation intérieure des murs : 40

Isolation entre-montant des murs :

Produit
Epaisseur (mm) Isolation entre-montant des murs : 200

Isolation de la toiture

Epaisseur (mm) Isolation intérieure de la toiture : 40
Epaisseur (mm) Isolation entre-montant de la toiture : 240

Descriptif technique : Structure ossature bois 60x200 pour les murs, toiture et plancher 240mm en bois PEFC de Forêt noire traité classe II produit CTB-P+. Panneau DWD extérieur, panneau OSB intérieur, contre lattage 40x60, insufflation ouate de cellulose. Lattage, voligeage et bardage anthra zinc . Terrasse pin autoclave brun classe IV produit CTB-P+ pose ajourée. Menuiseries extérieures en pin (UW 1.4Wm²K - 1.1 Ug Wm²K - vitrage 4-20-4)

Chauffage au Bois : non
Appareil de chauffage au bois : Poële/insert
Données déclaratives

Acteurs du projet

Etudes et ingénieries (2)

Maître d'œuvre - Architecte mandataire

Gilles Kempf Architecte (67)

Bureau d'études structure bois

BOIS2BOO (67)

Entreprises des lots bois (1)

Charpentier

BOIS2BOO (67)




* : L'entreprise n'est plus active
Retour à la liste