Habiter une maison
Habiter une maison

Maison individuelle "La Monédière"

19390 Chaumeil - Corrèze - Nouvelle-Aquitaine

BÂTIMENT / LOGEMENT

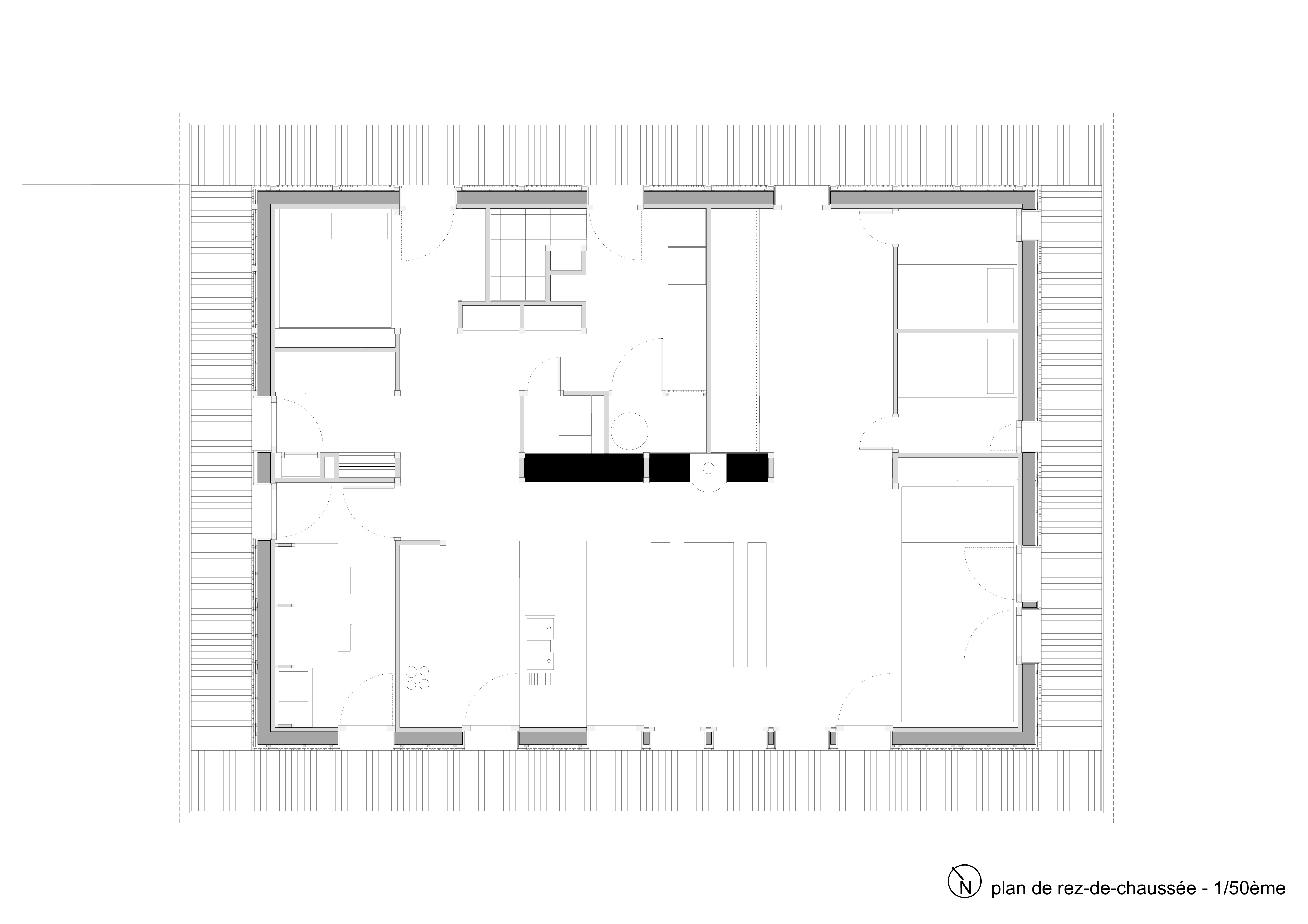
Les édifices existants du hameau de la Monedière sont indissociables des murets, murs de soutènement et édicules qui les accompagnent. Ces prolongements contribuent à la fabrication d’enclos ou de cours, définissent des parcours et créent des seuils. Seuls habitants de la Monedière à l’année, Stéphanie et Cédric en sont les gardiens. L’implantation de la nouvelle habitation tient compte de ce paramètre. Elle est implantée dans l’enceinte du verger/potager et mise en tension avec le four du village et son fournil adjacent, en ruine.

Catégorie Bâtiment / logement
Numéro de projet1803
Date de candidature28/02/2019

Bâtiment / logement

Détail projet

Typologie de bâtiment : Neuf
Type de bâtiment : Logement individuel inférieur 120 m²
Année de livraison : 2017
Surface totale du bâtiment en m² : 92
Coût total en € HT (hors foncier, hors VRD, hors honoraires) : 90778
Lot bois n°1 concerné : Charpente bois
Volume lot bois n°1 - m³ : 20.38
Coût du lot bois n°1 - € HT : 31352.36
Lot bois n°2 concerné : Menuiserie extérieure bois
Volume lot bois n°2 - m³ : 1.46
Coût du lot bois n°2 - € HT : 23887.63
Bois Français : oui

Structure bois du bâtiment

Structure verticale :

ProduitEssenceProvenances (lieu de croissance du bois)Traitements de préservationMarque et certification produit
Panneau ossature boisÉpicéa communAuvergne-Rhône-AlpesTraitement Classe 2 (trempage)

Structure horizontale :

ProduitEssenceProvenances (lieu de croissance du bois)Traitements de préservationMarque et certification produit
Solivage traditionnelDouglasNouvelle-AquitaineTraitement Classe 3b (autoclave)

Charpente :

ProduitEssenceProvenances (lieu de croissance du bois)Traitements de préservationMarque et certification produit
Charpente bois lamellé-colléDouglasTraitement Classe 3b (autoclave)

Revêtement bois extérieur

Revêtement bois ou dérivés :

ProduitEssenceProvenances (lieu de croissance du bois)Marque et certification produitFinitionTraitements de préservation
Lame bois massifDouglasNouvelle-AquitaineAucune finitionAucun traitement

Menuiserie intérieure et extérieure

Menuiserie extérieure :

ProduitEssenceProvenances (lieu de croissance du bois)Marque et certification produitFinition
Menuiserie boisMélèzeLasure

Isolation des murs

Isolation intérieure des murs :

Produit
Fibre de bois (Panneaux)
Epaisseur (mm) Isolation intérieure des murs : 60

Isolation entre-montant des murs :

Produit
Fibre de bois (Panneaux)
Epaisseur (mm) Isolation entre-montant des murs : 200

Isolation extérieure des murs :

Produit
Fibre de bois (Panneaux)

Isolation de la toiture

Epaisseur (mm) Isolation entre-montant de la toiture : 100
Epaisseur (mm) Isolation extérieure de la toiture : 300

Approche environnementale : La demande portait sur une habitation compacte, de petite dimension, avec une certaine complexité spatiale. Trois influences ont orienté la commande. Le vernaculaire local caractérisé par des lits clos disposés dans la pièce principale. L’architecture moderne illustrée par des références de Charlotte Perriand articulant architecture et mobilier. La tradition japonaise exaltant le rapport entre intérieur et extérieur. Le bois et les matériaux bio sourcés ont été privilégiés (bois massif en structure et bardage, isolation fibre de bois, remplissage terre)

Descriptif technique : La maison se déploie à l’horizontal selon un plan compact et se décolle du sol. Le toit est un empilement de trois réseaux de poutraison croisés à angle droit, support d’une toiture végétalisée. Les débords de toit en zinc abritent un parcours entourant la maison. Les façades en douglas s’ouvrent en fonction des orientations et des apports solaires recherchés. Un mur de refend, composé d’une ossature et d’un remplissage en terre accueille un poêle à bûches. La maison a été en grande partie réalisée par les maîtres d’ouvrage, dans le respect des plans détaillés fournis par la maîtrise d’œuvre. Le clos couvert (hors toiture terrasse) a été réalisé par des entreprises, soit les fondations, le gros-oeuvre, les murs à ossature bois compris vêture, la charpente, la zinguerie et les menuiseries extérieures. Les autres travaux ont été réalisés par le maître d’ouvrage en auto-construction (toiture terrasse, aménagement intérieur, fluides, électricité, mur en pisé intérieur, mobilier, etc.).

Chauffage au Bois : oui
Appareil de chauffage au bois : Poële/insert
Données déclaratives

Acteurs du projet

Maître d'ouvrage (1)

Maître d'ouvrage - Particuliers

particulier (x)

Etudes et ingénieries (3)

Maître d'œuvre - Architecte mandataire

ATELIER DU ROUGET SIMON TEYSSOU ET ASSOCIES (15)

Bureau d'études structure bois

BUREAU INGENIERIE MODELING (BIM.B) (82)

Bureau d'études thermique

BREHAULT INGENIERIE (46) *

Entreprises des lots bois (2)

Charpentier

CM BOIS ET HABITAT (12)

Menuisier

MENUISERIE BOUYSSE (15)




* : L'entreprise n'est plus active
Retour à la liste