Habiter une maison

Maison solaire Marigny en Orxois

02810 Marigny-en-Orxois - Aisne - Hauts-de-France

BÂTIMENT / LOGEMENT

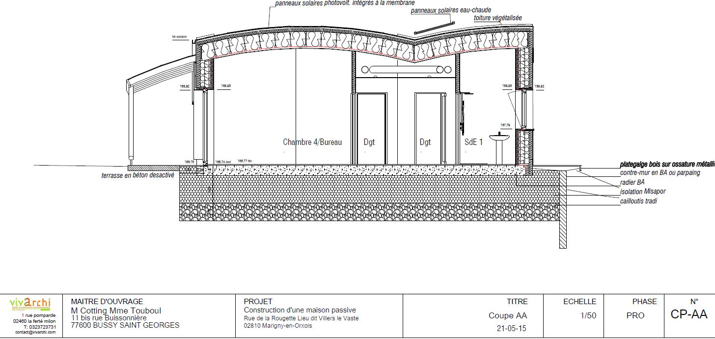
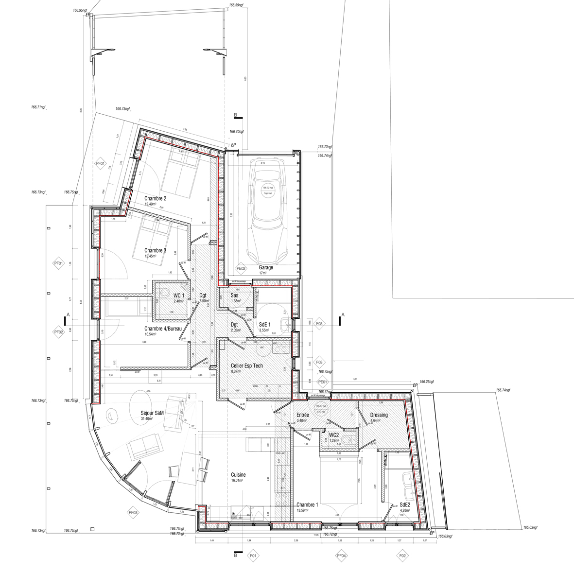
Le terrain situé dans un de ces hameaux typiques domine une petite vallée aux lignes douces. La maison dessinée d’un jet suite aux ateliers sur terrain avec les habitants se développe en L pour présenter les façades au soleil et au paysage. Elle est composée de deux volumes courbes végétalisés sur une structure bois massif et lamellé-collé. Les débords de toiture apportent des protections solaires et à la pluie. Les apports solaires couplés à l’enveloppe thermique des panneaux en bois et cellulose ainsi qu’à la ventilation double flux contribuent à réduire les besoins d’énergies au niveau des standards passifs.

Catégorie Bâtiment / logement
Numéro de projet1778
Date de candidature17/12/2018

Bâtiment / logement

Détail projet

Typologie de bâtiment : Neuf
Type de bâtiment : Logement individuel supérieur à 120 m²
Année de livraison : 2017
Surface totale du bâtiment en m² : 136
Coût total en € HT (hors foncier, hors VRD, hors honoraires) : 440000
Lot bois n°1 concerné : Aucun
Lot bois n°2 concerné : Aucun
Bois Français : oui

Structure bois du bâtiment

Structure verticale :

ProduitEssenceProvenances (lieu de croissance du bois)Traitements de préservationMarque et certification produit
Poteau poutreDouglas
Poteau poutreChêneHauts-de-France

Structure horizontale :

ProduitEssenceProvenances (lieu de croissance du bois)Traitements de préservationMarque et certification produit
Plancher béton

Charpente :

ProduitEssenceProvenances (lieu de croissance du bois)Traitements de préservationMarque et certification produit
Charpente bois lamellé-colléDouglas
Charpente traditionnelleChêne

Revêtement bois extérieur

Revêtement bois ou dérivés :

ProduitEssenceProvenances (lieu de croissance du bois)Marque et certification produitFinitionTraitements de préservation
Lame bois massifDouglas

Revêtement minéral :

Produit
Enduit ciment

Menuiserie intérieure et extérieure

Menuiserie extérieure :

ProduitEssenceProvenances (lieu de croissance du bois)Marque et certification produitFinition
Menuiserie boisPin sylvestreHauts-de-France

Isolation des murs

Isolation de la toiture

Approche environnementale : La maison a été conçue pour assurer un ensoleillement maximal tout au long de la journée en hiver en même temps qu’une ouverture visuelle sur le paysage environnant. Pour le confort d’été les débords de toiture, la couverture végétalisée, les protections solaires, la pergola ainsi que l’inertie du radier contribuent à tempérer les espaces intérieurs. Les besoins en eau chaude sanitaire sont couvert à 50 % par les capteurs solaires. Le chauffage quand il est nécessaire est assuré par un poêle à granulés associé à une ventilation double flux. L’assainissement individuel est un bassin planté de macrophytes.

Descriptif technique : - Infrastructure en radier sur isolation - Superstructure en lamellé-collé et bois massif - Isolation en laine de bois et cellulose - Couverture par végétalisation extensive - Menuiseries bois de pays peintes - Bardages en douglas - Enduits sur laine de bois - Assainissement par lits plantés de macrophytes - Panneaux solaires - Ventilation double flux haute performance - Poêle à granulés - Electro-domestique à basse consommation - Suivi des consommations énergétiques PEFC (Gestion forestière durable) FSC (Gestion forestière responsable) Marquage CE

Chauffage au Bois : oui
Données déclaratives

Acteurs du projet

Maître d'ouvrage (1)

Maître d'ouvrage - Particuliers

particulier (x)

Etudes et ingénieries (3)

Maître d'œuvre - Architecte mandataire

Vivarchi (02)

Bureau d'études structure bois

Echo Bois (80)

Bureau d'études thermique

TREENERGY (60)

Entreprises des lots bois (2)

Menuisier

MENUISERIE DAVID ET FILS (02)

Constructeur bois

HANS FEVRIER CONSTRUCTION BOIS (HFCB) (02)




* : L'entreprise n'est plus active
Retour à la liste