Habiter une maison
Habiter une maison

DOLIVET

35200 Rennes - Ille et Vilaine - Bretagne
Lauréat régional

BÂTIMENT / LOGEMENT

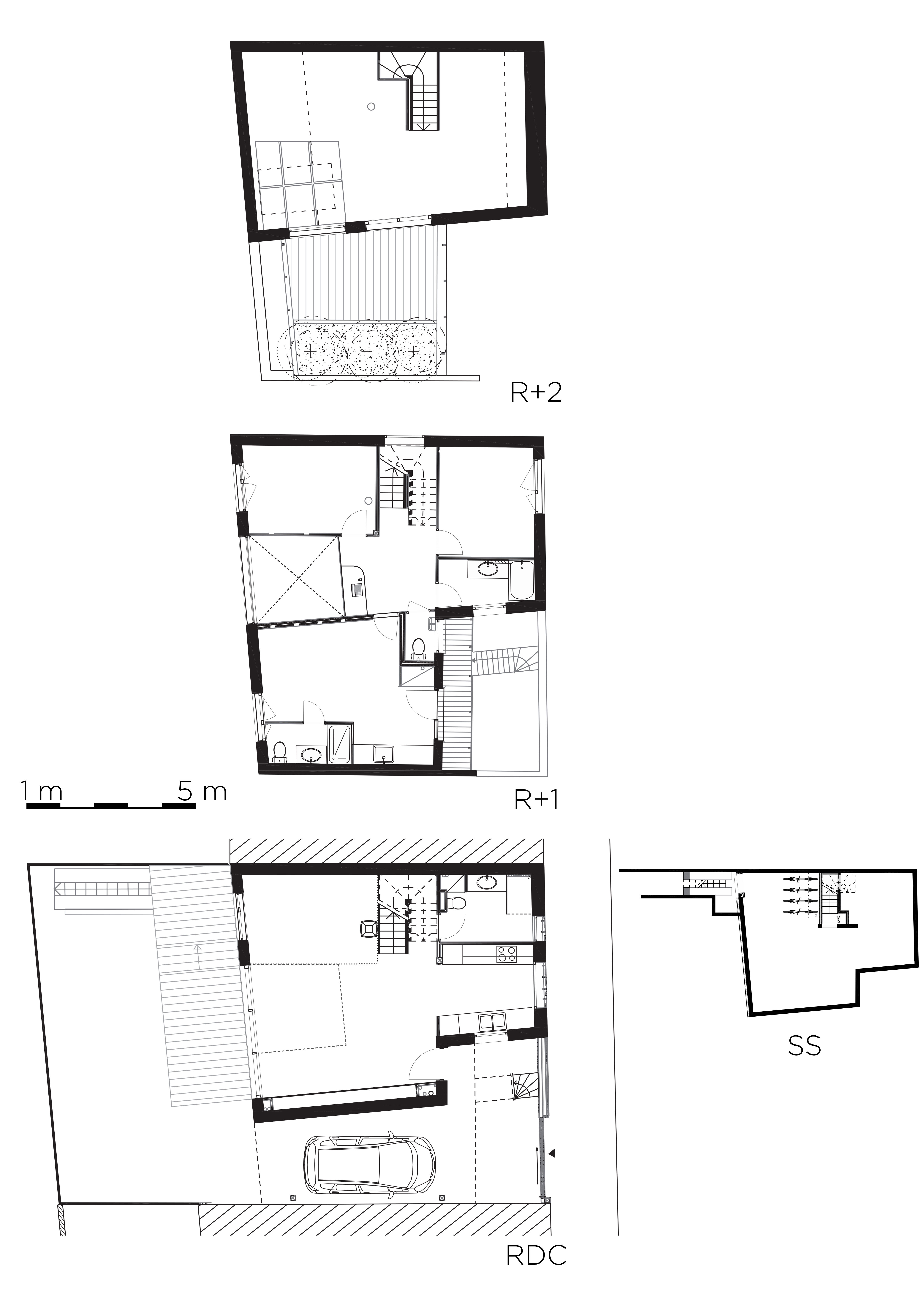
Il s’agit d’une maison faubourienne mitoyenne en ossature bois qui reçoit différentes vêtures extérieures. Un bardage noir pour rappelle les maisons locales en ardoises. Cette enveloppe globale laisse apparaître en son sein un magnifique granit de Guerlesquin monté sur ossature bois et un bardage clair reliant les deux. Le souci du détail donne la pureté des lignes et laisse ainsi s’inscrire une architecture puissante et raffinée. L’intérieur s’organise autour d’une double hauteur + plancher de verre. Ainsi, la lumière pénètre depuis la terrasse sud au R+2 jusqu’au cœur du séjour.

Catégorie Bâtiment / logement
Numéro de projet1738
Date de candidature26/02/2019

Bâtiment / logement

Détail projet

Typologie de bâtiment : Neuf
Type de bâtiment : Logement individuel supérieur à 120 m²
Année de livraison : 2018
Surface totale du bâtiment en m² : 170
Coût total en € HT (hors foncier, hors VRD, hors honoraires) : 330000
Lot bois n°1 concerné : ossature bois
Lot bois n°2 concerné : Bardage bois
Bois Français : oui

Structure bois du bâtiment

Structure verticale :

ProduitEssenceProvenances (lieu de croissance du bois)Traitements de préservationMarque et certification produit
Panneau ossature boisAucuneTraitement Classe 3a (trempage)

Structure horizontale :

ProduitEssenceProvenances (lieu de croissance du bois)Traitements de préservationMarque et certification produit
Solivage traditionnelÉpicéa communAucuneTraitement Classe 3a (trempage)

Charpente :

ProduitEssenceProvenances (lieu de croissance du bois)Traitements de préservationMarque et certification produit
Caisson de toitureÉpicéa communAucuneTraitement Classe 3a (trempage)

Revêtement bois extérieur

Revêtement bois ou dérivés :

ProduitEssenceProvenances (lieu de croissance du bois)Marque et certification produitFinitionTraitements de préservation
Lame bois massifDouglasAucuneSaturateurJe n'ai pas l'information

Menuiserie intérieure et extérieure

Isolation des murs

Isolation intérieure des murs :

Produit
Laine de bois souple
Epaisseur (mm) Isolation intérieure des murs : 50

Isolation entre-montant des murs :

Produit
Laine de bois souple
Epaisseur (mm) Isolation entre-montant des murs : 145

Isolation extérieure des murs :

Produit
Fibre de bois (Panneaux)
Epaisseur (mm) Isolation extérieure des murs : 30

Isolation de la toiture

Epaisseur (mm) Isolation entre-montant de la toiture : 300

Approche environnementale : - Vivre en ville pour favoriser les transports doux - Ossature bois - Bardage bois et pierre pour les faces sud fragiles - 100% laine de bois, y compris dans les cloisons et plafonds - Fermacell

Descriptif technique : La maison s’encre sur un sous-sol maçonné. De là elle est montée en panneaux MOB prêts à recevoir leurs vêtures. Le véritable Granit a une épaisseur permettant de ne pas dépasser les 40 kg/m² et se coller contre des plaques de Knauf Aquaplanel. Une terrasse panoramique au R+2 est en membrane EPDM + platelage bois. La toiture est constituées d’une charpente en I reconstitués supportant un bac acier puis un bardage en parfaite continuité de la façade. Le bardage est en trois largeurs, à bord arrondi, saturé noir profond. Tous les réseaux sont masqués derrière le bardage.

Chauffage au Bois : oui
Appareil de chauffage au bois : Poële/insert
Certifications, labels et marques bâtiment : Poële/insert
Données déclaratives

Acteurs du projet

Maître d'ouvrage (1)

Maître d'ouvrage - Particuliers

particulier (x)

Etudes et ingénieries (1)

Maître d'œuvre - Architecte mandataire

STUDIO JAOUEN (34)

Entreprises des lots bois (2)

Charpentier

ISO Construction (35)

Menuisier

ISO Construction (35)




* : L'entreprise n'est plus active
Retour à la liste