Réhabiliter un logement
Réhabiliter un logement

Nouvelle Vie

44214 Pornic - Loire Atlantique - Pays de la Loire

BÂTIMENT / LOGEMENT

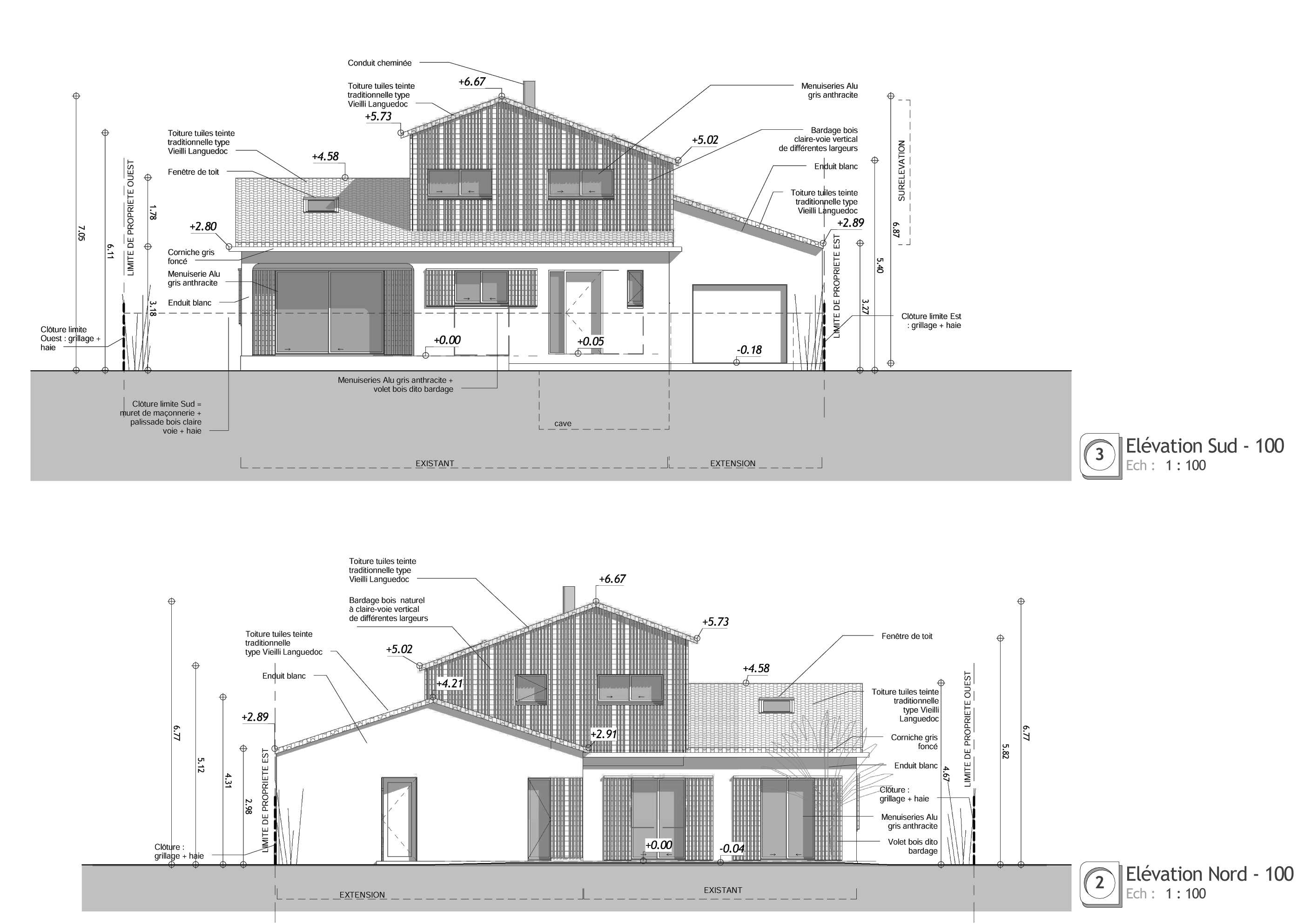
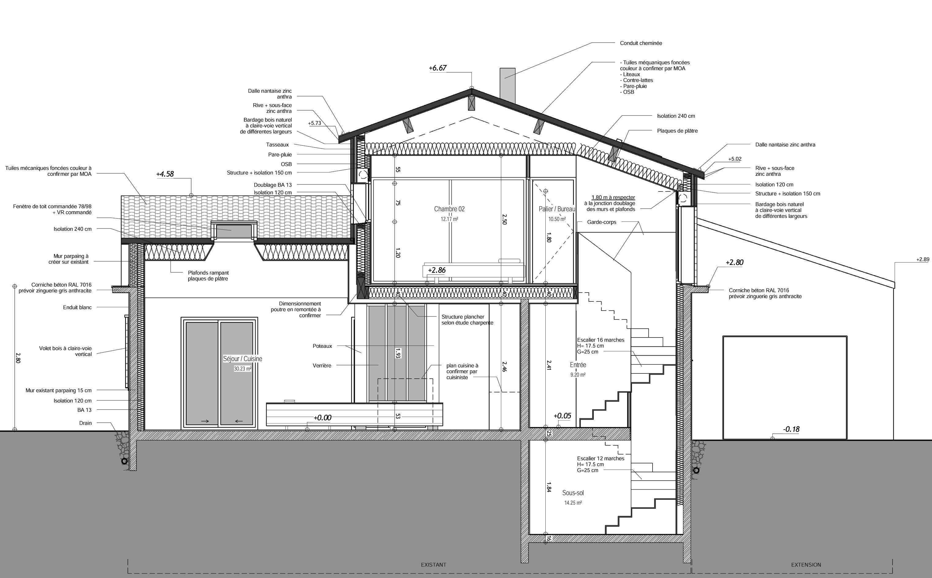
Pour ce projet de rénovation, d' extension et de surélévation, nous souhaitions que chaque volume ajouté se démarque de l'existant. Le rez de chaussée est transformé et agrandi par l'ajout d'une suite parentale côté jardin. La surélévation, intégralement en ossature bois, accueille les chambres des enfants. Il s'agit d'un volume asymétrique, bardé verticalement de planches douglas posées en claire-voie. Ce calepinage est réutilisé sur l'ensemble des volets coulissants installés sur les murs maçonnés existants, créant ainsi un fil conducteur esthétique en façades.

Catégorie Bâtiment / logement
Numéro de projet1718
Date de candidature26/02/2019

Bâtiment / logement

Détail projet

Typologie de bâtiment : Extension / surélévation
Type de bâtiment : Logement individuel supérieur à 120 m²
Année de livraison : 2018
Surface totale du bâtiment en m² : 164
Lot bois n°1 concerné : Charpente bois
Lot bois n°2 concerné : Bardage bois
Bois Français : oui

Structure bois du bâtiment

Structure verticale :

ProduitEssenceProvenances (lieu de croissance du bois)Traitements de préservationMarque et certification produit
Panneau ossature bois

Structure horizontale :

ProduitEssenceProvenances (lieu de croissance du bois)Traitements de préservationMarque et certification produit
Solivage traditionnelÉpicéa commun

Charpente :

ProduitEssenceProvenances (lieu de croissance du bois)Traitements de préservationMarque et certification produit
Charpente traditionnelleÉpicéa commun

Revêtement bois extérieur

Revêtement bois ou dérivés :

ProduitEssenceProvenances (lieu de croissance du bois)Marque et certification produitFinitionTraitements de préservation
Lame bois massifDouglas

Menuiserie intérieure et extérieure

Menuiserie extérieure :

ProduitEssenceProvenances (lieu de croissance du bois)Marque et certification produitFinition
Volet boisDouglas

Isolation des murs

Epaisseur (mm) Isolation intérieure des murs : 45
Epaisseur (mm) Isolation entre-montant des murs : 140

Isolation de la toiture

Epaisseur (mm) Isolation intérieure de la toiture : 240

Approche environnementale : Ce projet a été travaillé pour offrir à notre cliente une maison saine, lumineuse, chaleureuse et bien isolée. La maison ainsi rénovée est largement ouverte au sud - ouest. Le chauffage est assuré par une chaudière à condensation

Descriptif technique : Au delà de l'esthétique recherchée pour ce projet, la mise en œuvre d'une ossature bois permet aussi une optimisation des délais de réalisation. Le plancher, les murs, la charpente, et les volets sont réalisés en bois.

Chauffage au Bois : non
Données déclaratives

Acteurs du projet

Etudes et ingénieries (1)

Maître d'œuvre - Architecte mandataire

Eric Piton Architecte (44)

Entreprises des lots bois (3)

Charpentier

IFP BOIS (44)
IFP BOIS (44)
IFP BOIS (44)




* : L'entreprise n'est plus active
Retour à la liste