Réhabiliter un équipement
Réhabiliter un équipement

Restructuration Extension restaurant accueil periscolaire

49390 VERNANTES - Maine et Loire - Pays de la Loire

BÂTIMENT / LOGEMENT

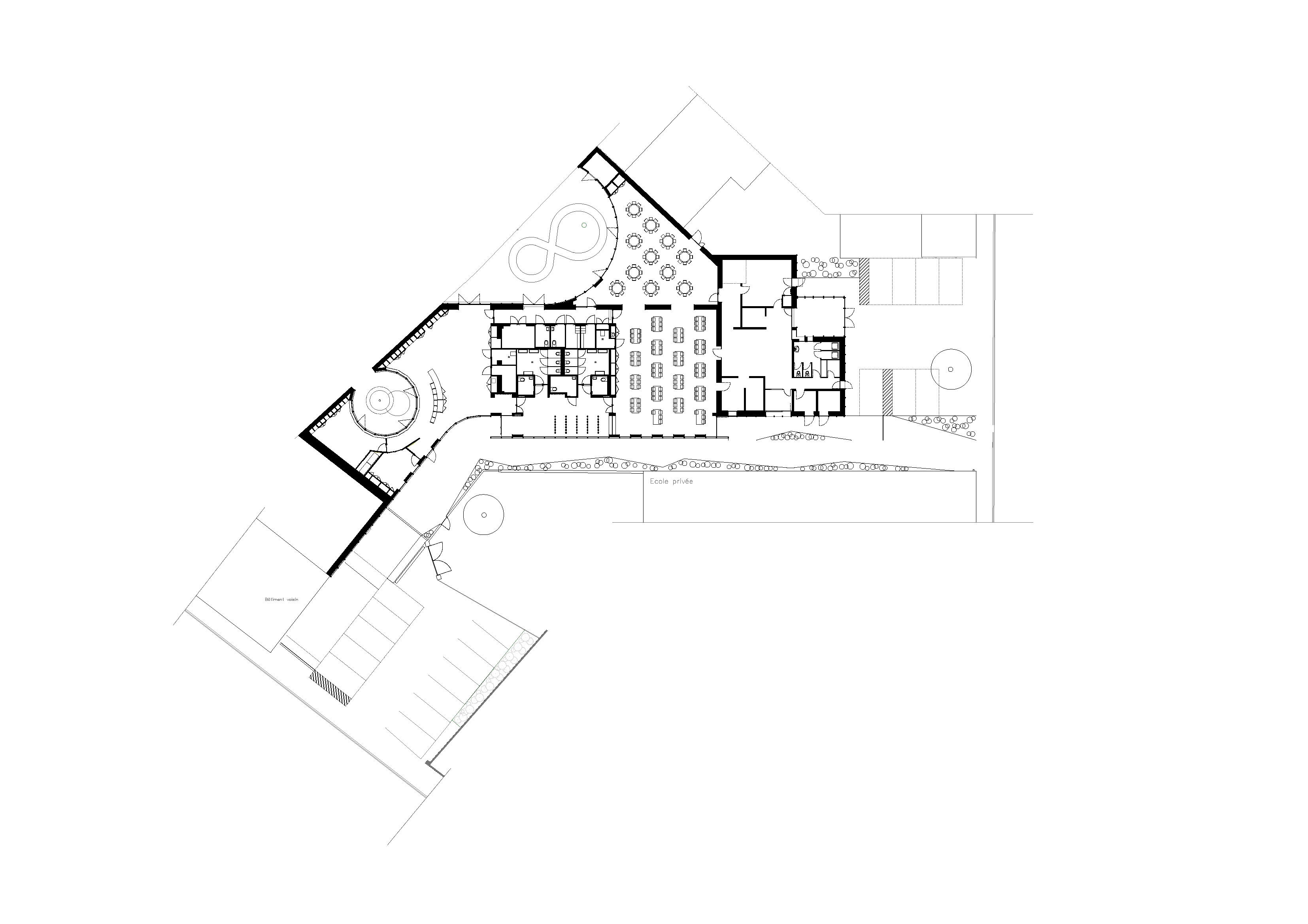
L'objectif étant d'identifier les usages, tout en contribuant à la requalification du bâti en lien avec son environnement, les nouvelles extensions traitées en toitures terrasses se déploient autour du bâtiment existant et s'alignent en hauteur sans rupture. Les formes curvilignes des extensions viennent exalter la volumétrie de l'existant. Compte tenu de l’exiguïté de la parcelle et l’ambition du programme, le projet s’implante en rapport avec l’existant, notamment la présence d’arbres hautes tiges, qui déterminent la création de patios assurant l’éclairage naturel des différents espaces.

Catégorie Bâtiment / logement
Numéro de projet1661
Adresse du projet Rue de Longué
49390 VERNANTES
Date de candidature25/02/2019

Bâtiment / logement

Détail projet

Typologie de bâtiment : Extension / surélévation,Rénovation / Réhabilitation
Type de bâtiment : Enseignement ou éducation
Année de livraison : 2018
Surface totale du bâtiment en m² : 536
Coût total en € HT (hors foncier, hors VRD, hors honoraires) : 967648.73
Lot bois n°1 concerné : Charpente bois
Coût du lot bois n°1 - € HT : 203189.74
Lot bois n°2 concerné : Menuiserie intérieure bois
Coût du lot bois n°2 - € HT : 83016.75
Bois Français : oui

Structure bois du bâtiment

Structure verticale :

ProduitEssenceProvenances (lieu de croissance du bois)Traitements de préservationMarque et certification produit
Panneau ossature boisDouglasPays-de-la-LoireAucun traitement

Structure horizontale :

ProduitEssenceProvenances (lieu de croissance du bois)Traitements de préservationMarque et certification produit
Plancher béton

Charpente :

ProduitEssenceProvenances (lieu de croissance du bois)Traitements de préservationMarque et certification produit
Charpente bois lamellé-colléDouglasFranceJe n'ai pas l'information

Revêtement bois extérieur

Revêtement bois ou dérivés :

ProduitEssenceProvenances (lieu de croissance du bois)Marque et certification produitFinitionTraitements de préservation
Lame bois massifDouglasFranceSaturateurAucun traitement

Menuiserie intérieure et extérieure

Isolation des murs

Isolation intérieure des murs :

Produit
Laine de roche
Epaisseur (mm) Isolation intérieure des murs : 80

Isolation entre-montant des murs :

Produit
Laine de verre
Epaisseur (mm) Isolation entre-montant des murs : 145

Isolation de la toiture

Epaisseur (mm) Isolation intérieure de la toiture : 100
Epaisseur (mm) Isolation extérieure de la toiture : 130

Approche environnementale : En réponses aux dispositifs d'isolation thermique par l'extérieur, l’opportunité d’un habillage complet des façades a permis de simplifier l’écriture de l'enveloppe. Le rythme des lames horizontales en bois douglas cadrées de montants verticaux réinterprète le traitement des façades en bois des vieux hangars ruraux. Le choix d’une teinte claire du bois apportera chaleur et s’harmonisera avec les constructions en pierres de tuffeau ou enduit environnant. La nouvelle enveloppe habille désormais uniformément le bâti et participe à la composition cohérente de l'ensemble.

Descriptif technique : La nécessité technique de rationaliser la construction par rapport aux contraintes de l’existant, de sécurité incendie, sismicité, tout en mettant en œuvre des solutions environnementales a conduit au choix mixte d’une structure préfabriqué de type ossature bois, couplée aux ouvrages de superstructure existants maçonnés conduisant à la diminution des ponts thermiques. Le bardage se compose de montant verticaux à rythme régulier et de lames horizontales posées à clins. Les bois sont traités avec une finition par saturateur effet blanchi pour obtenir une teinte claire.

Chauffage au Bois : non
Données déclaratives

Acteurs du projet

Maître d'ouvrage (1)

Maître d'ouvrage - Services publics

Mairie de Vernantes (49)

Etudes et ingénieries (4)

Maître d'œuvre - Architecte mandataire

Atome Architectes (49)

Bureau d'études acoustique

Db Acoustic (49)

Bureau d'études structure bois

Even Structures (49)

Bureau d'études thermique

AB Ingénierie (49)

Entreprises des lots bois (2)

Charpentier

SOCIETE LA CHARPENTE THOUARSAISE (79)

Menuisier

SARL PARCHARD (49)




* : L'entreprise n'est plus active
Retour à la liste