Réhabiliter un équipement
Réhabiliter un équipement

Etablissement Régional d'Enseignement Adapté

22105 TADEN - Côtes d'Armor - Bretagne

BÂTIMENT / LOGEMENT

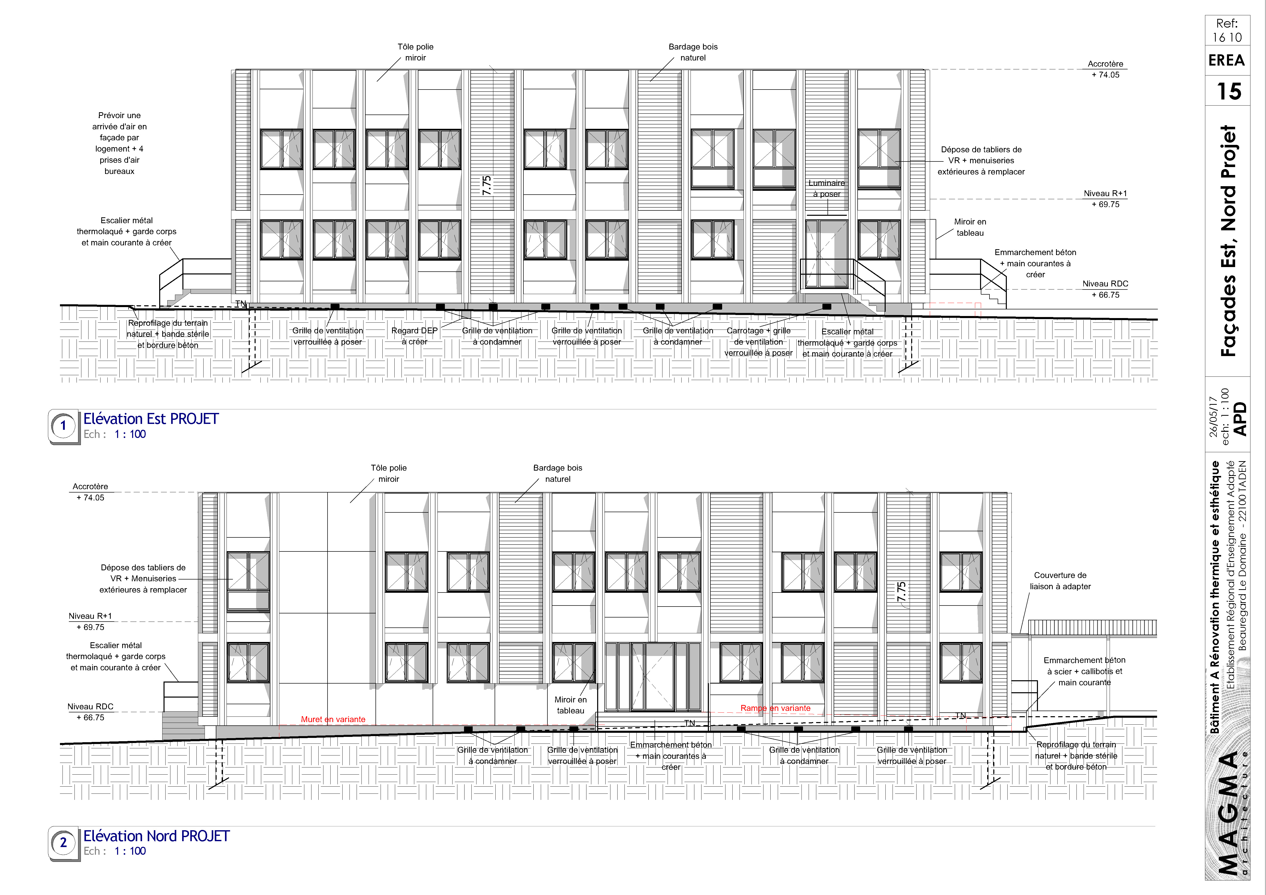
Situé à l’entrée du site, ce bâtiment d’accueil administratif s’inscrit dans un ensemble de bâtiments marqués par des façades béton très tramées et répétitives. La rénovation thermique de ces façades a été l’occasion de transformer l’écriture architecturale existante tout en la respectant. Le rythme de la façade est embelli par un travail de composition du bardage et les détails d’assemblages de la charpente bois. Le bardage inox brossé avec ces différentes inclinaisons joue avec la lumière et l’environnement proche ; et les éléments de bois massif le fond ressortir.

Catégorie Bâtiment / logement
Numéro de projet1491
Adresse du projet Beauregard Le domaine
22105 TADEN
Date de candidature21/02/2019

Bâtiment / logement

Détail projet

Typologie de bâtiment : Rénovation / Réhabilitation
Type de bâtiment : Enseignement ou éducation
Année de livraison : 2018
Surface totale du bâtiment en m² : 1000
Coût total en € HT (hors foncier, hors VRD, hors honoraires) : 708000
Lot bois n°1 concerné : Charpente bois
Coût du lot bois n°1 - € HT : 315000
Lot bois n°2 concerné : Aucun
Bois Français : oui

Structure bois du bâtiment

Structure verticale :

ProduitEssenceProvenances (lieu de croissance du bois)Traitements de préservationMarque et certification produit
Panneau ossature boisDouglas

Structure horizontale :

ProduitEssenceProvenances (lieu de croissance du bois)Traitements de préservationMarque et certification produit
Non précisé

Charpente :

ProduitEssenceProvenances (lieu de croissance du bois)Traitements de préservationMarque et certification produit
Charpente traditionnelleDouglas

Revêtement bois extérieur

Revêtement bois ou dérivés :

ProduitEssenceProvenances (lieu de croissance du bois)Marque et certification produitFinitionTraitements de préservation
Lame bois massifDouglas

Autre revêtement métallique :

Produit
Alu

Menuiserie intérieure et extérieure

Isolation des murs

Epaisseur (mm) Isolation entre-montant des murs : 210

Isolation de la toiture

Epaisseur (mm) Isolation extérieure de la toiture : 240
Chauffage au Bois : non
Données déclaratives

Acteurs du projet

Maître d'ouvrage (1)

Maître d'ouvrage - État ou collectivité (locale et territ)

REGION BRETAGNE (CONSEIL REGIONAL DE BRETAGNE) (35)

Etudes et ingénieries (1)

Maître d'œuvre - Architecte mandataire

MAGMA 3.0 (MAGMA ARCHITECTURE) (35)

Entreprises des lots bois (2)

Charpentier

Sas Belliard - Groupe LB (53)

Autre lot de la construction (en lien avec le bois)

SNPR (35)




* : L'entreprise n'est plus active
Retour à la liste