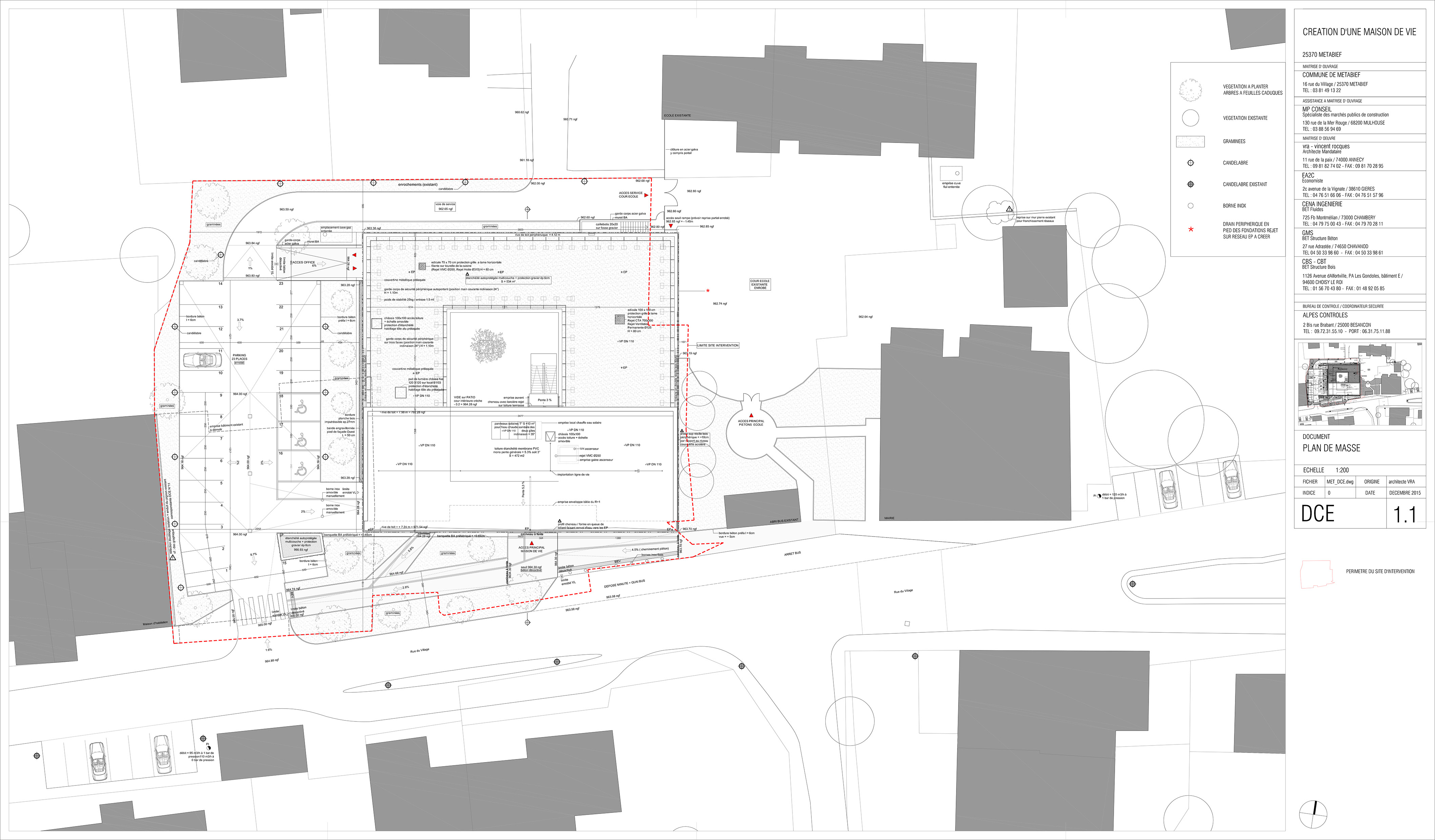
Ce projet pour la maison de vie de Métabief dévoile une architecture contemporaine engagée et inspirée du lieu. Elle répond à des objectifs programmatiques et urbains pour insérer une nouvelle fonction publique et sociale dans le centre bourg du village. Le concept architectural, son implantation, sa forme urbaine, sa volumétrie et ses solutions techniques répondent à ces enjeux. Cette architecture s'installe le long d'un axe historique dans le centre bourg de Métabief. Elle fédère et ponctue dans la continuité des bâtiments publics existants (mairie et église) la vie du centre bourg. Le Parvis couvert et la présence de la médiathèque en alignement avec le domaine public conforte son statut de nouvelle pièce urbaine. Quant aux aménagements paysagers extérieurs, ils participent à cette continuité urbaine pour assurer le flux des modes doux jusqu’à présent intérompus sur cet axe. La composition des plans de niveau opèrent une organisation fonctionnelle s'organisant autour d'un patio central. Ce vide intérieur permet des apports de lumière naturelle en toute intimité. Ce patio caractéristique par son revêtement de sol en caoutchouc de couleur verte est arboré d'un érable du Japon. L'architecture de cette maison de vie invite au bien-être et à la sérénité.
Catégorie | Bâtiment / logement |
---|---|
Numéro de projet | 1489 |
Adresse du projet |
16 route de l'église 25370 METABEIF |
Date de candidature | 31/05/2018 |
Structure verticale :
Produit | Essence | Provenances (lieu de croissance du bois) | Traitements de préservation | Marque et certification produit | |
---|---|---|---|---|---|
Panneau ossature bois | Douglas | Grand-Est | Je n'ai pas l'information |
Structure horizontale :
Produit | Essence | Provenances (lieu de croissance du bois) | Traitements de préservation | Marque et certification produit | |
---|---|---|---|---|---|
Plancher béton |
Charpente :
Produit | Essence | Provenances (lieu de croissance du bois) | Traitements de préservation | Marque et certification produit | |
---|---|---|---|---|---|
Charpente traditionnelle | Douglas | Grand-Est | Je n'ai pas l'information |
Revêtement bois ou dérivés :
Produit | Essence | Provenances (lieu de croissance du bois) | Marque et certification produit | Finition | Traitements de préservation |
---|---|---|---|---|---|
Bardeau bois | Douglas | Grand-Est | Saturateur | Traitement Classe 3a (trempage) |
Autre revêtement métallique :
Produit | |||||
---|---|---|---|---|---|
Alu |
Menuiserie extérieure :
Produit | Essence | Provenances (lieu de croissance du bois) | Marque et certification produit | Finition | |
---|---|---|---|---|---|
Menuiserie bois | Épicéa commun | Grand-Est | pré-grisé |
Isolation intérieure des murs :
Produit | |||||
---|---|---|---|---|---|
Laine de verre |
Isolation entre-montant des murs :
Produit | |||||
---|---|---|---|---|---|
Laine de verre |
Approche environnementale : Ce projet tente de donner une réponse architecturale à la fois contemporaine et inspiré de l'architecturale vernaculaire local en réinterprétant la morphologie des bâtiments agricoles que l'on trouve dans la région. Cela passe par une forme architecturale intégrale et minimale par le biais d'une résille bois à claire voie (pré grisaillée) se déroulant sur l'ensemble des 4 façades du projet. Pour limiter le débit du rejet des eaux pluviales sur le réseau communal, une toiture terrasse végétalisée de 535 m2 a été mise en place. Elle assure aussi un confort et une continuité visuelle avec le grand paysage vallonné depuis les chambres de l’étage. Le dessin des façades et le choix des ouvertures vont en fonction des éléments programmatiques, des vues paysagères et de leurs expositions par rapport aux points cardinaux. Le choix des matériaux et leurs traitements ont été choisis pour assurer une maintenance contrôlée dans le temps. Quant aux aménagements intérieurs, le choix des matériaux favorise le béton brut, panneautage bois acoustique, plafond acoustique en fibre de bois et mobilier bois intégré. Ce projet met en valeur la lumière naturelle par le biais d'un patio central tout en assurant un contrôle des surchauffes climatiques et de l’éblouissement par une occultation solaire extérieure motorisée. Les sols sont majoritairement en linoléum. Une ventilation double flux irrigue l’ensemble les locaux de vie. Pour assurer un meilleur confort therminique et efficience énergétique, l’ensemble de l’enveloppe du bâtiment est isolé par l’extérieur.
Descriptif technique : Ce projet utilise la technique du béton banché et préfabriqué pour la réalisation du socle maçonné permettant l'adaptation au sol suivant la topographie du site. Ce socle est constitué de voiles béton assurant l'organisation fonctionnelle des espaces servants et servis de la partie accessible au public du RDC. Ils permettent aussi à contreventer la structure en ossature bois y compris charpente, réalisé en R+1, niveau dédié à 2 logements saisonniers. L'ensemble de l'enveloppe bâtie est isolée par l'extérieur avec un parement bois type panneau 3 plis et enduit grésé sur isolant rigide suivant les façades. L'ensemble de ces façades reçoivent une résille en bois à claire voie d'essence Douglas traitée avec un saturateur de chez swiss silver protect agissant comme prégrisaillement. Les isolants sont en laine de verre avec 180 mm en vertical et 300 mm en toiture et couverture. Une ventilation double flux (située dans le sous-bassement du socle béton) traite l'ensemble des locaux de vie. Le chauffage fonctionne au gaz avec un système de plancher chauffant hydraulique. L'étanchéité à l'air du volume est de type passivhauss. Les menuiseries extérieures du RDC sont réalisées avec un mur rideau aluminium et les menuiseries extérieures du R+1 en bois d’essence épicéa. NF Logement Démarche HQE
Chauffage au Bois : nonAGENCE VINCENT ROCQUES ARCHITECTES (74)
CHARPENTE PONTARLIER SARL (25)