Réhabiliter un équipement
Réhabiliter un équipement

Office de Tourisme du lac de Trémelin

35750 IFFENDIC - Ille et Vilaine - Bretagne

BÂTIMENT / LOGEMENT

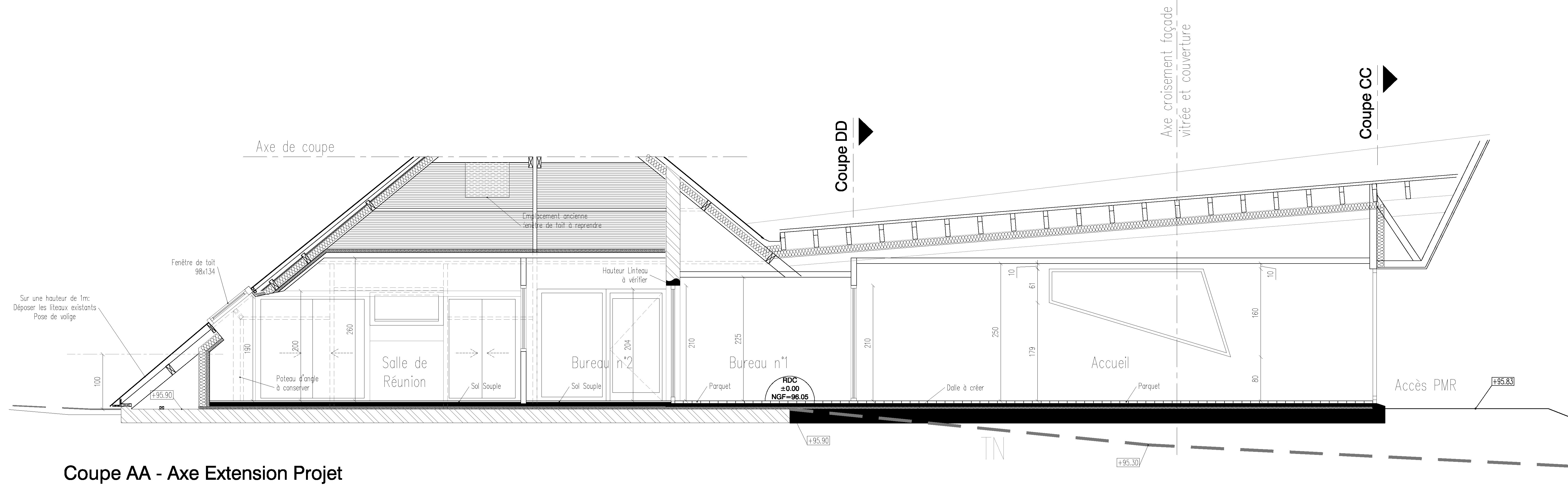
Situé au bord du lac et de la forêt de Trémelin, ce projet discret et remarqué tire parti de la forme pyramidale de l’existant pour créer un objet ciselé et dynamique. Face à l’extension, un préau, prolongé par un banc, referme l’espace pour créer un parvis et guider le public. L'espace d’accueil, largement ouvert sur le paysage, reprend l’écriture architecturale de l’enveloppe extérieure. Le débord de toit se retourne en intérieur pour former un plafond bois, découpé et ondulant. L’agencement, le parquet, le mobilier en chêne massif, prolongent cette esthétique intérieure chaleureuse.

Catégorie Bâtiment / logement
Numéro de projet1474
Adresse du projet Domaine de Trémelin
35750 IFFENDIC
Date de candidature20/02/2019

Bâtiment / logement

Détail projet

Typologie de bâtiment : Extension / surélévation
Type de bâtiment : Service institutionnel et public
Année de livraison : 2018
Surface totale du bâtiment en m² : 192
Coût total en € HT (hors foncier, hors VRD, hors honoraires) : 276000
Lot bois n°1 concerné : Charpente bois
Volume lot bois n°1 - m³ : 7
Coût du lot bois n°1 - € HT : 59000
Lot bois n°2 concerné : Menuiserie intérieure bois
Volume lot bois n°2 - m³ : 6
Coût du lot bois n°2 - € HT : 27000
Bois Français : oui

Structure bois du bâtiment

Structure verticale :

ProduitEssenceProvenances (lieu de croissance du bois)Traitements de préservationMarque et certification produit
Poteau poutrePin maritimeBretagneTraitement Classe 2 (trempage)

Structure horizontale :

ProduitEssenceProvenances (lieu de croissance du bois)Traitements de préservationMarque et certification produit
Solivage traditionnelPin maritimeBretagneTraitement Classe 2 (trempage)

Charpente :

ProduitEssenceProvenances (lieu de croissance du bois)Traitements de préservationMarque et certification produit
Charpente traditionnellePin maritimeBretagneTraitement Classe 2 (trempage)

Revêtement bois extérieur

Revêtement bois ou dérivés :

ProduitEssenceProvenances (lieu de croissance du bois)Marque et certification produitFinitionTraitements de préservation
Lame bois massifChêneBretagneAucune finitionAucun traitement

Menuiserie intérieure et extérieure

Isolation des murs

Isolation intérieure des murs :

Produit
Laine de verre
Epaisseur (mm) Isolation intérieure des murs : 50

Isolation entre-montant des murs :

Produit
Laine de verre
Epaisseur (mm) Isolation entre-montant des murs : 220

Isolation de la toiture

Epaisseur (mm) Isolation intérieure de la toiture : 240

Approche environnementale : C’est avec les bois de la commune d’Iffendic qu’a été réalisé ce projet. De la charpente traditionnelle en passant par les murs ossature bois, le bardage ou l’agencement intérieur, le parquet ou le plafond, l'ensemble de ces ouvrages bois ont été réalisés en pin maritime et en chêne massif issus de la forêt communale. Ce circuit local avait la volonté de construire un équipement exemplaire au plan environnemental.

Chauffage au Bois : oui
Appareil de chauffage au bois : Poële/insert
Données déclaratives

Acteurs du projet

Maître d'ouvrage (1)

Maître d'ouvrage - État ou collectivité (locale et territ)

CC Montfort Communauté (35)

Etudes et ingénieries (1)

Maître d'œuvre - Architecte mandataire

MAGMA 3.0 (MAGMA ARCHITECTURE) (35)

Entreprises des lots bois (2)

Charpentier

DARRAS (35)

Menuisier

MENUISERIE LES PLATANES (35)

Fournisseurs du bois (2)

Scierie

ETABLISSEMENTS HAMON (22)
SCIERIE LEBIGOT (35)




* : L'entreprise n'est plus active
Retour à la liste