Habiter une maison
Habiter une maison

Maison Grand angle

26170 Mérindol les Oliviers - Drôme - Auvergne-Rhône-Alpes

BÂTIMENT / LOGEMENT

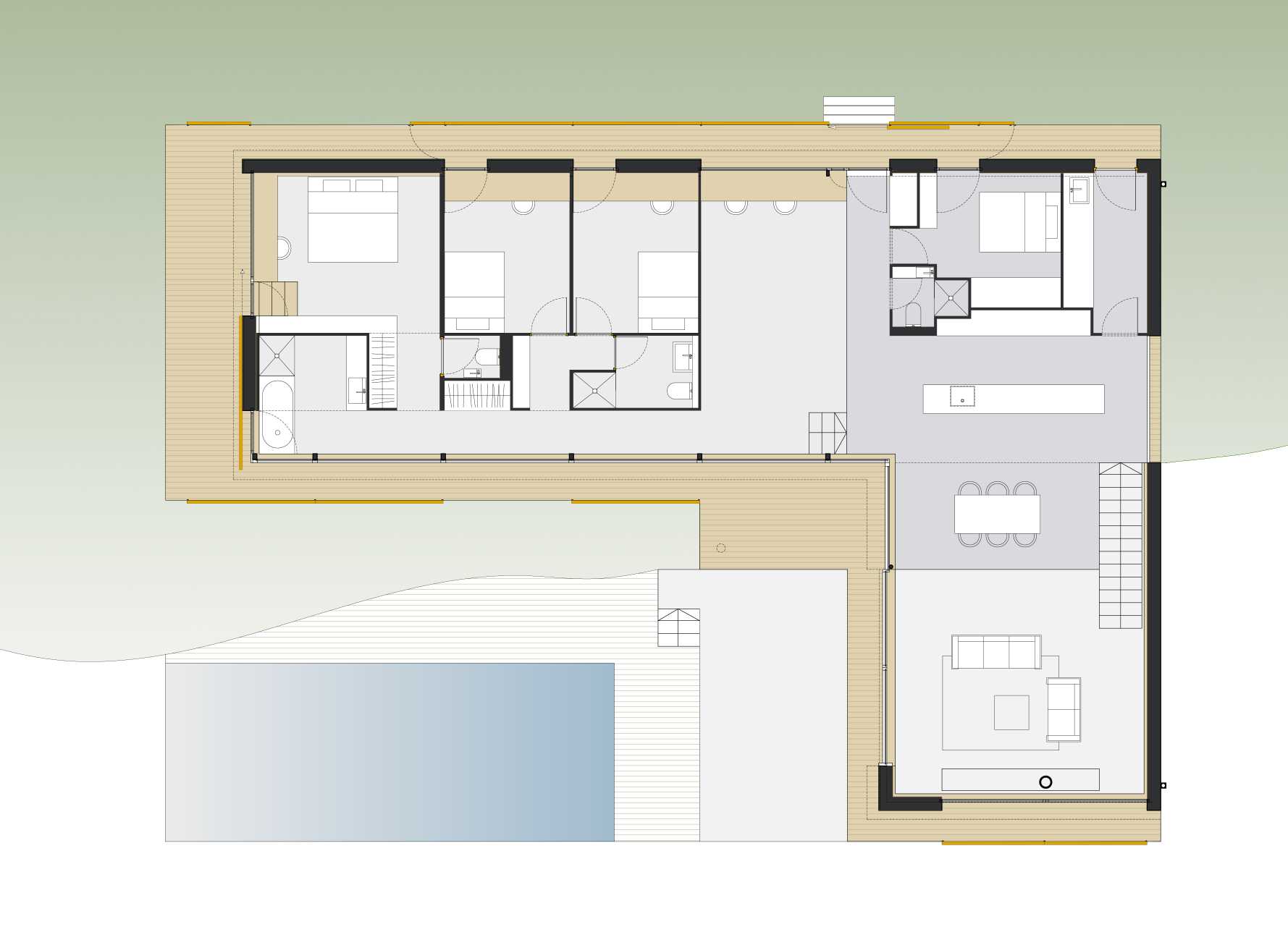
La maison est posée sur un terrain rocheux, en pente, orienté Est-Ouest. elle se modèle à ce relief tout en cherchant la meilleure orientation face à la course du soleil. Mais plus que tout, elle s'ouvre sur une vue englobant les vignes, les collines, le vieux Mérindol, le village et pleinement le mont Ventoux. La Vue est le fil conducteur qui accompagne en tout point dans la maison et qui justifie une baie vitrée de 23 m de long. Les matériaux sont utilisés bruts et leur texture naturelle crée le décors.

Catégorie Bâtiment / logement
Numéro de projet146
Date de candidature28/02/2018

Bâtiment / logement

Détail projet

Typologie de bâtiment : Neuf
Type de bâtiment : Logement individuel supérieur à 120 m²
Année de livraison : 2015
Surface totale du bâtiment en m² : 212
Coût total en € HT (hors foncier, hors VRD, hors honoraires) : 387635
Lot bois n°1 concerné : ossature bois
Coût du lot bois n°1 - € HT : 153704
Lot bois n°2 concerné : Menuiserie extérieure bois
Coût du lot bois n°2 - € HT : 78000

Structure bois du bâtiment

Structure verticale :

ProduitEssenceProvenances (lieu de croissance du bois)Traitements de préservationMarque et certification produit
Panneau de bois massif (CLT collé ou CLT cloué)EuropeJe n'ai pas l'information

Structure horizontale :

ProduitEssenceProvenances (lieu de croissance du bois)Traitements de préservationMarque et certification produit
Panneau de bois massif (CLT collé ou CLT cloué)Épicéa communEuropeJe n'ai pas l'information

Charpente :

ProduitEssenceProvenances (lieu de croissance du bois)Traitements de préservationMarque et certification produit
Panneau massifÉpicéa communEuropeJe n'ai pas l'information

Revêtement bois extérieur

Revêtement minéral :

Produit
Enduit ciment

Menuiserie intérieure et extérieure

Menuiserie extérieure :

ProduitEssenceProvenances (lieu de croissance du bois)Marque et certification produitFinition
Brise soleil boisMélèzeEuropeHuile
Menuiserie boisChâtaignierAuvergne-Rhône-Alpes

Isolation des murs

Isolation extérieure des murs :

Produit
Fibre de bois (Panneaux)
Epaisseur (mm) Isolation extérieure des murs : 240

Isolation de la toiture

Epaisseur (mm) Isolation extérieure de la toiture : 320

Approche environnementale : C'est une maison avant tout orientée. Le choix des matériaux et leur position ont été définis dans une recherche de confort passif : Recherche de l'inertie par un socle maçonné en béton banché doublé de pierre inscrit dans la sol; Confort thermique et hygrométrique par des murs et plafonds en panneaux CLT laissés bruts en intérieur et isolés par de la fibre de bois à l'extérieur; Triple vitrage doublé de brise soleil en protection pour toutes les fenêtres orientées Est et Ouest et prenant le rayonnement bas et rentrant du soleil; casquette large de protection pour les ouvertures au Sud.

Descriptif technique : Socle maçonné en béton banché laissé apparent en intérieur. Structure principale (murs et plafonds) en CLT épicéa laissé brut en intérieur : panneaux de 62 mm en vertical, avec ITE en fibre de bois de 24 cm + enduit perspirant et caissons de 160 mm remplis de fibre de bois et recouverts de 200 mm de ouate de cellulose. Ensemble avec un très bon comportement à la fois thermique et hygrométrique. Double ou triple vitrages selon exposition. Brises soleil garantissant les baies vitrée orientée Est et Ouest. ECS par panneau solaire. VMC hygro B. Eclairage leds. Chauffage ponctuel au bois

Chauffage au Bois : oui
Appareil de chauffage au bois : Poële/insert
Données déclaratives

Acteurs du projet

Etudes et ingénieries (3)

Maître d'œuvre - Architecte mandataire

ATELIER GRAF (26)

Bureau d'études structure bois

Etudes Bois du Barrois (55) *

Bureau d'études thermique

Cohérence Habitat (84)

Entreprises des lots bois (2)

Menuisier

VLB2 (VIVE LE BOIS) (26)

Constructeur bois

DURRIEUX (84)




* : L'entreprise n'est plus active
Retour à la liste