Habiter ensemble
Habiter ensemble

Construction de 13 maisons individuelles groupées à Mimizan

40200 MIMIZAN - Landes - Nouvelle-Aquitaine
Lauréat régional

BÂTIMENT / LOGEMENT

Ces 13 logements sociaux ont vu le jour fin 2018, grâce à XL Habitat, bailleur social des Landes, sollicité par la Commune de Mimizan. Le terrain, en limite de zone forestière est long et étroit, point faible accentué par la nécessité d’un recul lié aux éventuels feux de forêt. Pour casser cette linéarité, les maisons sont décalées et les lignes de faîtage orientées perpendiculairement à la rue. Le jeu rythmé des façades pignons à deux pentes évoquant l’architecture balnéaire, associé au bardage traditionnel vertical, intègre parfaitement le projet dans ce lieu encore sauvage situé entre mer et forêt.

Catégorie Bâtiment / logement
Numéro de projet1451
Adresse du projet 10, rue des Tournesols
40200 MIMIZAN
Date de candidature19/02/2019

Bâtiment / logement

Détail projet

Typologie de bâtiment : Neuf
Type de bâtiment : Logement groupé
Année de livraison : 2018
Surface totale du bâtiment en m² : 897
Coût total en € HT (hors foncier, hors VRD, hors honoraires) : 1056129
Lot bois n°1 concerné : ossature bois
Volume lot bois n°1 - m³ : 34
Coût du lot bois n°1 - € HT : 165641
Lot bois n°2 concerné : Bardage bois
Volume lot bois n°2 - m³ : 31
Coût du lot bois n°2 - € HT : 65813
Bois Français : oui

Structure bois du bâtiment

Structure verticale :

ProduitEssenceProvenances (lieu de croissance du bois)Traitements de préservationMarque et certification produit
Panneau ossature boisPin maritimeNouvelle-AquitaineTraitement Classe 2 (trempage)

Structure horizontale :

ProduitEssenceProvenances (lieu de croissance du bois)Traitements de préservationMarque et certification produit
Solivage traditionnelPin maritimeNouvelle-AquitaineTraitement Classe 2 (trempage)

Charpente :

ProduitEssenceProvenances (lieu de croissance du bois)Traitements de préservationMarque et certification produit
Charpente traditionnellePin maritimeNouvelle-AquitaineTraitement Classe 2 (trempage)

Revêtement bois extérieur

Revêtement bois ou dérivés :

ProduitEssenceProvenances (lieu de croissance du bois)Marque et certification produitFinitionTraitements de préservation
Lame bois massifPin maritimeNouvelle-AquitaineSaturateurTraitement Classe 4 (autoclave)

Revêtement minéral :

Produit
Enduit ciment

Menuiserie intérieure et extérieure

Isolation des murs

Isolation intérieure des murs :

Produit
Laine de verre
Epaisseur (mm) Isolation intérieure des murs : 80

Isolation entre-montant des murs :

Produit
Laine de verre
Epaisseur (mm) Isolation entre-montant des murs : 145

Isolation de la toiture

Epaisseur (mm) Isolation intérieure de la toiture : 340

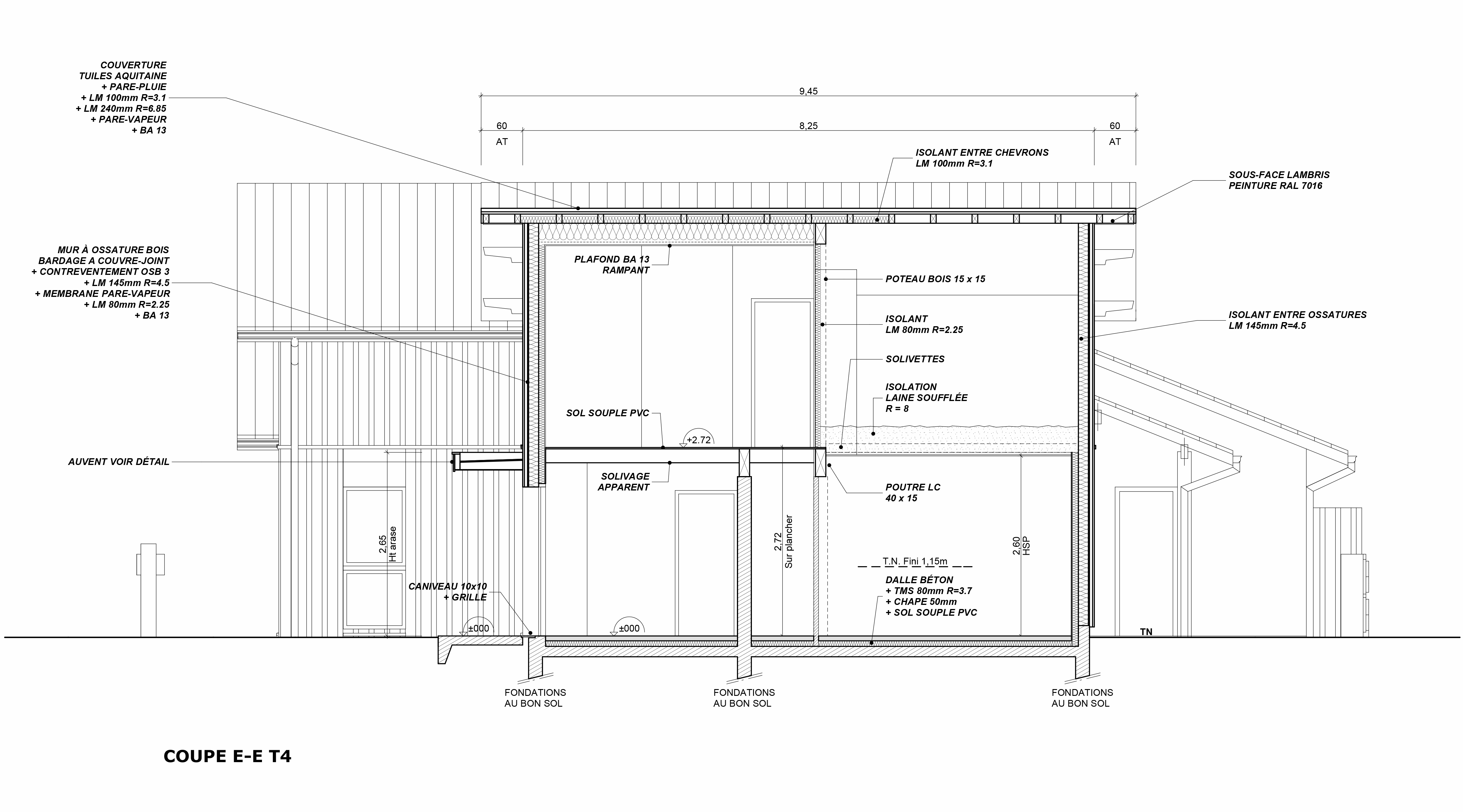
Approche environnementale : Les maisons sont toutes à ossature, charpente, plancher et bardage bois de provenance locale. L’ensemble est construit en pin maritime, hormis les garages restant en maçonnerie traditionnelle. La filière courte est totalement respectée, pour une enveloppe bois 100 % développement durable. Le chauffage et l’eau chaude sanitaire sont produits par une pompe à chaleur air-eau alimentant un ballon ECS thermodynamique et un plancher chauffant, chaque pièce étant équipée d’un système de régulation optimisant à la fois le confort thermique et les économies d’énergie.

Descriptif technique : L’enveloppe du bâtiment est constituée d’une ossature bois contre-ventée par des panneaux d’OSB avec isolation intégrée de 145 mm de laine de verre, d’un film d’étanchéité à l’air et d’un doublage intérieur isolé de 80 mm de laine de verre. Côté extérieur un pare-pluie assure l’étanchéité, avec pour vêture un bardage traditionnel en pin des Landes non raboté à couvre-joints verticaux. Les escaliers sont également en pin, tout comme les solivages des planchers laissés apparents dans les chambres. Pour affirmer cet effet chaleureux, les sols souples sont choisis « ton bois » pour un rendu très nature.

Chauffage au Bois : non
Certifications, labels et marques bâtiment : Bois de France
Données déclaratives

Acteurs du projet

Maître d'ouvrage (1)

Maître d'ouvrage - Bailleur social public

XL Habitat (40)

Etudes et ingénieries (5)

Maître d'œuvre - Architecte mandataire

IS ARCHITECTE (40)
REMI CAMIADE ARCHITECTE (40)

Bureau d'études structure bois

Cote Basque Etude CO.B.ET (64)

Bureau d'études thermique

ABEC (40)

Economiste

GESTION COORDINATION INFORMATIQUE (GCI) (40)

Entreprises des lots bois (1)

Charpentier

LAMARQUE MAISON ECO-BOIS (40)




* : L'entreprise n'est plus active
Retour à la liste