Réhabiliter un équipement
Réhabiliter un équipement

Extension de l'espace Chateaubriand

44550 Montoir de Bretagne - Loire Atlantique - Pays de la Loire

BÂTIMENT / LOGEMENT

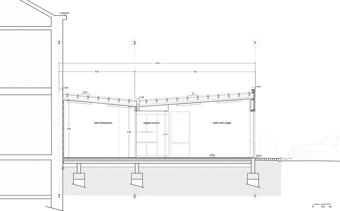
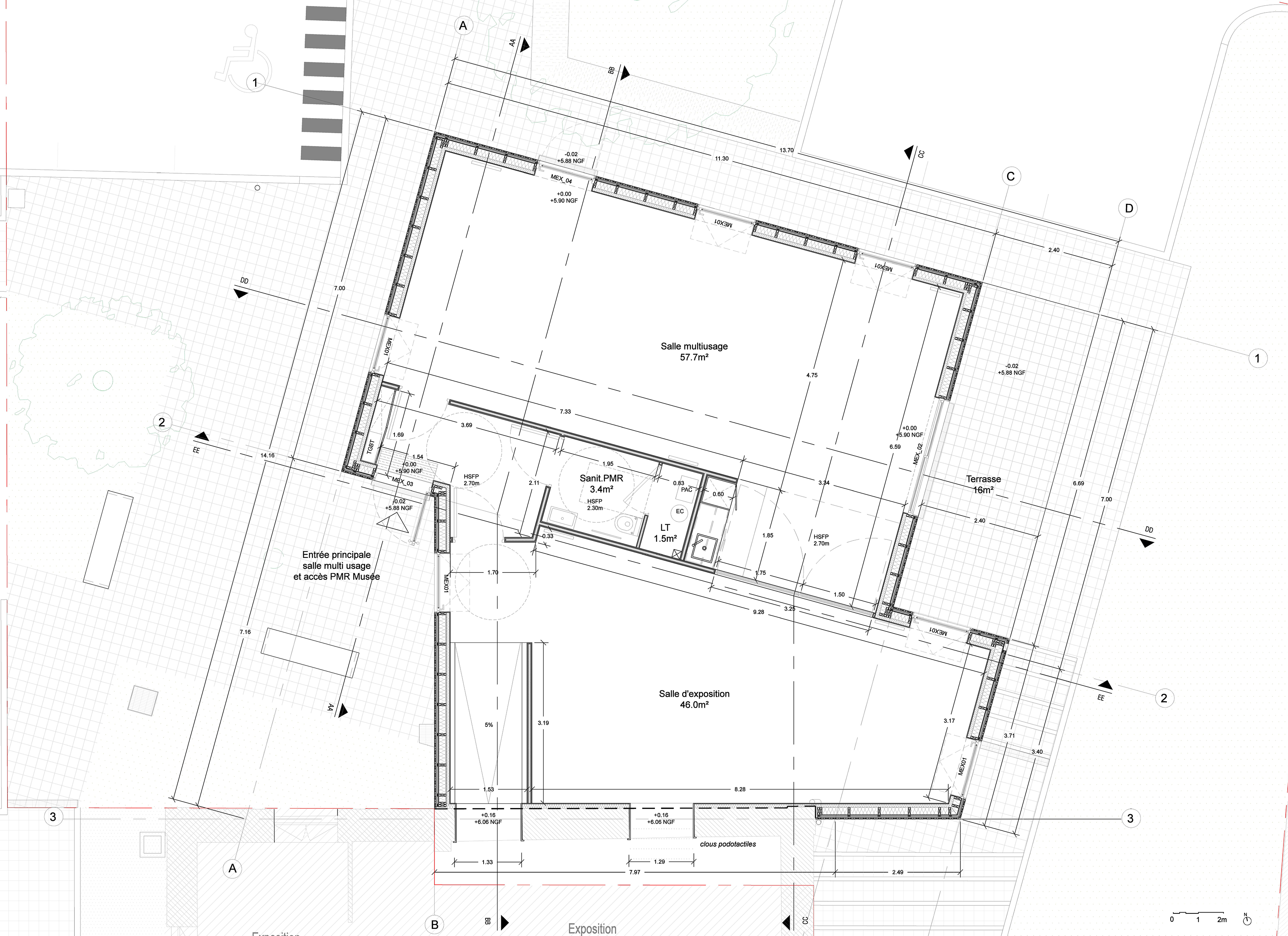
Le projet d’extension se base sur deux constats : - d’une part des espaces denses au sein du musée de la Marine en bois du Brivet ; - d’autre part, le besoin d’un espace de réunion et d’activité à destination des associations. Dans la continuité du bâtiment existant, l’enjeu du projet tient dans son insertion dans le contexte, en créant une nouvelle place et une entrée accessible PMR. Le projet s'adapte à l'évolution des usages : une cloison amovible permet de créer un seul espace suivant les besoins du musée. Le bardage fait référence aux coques de bateaux à l'époque goudronnées.

Catégorie Bâtiment / logement
Numéro de projet136
Adresse du projet 6 rue de Chateaubriand
44550 Montoir de Bretagne
Date de candidature27/02/2018

Bâtiment / logement

Détail projet

Typologie de bâtiment : Extension / surélévation
Type de bâtiment : Loisirs,Culture
Année de livraison : 2017
Surface totale du bâtiment en m² : 118
Coût total en € HT (hors foncier, hors VRD, hors honoraires) : 192000
Lot bois n°1 concerné : Bardage bois
Volume lot bois n°1 - m³ : 3
Coût du lot bois n°1 - € HT : 25000
Lot bois n°2 concerné : ossature bois
Coût du lot bois n°2 - € HT : 13700

Structure bois du bâtiment

Structure verticale :

ProduitEssenceProvenances (lieu de croissance du bois)Traitements de préservationMarque et certification produit
Panneau ossature boisJe n'ai pas l'information

Structure horizontale :

ProduitEssenceProvenances (lieu de croissance du bois)Traitements de préservationMarque et certification produit
Non précisé

Charpente :

ProduitEssenceProvenances (lieu de croissance du bois)Traitements de préservationMarque et certification produit
Charpente bois lamellé-colléMélèzeEuropeJe n'ai pas l'information

Revêtement bois extérieur

Revêtement bois ou dérivés :

ProduitEssenceProvenances (lieu de croissance du bois)Marque et certification produitFinitionTraitements de préservation
Lame bois massifBois brulé

Autre revêtement métallique :

Produit
Zinc

Menuiserie intérieure et extérieure

Isolation des murs

Epaisseur (mm) Isolation intérieure des murs : 100
Epaisseur (mm) Isolation entre-montant des murs : 200

Isolation de la toiture

Epaisseur (mm) Isolation intérieure de la toiture : 100
Epaisseur (mm) Isolation entre-montant de la toiture : 300

Approche environnementale : L'ensemble du bâtiment répond aux exigences de la RT2012 : pompe à chaleur, isolation performante. Le mode constructif en bois (ossature, charpente et bardage) a permis de réaliser un chantier propre.

Descriptif technique : Le bardage est en bois brûlé, technique d'origine japonaise appelée : shou-sugi-ban, elle permet de protéger naturellement les bois de bardage par carbonisation. Le bois utilisé est l'accoya qui a une durée de vie supérieure à 50 ans et est de classe 1 de durabilité naturelle.

Chauffage au Bois : non
Données déclaratives

Acteurs du projet

Maître d'ouvrage (1)

Maître d'ouvrage - État ou collectivité (locale et territ)

Mairie de Montoir de Bretagne (44)

Etudes et ingénieries (3)

Maître d'œuvre - Architecte mandataire

Atelier Luma.k (44)

Bureau d'études thermique

MONSIEUR SYLVAIN JOYEUX (44)

Economiste

BC ETC Economie et Techniques de la Construction (44)

Entreprises des lots bois (1)

Charpentier

Millet Charpente (44)




* : L'entreprise n'est plus active
Retour à la liste