Réhabiliter un équipement
Réhabiliter un équipement

Construction d’un niveau R+2 sur le bâtiment « Bureaux » - Siège Social des Transporteurs SARRION

17000 LA ROCHELLE - Charente maritime - Nouvelle-Aquitaine

BÂTIMENT / LOGEMENT

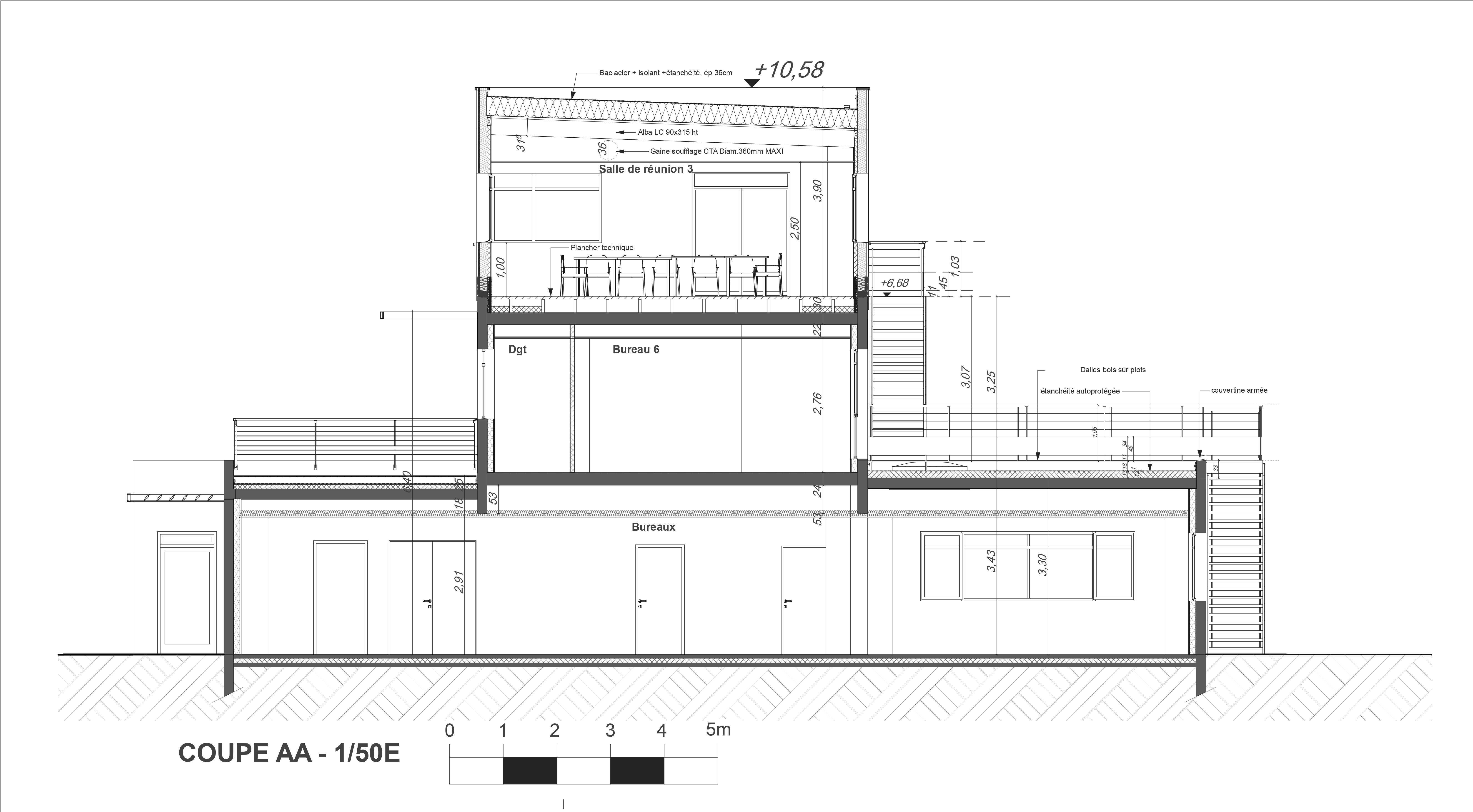
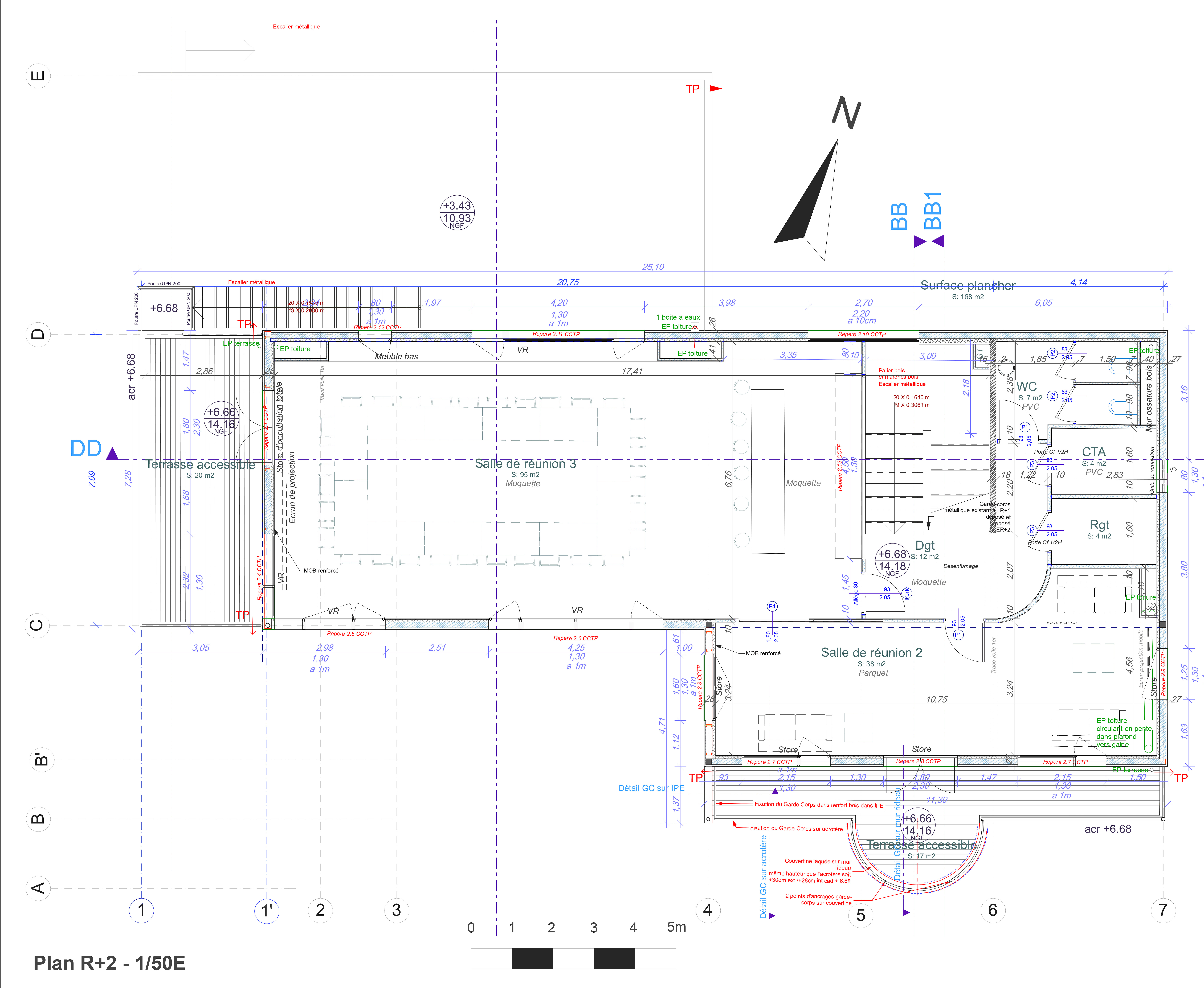
Le projet consiste à construire un second étage sur le bâtiment "bureaux" Siège Social afin de répondre au besoin d'extension de la société, sans empiéter sur les espaces extérieurs. Le RDC et R+1 sont construits en béton crépi avec un enduit type «Plastène» de teinte blanche et grise. La surélévation bois reprend ces nuances dans son bardage plan, créant ainsi une unité. Le recoupement des menuiseries du R+2 (vitrages de type Antélio bleu dito celles existantes) est ajusté dans le prolongement des percements des niveaux inférieurs. Le volume est souligné par un brise soleil (façade Sud).

Catégorie Bâtiment / logement
Numéro de projet1317
Adresse du projet Rue Samuel de Champlain
17000 LA ROCHELLE
Date de candidature11/02/2019

Bâtiment / logement

Détail projet

Typologie de bâtiment : Extension / surélévation
Type de bâtiment : Lieu d'entreprise
Année de livraison : 2017
Surface totale du bâtiment en m² : 167
Lot bois n°1 concerné : ossature bois
Coût du lot bois n°1 - € HT : 56580
Lot bois n°2 concerné : Bardage bois
Coût du lot bois n°2 - € HT : 27550
Bois Français : non

Structure bois du bâtiment

Structure verticale :

ProduitEssenceProvenances (lieu de croissance du bois)Traitements de préservationMarque et certification produit
Poteau poutreEuropeTraitement Classe 2 (trempage)

Structure horizontale :

ProduitEssenceProvenances (lieu de croissance du bois)Traitements de préservationMarque et certification produit
Poutre en I ou mixteÉpicéa communEuropeTraitement Classe 2 (trempage)

Charpente :

ProduitEssenceProvenances (lieu de croissance du bois)Traitements de préservationMarque et certification produit
Charpente bois lamellé-colléÉpicéa communEuropeTraitement Classe 2 (trempage)

Revêtement bois extérieur

Revêtement bois ou dérivés :

ProduitEssenceProvenances (lieu de croissance du bois)Marque et certification produitFinitionTraitements de préservation
Panneau de synthèse ou composite

Menuiserie intérieure et extérieure

Isolation des murs

Isolation intérieure des murs :

Produit
Laine de verre
Epaisseur (mm) Isolation intérieure des murs : 60

Isolation entre-montant des murs :

Produit
Laine de verre
Epaisseur (mm) Isolation entre-montant des murs : 145

Isolation de la toiture

Epaisseur (mm) Isolation extérieure de la toiture : 300

Approche environnementale : Le choix du bois pour cette extension en technique constructive et en matériaux d'habillage des façades et toiture, s'est imposé à nous comme choix écologique par excellence, pour ses hautes performances environnementales et son aspect esthétique (cibles d'éco-construction de la démarche HQE). La transformation du bois mobilise peu de matière et d'énergie et la pollution de l'eau, de l'air et du sol est très faible. Une conception avec préfabrication en usine tenant compte des dimensions de fabrication permet de réduire les chutes, donc le volume des déchets et les nuisances sur le chantier.

Descriptif technique : La surélévation est composée de Murs Ossature Bois fixés sur les acrotères béton existants (lisse basse de réglage avec forme de pente), habillés de panneaux plans de bois composite type Trespa de couleurs blanche et grise. L'empannage bois supporte un bac et l'étanchéité multicouche et assure le contreventement. Les panneaux ossature bois sont fabriqués toute hauteur (y compris acrotère), assemblés en usine, livrés bardés sans l'isolation, levés et positionnés à l'aide d'une grue sur le chantier selon un plan précis de calepinage. Le plancher intérieur du R+2 est un plancher technique bois.

Chauffage au Bois : non
Données déclaratives

Acteurs du projet

Maître d'ouvrage (1)

Maître d'ouvrage - Industriels - commerçants - entreprise

ANTIOCHE INVESTISSEMENTS (17)

Etudes et ingénieries (3)

Maître d'œuvre - Architecte mandataire

OPTIM'ARCHITECTURE (17)

Bureau d'études structure bois

ATES (79)

Bureau d'études thermique

FT2E (17)

Entreprises des lots bois (1)

Charpentier

ALTERNATIVE ECO CONSTRUCTION BOIS - AEC BOIS (ALTERNATIVE ECO CONSTRUCTION BOIS - AEC BOIS) (17)




* : L'entreprise n'est plus active
Retour à la liste