Apprendre – se divertir, Travailler – accueillirApprendre – se divertir, Travailler – accueillir
Apprendre – se divertir, Travailler – accueillir

centre d'accueil sportif, "ZECAMP"

38250 Corrençon-en-Vercors - Isère - Auvergne-Rhône-Alpes

BÂTIMENT / LOGEMENT

Aux portes de la zone naturelle des hauts plateaux du Vercors, le caractère naturel du site est un atout indéniable pour un centre d'accueil pour activités nordiques, porté par 3 biathlètes de haut niveau. Un volume en L se glisse dans la forêt, sur les courbes de niveau au plus près du terrain naturel pour une inscription dans le site en douceur. Le volume se casse ou se biaise et s’ancre dans le sol, là où la nature lui a fait une place, entre sapins et pierres, talus et replats. Un rythme de poteaux bois enveloppe le bâtiment et soutient la large passée et les balcons prolongeant les 16 ch.

Catégorie Bâtiment / logement
Numéro de projet1315
Adresse du projet combe du Fourneau
38250 Corrençon-en-Vercors
Date de candidature11/02/2019

Bâtiment / logement

Détail projet

Typologie de bâtiment : Neuf
Type de bâtiment : Loisirs,Sport,Restauration,Hébergement
Année de livraison : 2018
Surface totale du bâtiment en m² : 889
Coût total en € HT (hors foncier, hors VRD, hors honoraires) : 1250000
Lot bois n°1 concerné : Charpente bois
Volume lot bois n°1 - m³ : 142
Coût du lot bois n°1 - € HT : 308000
Lot bois n°2 concerné : Menuiserie extérieure bois
Volume lot bois n°2 - m³ : 4.4
Coût du lot bois n°2 - € HT : 62000
Bois Français : oui

Structure bois du bâtiment

Structure verticale :

ProduitEssenceProvenances (lieu de croissance du bois)Traitements de préservationMarque et certification produit
Panneau ossature boisÉpicéa communAuvergne-Rhône-AlpesTraitement Classe 3a (trempage)
Poteau poutreDouglasAuvergne-Rhône-AlpesAucun traitement

Structure horizontale :

ProduitEssenceProvenances (lieu de croissance du bois)Traitements de préservationMarque et certification produit
Solivage traditionnelÉpicéa communAuvergne-Rhône-AlpesTraitement Classe 2 (trempage)
Plancher béton

Charpente :

ProduitEssenceProvenances (lieu de croissance du bois)Traitements de préservationMarque et certification produit
Charpente traditionnelleÉpicéa communAuvergne-Rhône-AlpesTraitement Classe 2 (trempage)
Charpente bois lamellé-colléÉpicéa communAuvergne-Rhône-AlpesTraitement Classe 2 (trempage)

Revêtement bois extérieur

Revêtement bois ou dérivés :

ProduitEssenceProvenances (lieu de croissance du bois)Marque et certification produitFinitionTraitements de préservation
Lame bois massifDouglasAuvergne-Rhône-AlpesAucune finitionAucun traitement

Menuiserie intérieure et extérieure

Menuiserie extérieure :

ProduitEssenceProvenances (lieu de croissance du bois)Marque et certification produitFinition
Menuiserie boisPin sylvestreEuropeLasure

Isolation des murs

Isolation intérieure des murs :

Produit
Laine de verre
Epaisseur (mm) Isolation intérieure des murs : 50

Isolation entre-montant des murs :

Produit
Laine de verre
Epaisseur (mm) Isolation entre-montant des murs : 200

Isolation de la toiture

Epaisseur (mm) Isolation intérieure de la toiture : 150
Epaisseur (mm) Isolation entre-montant de la toiture : 150

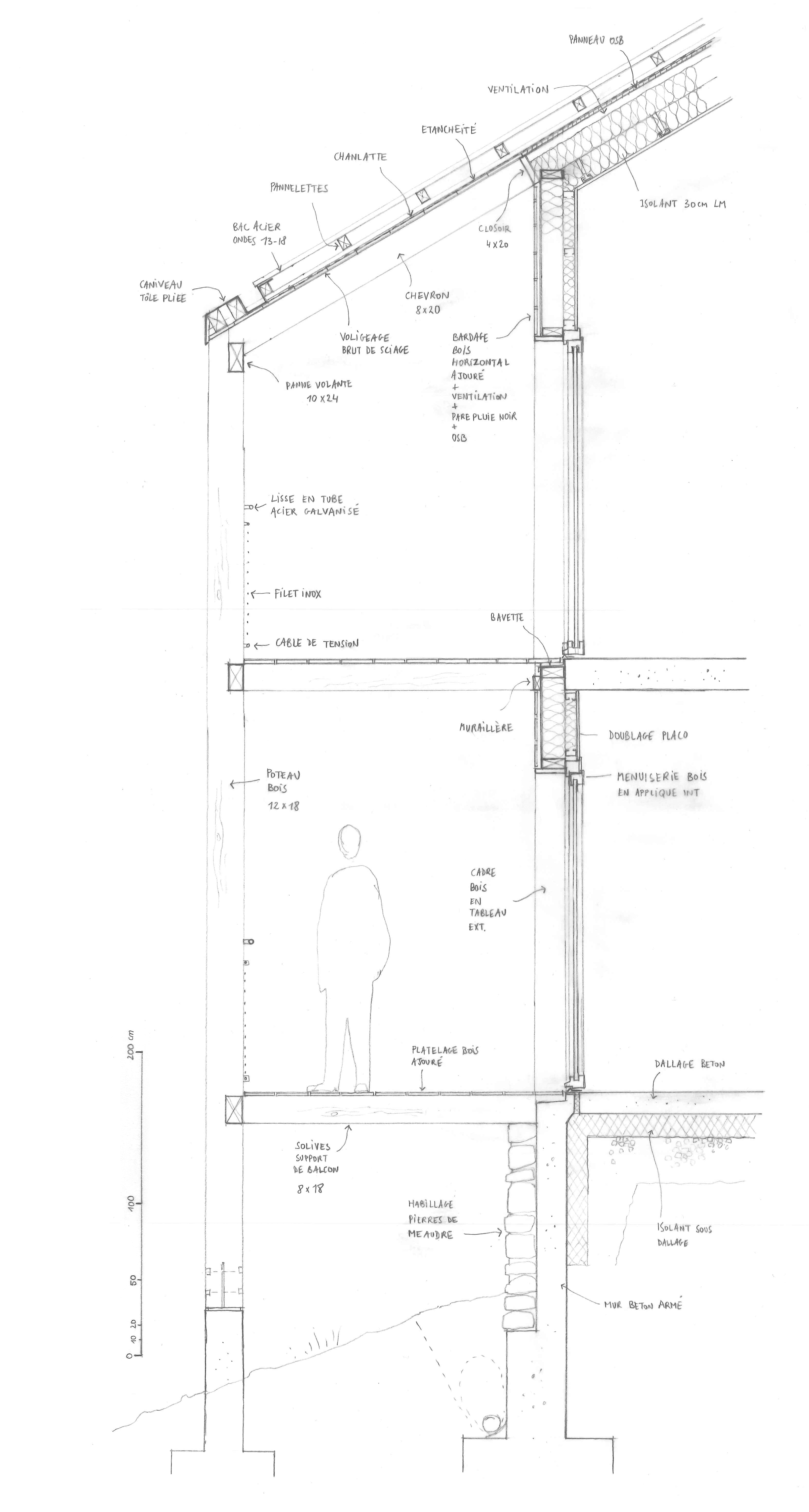
Approche environnementale : Nous proposons une architecture qui puise sa matière sur le site, une construction en matériaux de provenance locale, dans un esprit écologique. Le bâtiment est construit en façades structure bois des Alpes, sur un soubassement maçonné à terme revêtu de pierres calcaires locales. La charpente est en bois loc. L'orientation plein Sud de la grande pièce de vie est largement vitrée, profitant des apports passifs. A l'intérieur, les revêtements bois sont non traités pour maitriser la qualité intérieure de l'air. L'énergie de chauffage est le gaz, des panneaux photovoltaïques seront posés en toiture.

Descriptif technique : Altitude: 1160 m chaudière gaz à haute condensation. complément par poêle insert à bûches de bois. dossier sub Panneaux photovoltaïques en cours Ubât: 0.317 W/(m2.k) Cep en kWh ep/m2 surf RT: 195.2 RT 2012 Bbio: 140.7 Etanchéïté à l'air: 0.7 m3/(h.m2) sous 4 Pascals PEFC (Gestion forestière durable) FSC (Gestion forestière responsable) Bois des Alpes CTB A Traitement des bois en oeuvre CTB Air CTB P (Produits de traitement) NF Portes résistant au feu en bois NF Contreplaqués (CTBX - CTBC) NF Fenêtres Bois et Portes Extérieures - Acotherm NF Parquets NF Mobilier Professionnel

Chauffage au Bois : oui
Appareil de chauffage au bois : Poële/insert
Certifications, labels et marques bâtiment : Aucun,Origine France Garantie (OFG)
Données déclaratives

Acteurs du projet

Maître d'ouvrage (1)

Maître d'ouvrage - Particuliers

ZECAMP (38)

Etudes et ingénieries (5)

Maître d'œuvre - Architecte mandataire

BRENAS - DOUCERAIN ARCHITECTES (38)

Bureau d'études structure bois

BETREC IG (38)

Bureau d'études thermique

THERMIBEL (38)

Economiste

BETREC IG (38)

Designer / architecte d'intérieur

BRENAS - DOUCERAIN ARCHITECTES (38)

Entreprises des lots bois (2)

Charpentier

SOCIETE DAUPHINOISE DE CHARPENTE COUVERTURE (SDCC) (38)

Menuisier

MENUISERIE LAURENT (38)

Fournisseurs du bois (1)

Scierie

SCIERIE BLANC (26)




* : L'entreprise n'est plus active
Retour à la liste