Aménager
Aménager

Accueil et boutique du Musée Départementale Breton, Quimper

29000 Quimper - Finistère - Bretagne

AMÉNAGEMENT BOIS

Aménagement intérieur

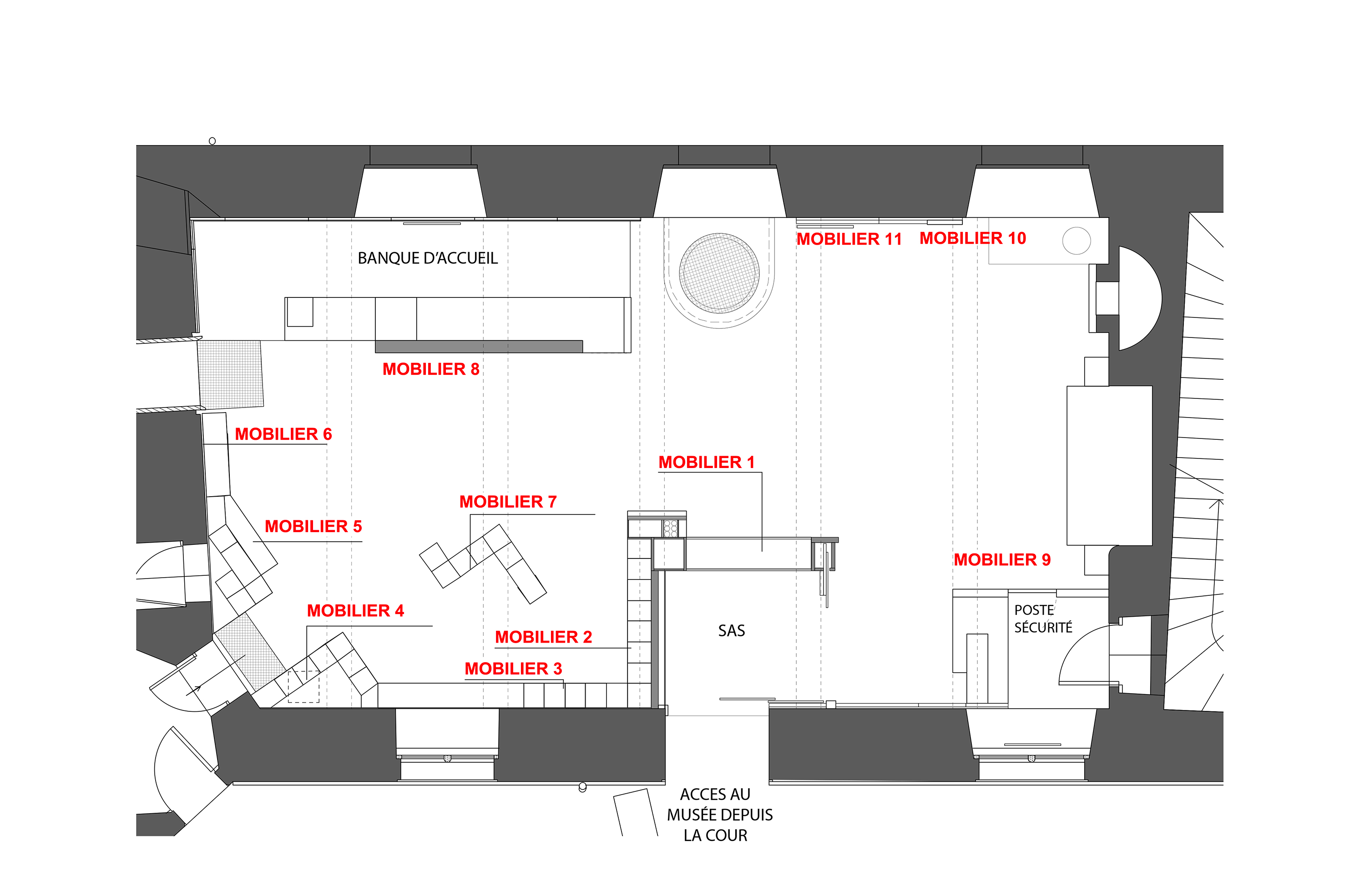
La modernisation de l’accueil et boutique du Musée Départemental Breton porte principalement sur l’architecture d’intérieur et le design du mobilier. Un SAS est créé afin de garantir un meilleur confort. L’accueil se déploie pour permettre simultanément, la délivrance d’informations, la gestion de la boutique et la billetterie du musée. La boutique multiplie les vitrines comme le rangement. La banque d’accueil est conçue de façon à garantir un accès à tous et un meilleur confort de travail grâce à une étude ergonomique.

Catégorie aménagement bois, aménagement intérieur
Numéro de projet1242
Adresse du projet 1 Rue du Roi Gradlon
29000 Quimper
Date de candidature06/02/2019

aménagement bois

typologie : Culture
Coût total en € HT : 227100

aménagement intérieur

Année de réalisation : 2018
Coût total Aménagement Intérieur en € HT : 227100
Coût lots bois en € HT : 55000
Volume bois m³ : 2.4
Surface aménagée en m² : 86

Liste des produits :

ProduitEssenceProvenances (lieu de croissance du bois)Marque et certification produitFinition
Panneau massif d'agencementChêneBourgogne-Franche-ComtéHuile pigmentée
MobilierChêneBourgogne-Franche-ComtéHuile pigmentée
Bois Français : oui

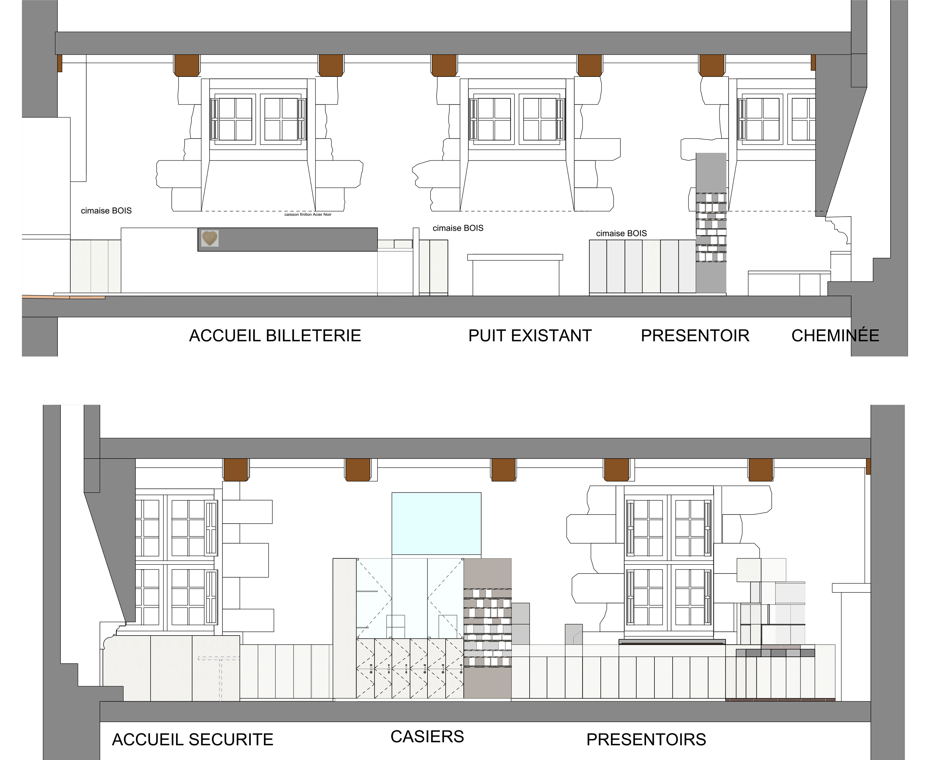
Approche environnementale : L’accueil et la boutique du Musée Départemental Breton prennent place dans l'ensemble patrimonial des anciennes cuisines du palais des Évêques de Cornouaille datant du XVIIe et protégé au titre des monuments historiques. L’espace initial de grande qualité a été préservé avec un volume intact, dallé de granit, chaulé au mur comme au plafond. Le respect de cet ensemble patrimonial par sa restauration et les matériaux utilisés s'est accompagné d'une attention particulière portée à l’éclairage afin de mettre en valeur les lieux, crée des ambiances particulières et distingué les fonctionnalités.

Descriptif technique de l'aménagement : Dans cet espace d'accueil du Musée, deux matériaux dialoguent : le chêne blanchit et l’acier patiné. Le chêne se fond dans le décor des anciennes cuisines du XVIIe avec ses portes, solivage et mur chaulé. Le métal met en scène les éléments forts de la boutique et ses vitrines par le contraste plus fort des tons et des matières.

Données déclaratives

Acteurs du projet

Maître d'ouvrage (1)

Maître d'ouvrage - État ou collectivité (locale et territ)

Département du Finistère (29)

Etudes et ingénieries (1)

Maître d'œuvre - Architecte mandataire

SABA ARCHITECTES (Julien Patard Architecture) (22)

Entreprises des lots bois (1)

Autre lot de la construction (en lien avec le bois)

ATELIERS DLB (29)




* : L'entreprise n'est plus active
Retour à la liste