Réhabiliter un logement
Réhabiliter un logement

Mon Repos - rénovation et extension d'une maison nantaise

44300 Nantes - Loire Atlantique - Pays de la Loire

BÂTIMENT / LOGEMENT

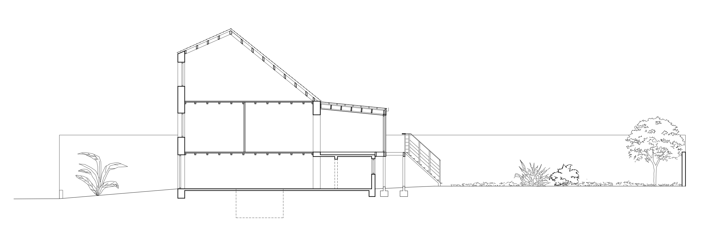
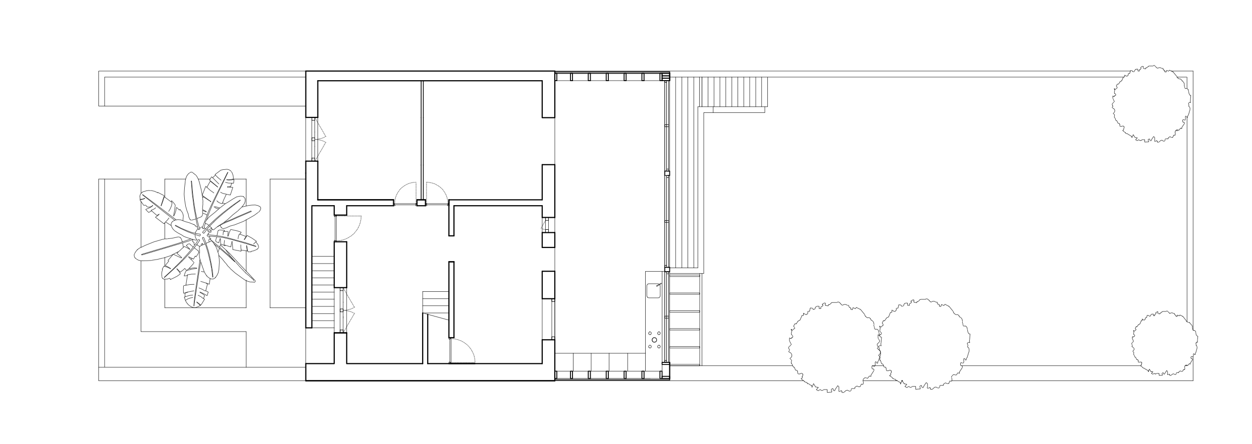
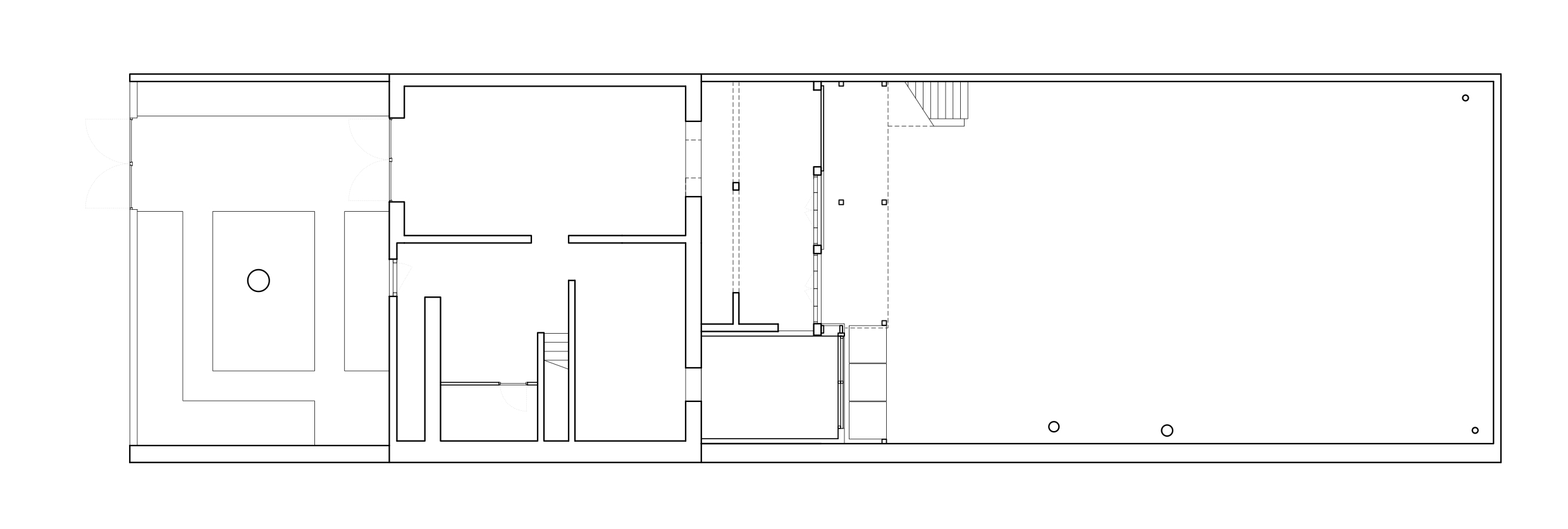
La maison en pierre est atypique avec ses deux façades dissemblables comme les deux visages d’une créature fantasmée. Dans le style des maisons nantaises, les pièces de vie se trouvent au premier niveau, surplombant les jardins et libérant les espaces du rez-de-chaussée pour des usages annexes de la maison (stockage, laverie, cave etc.). La commande est ouverte, concevoir une amélioration de l’existant pour les années à venir et les évolutions de la famille qui y vit, en commençant par le réaménagement de l'ancienne véranda pour l'intégrer dans les espaces chauffés de la maison.

Catégorie Bâtiment / logement
Numéro de projet1232
Date de candidature05/02/2019

Bâtiment / logement

Détail projet

Typologie de bâtiment : Extension / surélévation,Rénovation / Réhabilitation
Type de bâtiment : Logement individuel supérieur à 120 m²
Année de livraison : 2018
Surface totale du bâtiment en m² : 70
Coût total en € HT (hors foncier, hors VRD, hors honoraires) : 100000
Lot bois n°1 concerné : Charpente bois
Volume lot bois n°1 - m³ : 11
Coût du lot bois n°1 - € HT : 13000
Lot bois n°2 concerné : Menuiserie extérieure bois
Coût du lot bois n°2 - € HT : 13000
Bois Français : non

Structure bois du bâtiment

Structure verticale :

ProduitEssenceProvenances (lieu de croissance du bois)Traitements de préservationMarque et certification produit
Panneau ossature bois
Poteau poutreDouglasAucun traitement

Structure horizontale :

ProduitEssenceProvenances (lieu de croissance du bois)Traitements de préservationMarque et certification produit
Solivage traditionnel
Solivage traditionnelDouglasAucun traitement

Charpente :

ProduitEssenceProvenances (lieu de croissance du bois)Traitements de préservationMarque et certification produit
Charpente traditionnelle
Caisson de toitureDouglasAucun traitement

Revêtement bois extérieur

Autre revêtement métallique :

Produit
Acier

Menuiserie intérieure et extérieure

Menuiserie extérieure :

ProduitEssenceProvenances (lieu de croissance du bois)Marque et certification produitFinition
Menuiserie mixteÉpicéa communLasure

Isolation des murs

Epaisseur (mm) Isolation intérieure des murs : 145

Isolation entre-montant des murs :

Produit
Laine de bois souple
Epaisseur (mm) Isolation entre-montant des murs : 145

Isolation de la toiture

Epaisseur (mm) Isolation intérieure de la toiture : 220
Epaisseur (mm) Isolation entre-montant de la toiture : 220

Approche environnementale : La réponse est plurielle : une architecture légère, évolutive et généreuse, ouverte vers le jardin. Construit sur la maison existante, le projet est entièrement en bois, isolé en laine de bois et bardé en douglas sur les pignons. La grande pièce de vie salon-cuisine s'ouvre presque entièrement sur le jardin grâce à de grandes menuiseries coulissantes en bois, habillées d'aluminium sur l'extérieur, comme les parties pleines et le toit. Un balcon prolonge le volume intérieur, on y accède au jardin par un escalier latéral.

Descriptif technique : Le projet investit partiellement le rez-de-chaussé en y aménageant une chambre d'été et un dressing, et en installant les réseaux en attente nécessaires à une future salle-de-bain.

Chauffage au Bois : oui
Appareil de chauffage au bois : Poële/insert
Données déclaratives

Acteurs du projet

Etudes et ingénieries (1)

Maître d'œuvre - Architecte mandataire

0101 Agence D'Architecture (44)

Entreprises des lots bois (1)

Charpentier

Sinéco Charpente (44)

Fournisseurs du bois (2)

Scierie

ARBA (Artisans Réunis Bois Atlantique) (44)

Industriel

ARBA (Artisans Réunis Bois Atlantique) (44)




* : L'entreprise n'est plus active
Retour à la liste