Habiter une maison
Habiter une maison

LA MAISON DANS LA PRAIRIE

34060 CAUSSE DE LA SELLE - Hérault - Occitanie

BÂTIMENT / LOGEMENT

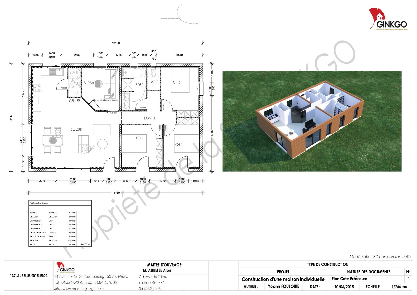
Cette réalisation affirme son caractère contemporain à travers un volume simple, bardé de bois. La façade sud est largement vitrée pour laisser entrer le soleil sur toute la profondeur des pièces de vie en hiver et pour profiter de la terrasse bois, véritable espace de vie.

Catégorie Bâtiment / logement
Numéro de projet1221
Date de candidature05/02/2019

Bâtiment / logement

Détail projet

Typologie de bâtiment : Neuf
Type de bâtiment : Logement individuel inférieur 120 m²
Année de livraison : 2016
Surface totale du bâtiment en m² : 90
Coût total en € HT (hors foncier, hors VRD, hors honoraires) : 93880
Lot bois n°1 concerné : ossature bois
Lot bois n°2 concerné : Charpente bois
Bois Français : oui

Structure bois du bâtiment

Structure verticale :

ProduitEssenceProvenances (lieu de croissance du bois)Traitements de préservationMarque et certification produit
Panneau ossature boisFranceJe n'ai pas l'information

Structure horizontale :

ProduitEssenceProvenances (lieu de croissance du bois)Traitements de préservationMarque et certification produit
Dalle boisÉpicéa communFranceJe n'ai pas l'information

Charpente :

ProduitEssenceProvenances (lieu de croissance du bois)Traitements de préservationMarque et certification produit
Charpente industrielleTempéréJe n'ai pas l'information

Revêtement bois extérieur

Revêtement bois ou dérivés :

ProduitEssenceProvenances (lieu de croissance du bois)Marque et certification produitFinitionTraitements de préservation
Lame bois massifDouglasFranceAucune finition

Menuiserie intérieure et extérieure

Isolation des murs

Isolation intérieure des murs :

Produit
Laine de verre
Epaisseur (mm) Isolation intérieure des murs : 145

Isolation entre-montant des murs :

Produit
Fibre de bois (Panneaux)
Epaisseur (mm) Isolation entre-montant des murs : 145

Isolation de la toiture

Epaisseur (mm) Isolation intérieure de la toiture : 300

Approche environnementale : La maison possède de réelles qualités qui garantissent de bonnes performances énergétiques. Le volume est compact, les ouvertures sont essentiellement au sud et donnent sur les pièces de vie. Peu d’ouverture sur le Nord.

Descriptif technique : Les murs sont composés de montant de 145*45 espacés tous les 600 mm. isolés par de la fibre de bois de la même épaisseur, complété d'une isolation à l'intérieur du doublage plâtre. En toiture de la ouate de cellulose a été soufflée Le système de chauffage est un poêle à granulé. La VMC hygro qui régule la ventilation en fonction du taux d'hygrométrie de la maison.

Chauffage au Bois : oui
Appareil de chauffage au bois : Poële/insert
Certifications, labels et marques bâtiment : Bois de France
Données déclaratives

Acteurs du projet

Etudes et ingénieries (2)

Bureau d'études structure bois

INGECOBOIS (30)

Bureau d'études thermique

H THERM (84)

Entreprises des lots bois (1)

Constructeur bois

GINKGO (30)




* : L'entreprise n'est plus active
Retour à la liste